|
|
|
| Larry Stein Oklahoma County Assessor (405) 713-1200 - Public Access System |
|
|
|
|
|
|
| Real Property Display - Screen Produced 2/27/2026 6:22:19 AM | ||||
|---|---|---|---|---|
| Account: R145761135 | Type: Residential | Location: |
3224 N WARREN AVE |
|
| Building Name/Occupant: |
|
OKLAHOMA CITY |
||
| Owner Name 1: | GUDE PRABHAVATHI VENKATA DR |
Parcel PIN#: |
2892-14-576-1135 |
|
| Owner Name 2: | 1/4 section #: |
2892 |
||
| Owner Name 3: | Parent Acct: |
|
||
| Billing Address: | 4 GOLF RD | Tax District: |
|
|
| City, State, Zip | EDISON, NJ 08820-3639 | School System: |
Putnam City #1 |
|
|
Country: (If noted) |
Land Size: |
0.1540 Acres |
||
|
Land Value: 25,490 |
|
|||
|
Sect 23-T12N-R4W Qtr NW |
MERIDIAN COURT 2ND
Block
001
Lot
014
|
|||
| Full Legal Description: MERIDIAN COURT 2ND 001 014 |
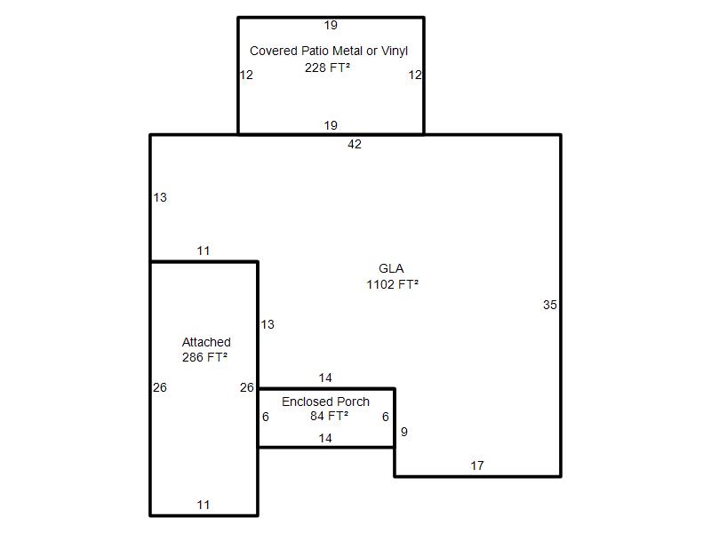
| Photo & Sketch (if available) | Comp Sales (ordered by relevancy) |
|
||||||||||||||||||
|
||||||||||||||||||||
| Value History (*The County Treasurer 405-713-1300 posts & collects actual tax amounts. Contact information HERE) | |||||||||||||
|---|---|---|---|---|---|---|---|---|---|---|---|---|---|
| Year | Market Value | Taxable Mkt Value | Gross Assessed | Exemption | Net Assessed | Millage | Est. Tax | Tax Savings | |||||
|
2025 |
134,000 |
134,000 |
14,740 |
0 |
14,740 |
123.17 |
$1,816 |
$0 |
|||||
|
2024 |
131,500 |
131,500 |
14,465 |
0 |
14,465 |
122.30 |
$1,769 |
$0 |
|||||
|
2023 |
120,500 |
59,962 |
6,595 |
1,000 |
5,595 |
121.91 |
$682 |
$934 |
|||||
|
2022 |
105,500 |
59,962 |
6,595 |
1,000 |
5,595 |
123.41 |
$691 |
$742 |
|||||
|
2021 |
90,000 |
59,962 |
6,595 |
1,000 |
5,595 |
122.23 |
$684 |
$526 |
|||||
| Property Account Status/Adjustments/Exemptions | ||
|---|---|---|
| Account # | Exemption Description | Amount |
|
R145761135 |
5% Capped Account |
0 |
| Property Deed Transaction History (Recorded in the County Clerk's Office) | ||||||||||
|---|---|---|---|---|---|---|---|---|---|---|
| Date | Type | Book | Page | Price | Grantor | Grantee | ||||
|
3/3/2023 |
|
Deeds |
$129,000 |
QUICK REAL ESTATE SOLUTIONS LLC |
GUDE PRABHAVATHI VENKATA DR |
|||||
|
1/20/2023 |
|
Hmstd Off & |
$0 |
RODGERS KIETHA FAYE |
HEWES CHRISTIAN COOPER |
|||||
|
1/20/2023 |
|
Deeds |
$90,000 |
HEWES CHRISTIAN COOPER |
QUICK REAL ESTATE SOLUTIONS LLC |
|||||
|
6/10/2022 |
|
Deeds |
$0 |
RODGERS KIETHA F |
RODGERS KIETHA FAYE |
|||||
|
3/28/2008 |
|
Deeds |
$77,500 |
NORTHROP BOBBIE J TRS NORTHROP BOBBIE J TRUST |
RODGERS KIETHA F |
|||||
| Last Mailed Notice of Value (N.O.V.) Information/History | ||||||||
|---|---|---|---|---|---|---|---|---|
| Year | Date | Market Value | Taxable Market Value | Gross Assessed | Exemption | Net Assessed | ||
|
2025 |
02/14/2025 |
134,000 |
134,000 |
14,740 |
0 |
14,740 |
||
|
2024 |
02/13/2024 |
131,500 |
131,500 |
14,465 |
0 |
14,465 |
||
|
2023 |
02/14/2023 |
120,500 |
59,962 |
6,595 |
1,000 |
5,595 |
||
|
2022 |
03/15/2022 |
105,500 |
59,962 |
6,595 |
1,000 |
5,595 |
||
|
2021 |
03/19/2021 |
90,000 |
59,962 |
6,595 |
1,000 |
5,595 |
||
| Property Building Permit History | |||||||||||
|---|---|---|---|---|---|---|---|---|---|---|---|
| Issued | Permit # | Provided by | Bldg # | Description | Est Construction Cost | Status | |||||
| No Building Permit records returned. | |||||||||||
| Click button on building number to access detailed information: | ||||||
|---|---|---|---|---|---|---|
| Bldg # | Vacant/Improved Land | Bldg Description | Year Built | SqFt | # Stories | |
|
1 |
Improved |
Ranch 1 Story |
1956 |
1,102 |
1 Stories |
|