|
|
|
| Larry Stein Oklahoma County Assessor (405) 713-1200 - Public Access System |
|
|
|
|
|
|
| Real Property Display - Screen Produced 4/1/2026 7:36:18 PM | ||||
|---|---|---|---|---|
| Account: R052500550 | Type: Residential | Location: |
3232 CASHION PL |
|
| Building Name/Occupant: |
|
OKLAHOMA CITY |
||
| Owner Name 1: | WATHAM DEANNA KAY |
Parcel PIN#: |
2893-05-250-0550 |
|
| Owner Name 2: | WATHAM CHARLES MERL | 1/4 section #: |
2893 |
|
| Owner Name 3: | Parent Acct: |
|
||
| Billing Address: | 3232 CASHION PL | Tax District: |
|
|
| City, State, Zip | OKLAHOMA CITY, OK 73112-6725 | School System: |
Oklahoma City #89 |
|
|
Country: (If noted) |
Land Size: |
0.1354 Acres |
||
|
Land Value: 14,160 |
|
|||
|
Sect 24-T12N-R4W Qtr NE |
LYONS WILL ROGERS PK
Block
001
Lot
022
|
|||
| Full Legal Description: LYONS WILL ROGERS PK 001 022 |
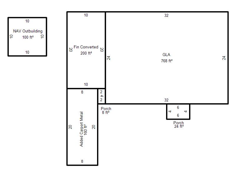
| Photo & Sketch (if available) | Comp Sales (ordered by relevancy) |
|
||||||||||||||||||
|
||||||||||||||||||||
| Value History (*The County Treasurer 405-713-1300 posts & collects actual tax amounts. Contact information HERE) | |||||||||||||
|---|---|---|---|---|---|---|---|---|---|---|---|---|---|
| Year | Market Value | Taxable Mkt Value | Gross Assessed | Exemption | Net Assessed | Millage | Est. Tax | Tax Savings | |||||
|
2026 |
142,500 |
142,500 |
15,675 |
0 |
15,675 |
122.90 |
$1,926 |
$0 |
|||||
|
2025 |
141,000 |
141,000 |
15,510 |
0 |
15,510 |
122.90 |
$1,906 |
$0 |
|||||
|
2024 |
99,500 |
70,499 |
7,754 |
0 |
7,754 |
123.89 |
$961 |
$395 |
|||||
|
2023 |
88,500 |
67,142 |
7,384 |
0 |
7,384 |
122.82 |
$907 |
$289 |
|||||
|
2022 |
72,500 |
63,945 |
7,033 |
0 |
7,033 |
117.63 |
$827 |
$111 |
|||||
| Property Account Status/Adjustments/Exemptions | ||
|---|---|---|
| Account # | Exemption Description | Amount |
|
R052500550 |
5% Capped Account |
0 |
| Property Deed Transaction History (Recorded in the County Clerk's Office) | ||||||||||
|---|---|---|---|---|---|---|---|---|---|---|
| Date | Type | Book | Page | Price | Grantor | Grantee | ||||
|
8/26/2024 |
|
Deeds |
$165,000 |
BROLLIER PROPERTIES LLC |
WATHAM DEANNA KAY |
|||||
|
1/25/2024 |
|
Deeds |
$55,000 |
LETS DO BUSINESS LLC |
BROLLIER PROPERTIES LLC |
|||||
|
2/28/2019 |
|
Deeds |
$30,000 |
PLENTIFUL HARVEST LLC |
LETS DO BUSINESS LLC |
|||||
|
4/13/2017 |
|
Hmstd Off & |
$0 |
PLENTIFUL HARVEST LLC |
LYON LINDA STUHR PER REP ESTATES OF ARTHUR DEVALLERY SMEDLEY |
|||||
|
4/13/2017 |
|
Hmstd Off & |
$0 |
LYON LINDA STUHR PER REP ESTATES OF ARTHUR DEVALLERY SMEDLEY |
PLENTIFUL HARVEST LLC |
|||||
| Last Mailed Notice of Value (N.O.V.) Information/History | ||||||||
|---|---|---|---|---|---|---|---|---|
| Year | Date | Market Value | Taxable Market Value | Gross Assessed | Exemption | Net Assessed | ||
|
2026 |
02/23/2026 |
142,500 |
142,500 |
15,675 |
0 |
15,675 |
||
|
2025 |
02/14/2025 |
141,000 |
141,000 |
15,510 |
0 |
15,510 |
||
|
2024 |
02/13/2024 |
99,500 |
70,499 |
7,754 |
0 |
7,754 |
||
|
2023 |
02/14/2023 |
88,500 |
67,142 |
7,384 |
0 |
7,384 |
||
|
2022 |
03/15/2022 |
72,500 |
63,945 |
7,033 |
0 |
7,033 |
||
| Property Building Permit History | |||||||||||
|---|---|---|---|---|---|---|---|---|---|---|---|
| Issued | Permit # | Provided by | Bldg # | Description | Est Construction Cost | Status | |||||
| No Building Permit records returned. | |||||||||||
| Click button on building number to access detailed information: | ||||||
|---|---|---|---|---|---|---|
| Bldg # | Vacant/Improved Land | Bldg Description | Year Built | SqFt | # Stories | |
|
1 |
Improved |
Ranch 1 Story |
1947 |
768 |
1 Stories |
|