|
|
|
| Larry Stein Oklahoma County Assessor (405) 713-1200 - Public Access System |
|
|
|
|
|
|
| Real Property Display - Screen Produced 4/3/2026 2:37:48 PM | ||||
|---|---|---|---|---|
| Account: R068145300 | Type: Residential | Location: |
3620 NW 24TH ST |
|
| Building Name/Occupant: |
|
OKLAHOMA CITY |
||
| Owner Name 1: | LOPEZ JOSE CHAVEZ |
Parcel PIN#: |
2895-06-814-5300 |
|
| Owner Name 2: | LOPEZ HERNANDEZ SUZELY A | 1/4 section #: |
2895 |
|
| Owner Name 3: | Parent Acct: |
|
||
| Billing Address: | 3620 NW 24TH ST | Tax District: |
|
|
| City, State, Zip | OKLAHOMA CITY, OK 73107-1604 | School System: |
Oklahoma City #89 |
|
|
Country: (If noted) |
Land Size: |
0.1492 Acres |
||
|
Land Value: 19,500 |
|
|||
|
Sect 24-T12N-R4W Qtr SW |
RIDGECREST ADDITION
Block
005
Lot
006
|
|||
| Full Legal Description: RIDGECREST ADDITION 005 006 |
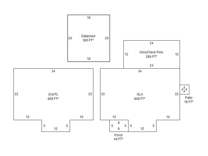
| Photo & Sketch (if available) | Comp Sales (ordered by relevancy) |
|
||||||||||||||||||
|
||||||||||||||||||||
| Value History (*The County Treasurer 405-713-1300 posts & collects actual tax amounts. Contact information HERE) | |||||||||||||
|---|---|---|---|---|---|---|---|---|---|---|---|---|---|
| Year | Market Value | Taxable Mkt Value | Gross Assessed | Exemption | Net Assessed | Millage | Est. Tax | Tax Savings | |||||
|
2026 |
219,500 |
190,699 |
20,975 |
1,000 |
19,975 |
122.90 |
$2,455 |
$512 |
|||||
|
2025 |
225,500 |
185,145 |
20,365 |
1,000 |
19,365 |
122.90 |
$2,380 |
$668 |
|||||
|
2024 |
219,500 |
179,753 |
19,771 |
1,000 |
18,771 |
123.89 |
$2,326 |
$666 |
|||||
|
2023 |
205,000 |
174,518 |
19,196 |
1,000 |
18,196 |
122.82 |
$2,235 |
$535 |
|||||
|
2022 |
187,500 |
169,435 |
18,637 |
1,000 |
17,637 |
117.63 |
$2,075 |
$351 |
|||||
| Property Account Status/Adjustments/Exemptions | ||
|---|---|---|
| Account # | Exemption Description | Amount |
|
R068145300 |
3% Cap Homestead |
0 |
|
R068145300 |
Homestead |
1,000 |
| Property Deed Transaction History (Recorded in the County Clerk's Office) | ||||||||||
|---|---|---|---|---|---|---|---|---|---|---|
| Date | Type | Book | Page | Price | Grantor | Grantee | ||||
|
1/12/2026 |
|
Deeds |
$175,000 |
HILL KAYLA R |
LOPEZ JOSE CHAVEZ |
|||||
|
5/1/2019 |
|
Deeds |
$166,000 |
SAHEB EDWARD |
HILL KAYLA R |
|||||
|
11/7/2018 |
|
Deeds |
$91,000 |
FEDERAL NATIONAL MORTGAGE ASSOCIATION |
SAHEB EDWARD |
|||||
|
9/4/2018 |
|
Hmstd Off & |
$0 |
REVERSE MORTGAGE SOLUTIONS INC |
FEDERAL NATIONAL MORTGAGE ASSOCIATION |
|||||
|
7/13/2018 |
|
Hmstd Off & |
$0 |
HUNT NORMA J TRS |
REVERSE MORTGAGE SOLUTIONS INC |
|||||
| Last Mailed Notice of Value (N.O.V.) Information/History | ||||||||
|---|---|---|---|---|---|---|---|---|
| Year | Date | Market Value | Taxable Market Value | Gross Assessed | Exemption | Net Assessed | ||
|
2026 |
02/23/2026 |
219,500 |
190,699 |
20,975 |
1,000 |
19,975 |
||
|
2025 |
02/14/2025 |
225,500 |
185,145 |
20,365 |
1,000 |
19,365 |
||
|
2024 |
02/13/2024 |
219,500 |
179,753 |
19,771 |
1,000 |
18,771 |
||
|
2023 |
02/14/2023 |
205,000 |
174,518 |
19,196 |
1,000 |
18,196 |
||
|
2022 |
03/15/2022 |
187,500 |
169,435 |
18,637 |
1,000 |
17,637 |
||
| Property Building Permit History | |||||||||||
|---|---|---|---|---|---|---|---|---|---|---|---|
| Issued | Permit # | Provided by | Bldg # | Description | Est Construction Cost | Status | |||||
| No Building Permit records returned. | |||||||||||
| Click button on building number to access detailed information: | ||||||
|---|---|---|---|---|---|---|
| Bldg # | Vacant/Improved Land | Bldg Description | Year Built | SqFt | # Stories | |
|
1 |
Improved |
2 Story |
1941 |
1,616 |
2 Stories |
|