|
|
|
| Larry Stein Oklahoma County Assessor (405) 713-1200 - Public Access System |
|
|
|
|
|
|
| Real Property Display - Screen Produced 3/22/2026 12:44:30 PM | ||||
|---|---|---|---|---|
| Account: R068624400 | Type: Residential | Location: |
3501 W LIBERTY |
|
| Building Name/Occupant: |
|
OKLAHOMA CITY |
||
| Owner Name 1: | GIL DAVID A |
Parcel PIN#: |
2899-06-862-4400 |
|
| Owner Name 2: | 1/4 section #: |
2899 |
||
| Owner Name 3: | Parent Acct: |
|
||
| Billing Address: | 3501 W LIBERTY ST | Tax District: |
|
|
| City, State, Zip | OKLAHOMA CITY, OK 73107 | School System: |
Oklahoma City #89 |
|
|
Country: (If noted) |
Land Size: |
0.1302 Acres |
||
|
Land Value: 12,474 |
|
|||
|
Sect 25-T12N-R4W Qtr SW |
STULTS ADDITION
Block
001
Lot
012
|
|||
| Full Legal Description: STULTS ADDITION 001 012 |
| Photo & Sketch (if available) | Comp Sales (ordered by relevancy) |
|
||||||||||||||||||
|
||||||||||||||||||||
| Value History (*The County Treasurer 405-713-1300 posts & collects actual tax amounts. Contact information HERE) | |||||||||||||
|---|---|---|---|---|---|---|---|---|---|---|---|---|---|
| Year | Market Value | Taxable Mkt Value | Gross Assessed | Exemption | Net Assessed | Millage | Est. Tax | Tax Savings | |||||
|
2025 |
179,000 |
179,000 |
19,690 |
0 |
19,690 |
122.90 |
$2,420 |
$0 |
|||||
|
2024 |
170,500 |
170,500 |
18,755 |
0 |
18,755 |
123.89 |
$2,324 |
$0 |
|||||
|
2023 |
219,500 |
219,500 |
24,145 |
0 |
24,145 |
122.82 |
$2,965 |
$0 |
|||||
|
2022 |
219,500 |
219,500 |
24,145 |
0 |
24,145 |
117.63 |
$2,840 |
$0 |
|||||
|
2021 |
150,000 |
150,000 |
16,500 |
0 |
16,500 |
117.70 |
$1,942 |
$0 |
|||||
| Property Account Status/Adjustments/Exemptions | ||
|---|---|---|
| Account # | Exemption Description | Amount |
|
R068624400 |
5% Capped Account |
0 |
| Property Deed Transaction History (Recorded in the County Clerk's Office) | ||||||||||
|---|---|---|---|---|---|---|---|---|---|---|
| Date | Type | Book | Page | Price | Grantor | Grantee | ||||
|
11/3/2021 |
|
Deeds |
$226,500 |
FLYNT DEVELOPMENT LLC |
GIL DAVID A |
|||||
|
5/21/2019 |
|
Deeds |
$151,500 |
VISIONARY HOLDINGS |
FLYNT DEVELOPMENT LLC |
|||||
|
5/13/2016 |
|
Mult Parcel |
$600,000 |
BMW PROPERTIES 2 LLC |
VISIONARY HOLDINGS |
|||||
|
5/9/2016 |
|
Hmstd Off & |
$0 |
WEAKS BRIAN |
BMW PROPERTIES 2 LLC |
|||||
|
5/23/2014 |
|
Deeds |
$0 |
WEAKS KIMBERLY |
WEAKS BRIAN |
|||||
| Last Mailed Notice of Value (N.O.V.) Information/History | ||||||||
|---|---|---|---|---|---|---|---|---|
| Year | Date | Market Value | Taxable Market Value | Gross Assessed | Exemption | Net Assessed | ||
|
2025 |
02/14/2025 |
179,000 |
179,000 |
19,690 |
0 |
19,690 |
||
|
2022 |
03/15/2022 |
219,500 |
219,500 |
24,145 |
0 |
24,145 |
||
|
2020 |
03/10/2020 |
150,000 |
150,000 |
16,500 |
0 |
16,500 |
||
|
2019 |
04/02/2019 |
82,500 |
80,483 |
8,853 |
0 |
8,853 |
||
|
2018 |
04/16/2018 |
83,500 |
76,650 |
8,432 |
0 |
8,432 |
||
| Property Building Permit History | |||||||||||
|---|---|---|---|---|---|---|---|---|---|---|---|
| Issued | Permit # | Provided by | Bldg # | Description | Est Construction Cost | Status | |||||
| No Building Permit records returned. | |||||||||||
| Click button on building number to access detailed information: | ||||||
|---|---|---|---|---|---|---|
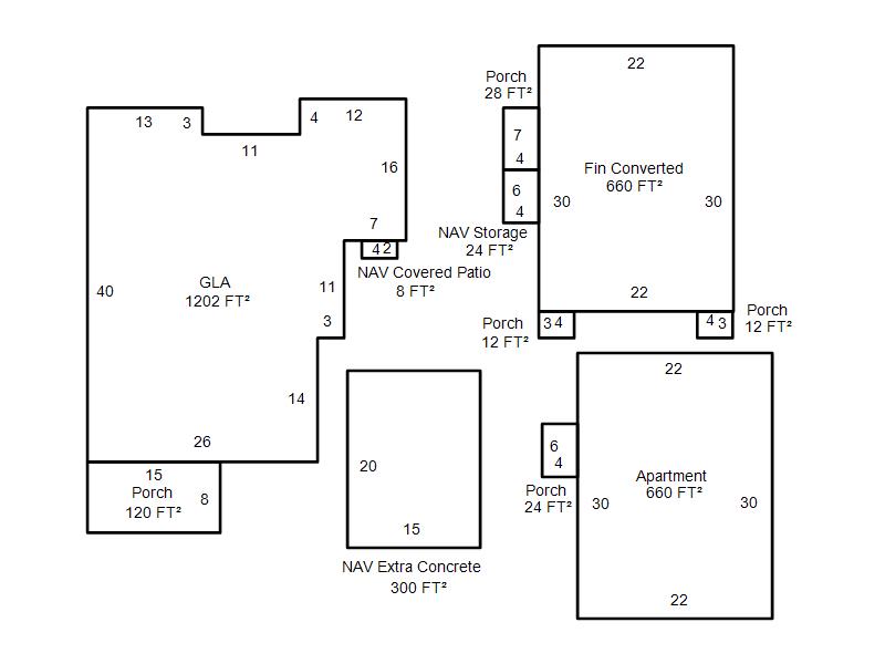
| Bldg # | Vacant/Improved Land | Bldg Description | Year Built | SqFt | # Stories | |
|
1 |
Improved |
Ranch 1 Story |
1921 |
1,202 |
1 Stories |
|