|
|
|
| Larry Stein Oklahoma County Assessor (405) 713-1200 - Public Access System |
|
|
|
|
|
|
| Real Property Display - Screen Produced 4/2/2026 3:26:55 PM | ||||
|---|---|---|---|---|
| Account: R116214525 | Type: Residential | Location: |
1818 N ROFF AVE |
|
| Building Name/Occupant: |
|
OKLAHOMA CITY |
||
| Owner Name 1: | LOPEZ BERNARDINO G |
Parcel PIN#: |
2901-11-621-4525 |
|
| Owner Name 2: | ESCOBAR CALDERON OLGA | 1/4 section #: |
2901 |
|
| Owner Name 3: | Parent Acct: |
|
||
| Billing Address: | 1818 N ROFF AVE | Tax District: |
|
|
| City, State, Zip | OKLAHOMA CITY, OK 73107 | School System: |
Oklahoma City #89 |
|
|
Country: (If noted) |
Land Size: |
0.1836 Acres |
||
|
Land Value: 20,000 |
|
|||
|
Sect 26-T12N-R4W Qtr NE |
STEVE PENNINGTON 7TH
Block
005
Lot
006
|
|||
| Full Legal Description: STEVE PENNINGTON 7TH 005 006 |
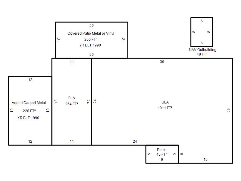
| Photo & Sketch (if available) | Comp Sales (ordered by relevancy) |
|
||||||||||||||||||
|
||||||||||||||||||||
| Value History (*The County Treasurer 405-713-1300 posts & collects actual tax amounts. Contact information HERE) | |||||||||||||
|---|---|---|---|---|---|---|---|---|---|---|---|---|---|
| Year | Market Value | Taxable Mkt Value | Gross Assessed | Exemption | Net Assessed | Millage | Est. Tax | Tax Savings | |||||
|
2026 |
201,500 |
181,579 |
19,973 |
0 |
19,973 |
122.90 |
$2,455 |
$269 |
|||||
|
2025 |
194,000 |
172,933 |
19,021 |
0 |
19,021 |
122.90 |
$2,338 |
$285 |
|||||
|
2024 |
200,500 |
164,699 |
18,116 |
0 |
18,116 |
123.89 |
$2,245 |
$488 |
|||||
|
2023 |
189,500 |
156,857 |
17,253 |
0 |
17,253 |
122.82 |
$2,119 |
$441 |
|||||
|
2022 |
168,500 |
149,388 |
16,432 |
0 |
16,432 |
117.63 |
$1,933 |
$247 |
|||||
| Property Account Status/Adjustments/Exemptions | ||
|---|---|---|
| Account # | Exemption Description | Amount |
|
R116214525 |
5% Capped Account |
0 |
| Property Deed Transaction History (Recorded in the County Clerk's Office) | |||||||
|---|---|---|---|---|---|---|---|
| Date | Type | Book | Page | Price | Grantor | Grantee | |
|
12/6/2019 |
|
Deeds |
$135,000 |
SCOTT DANIEL G & JANET SUE |
LOPEZ BERNARDINO G |
||
|
11/6/2003 |
|
Deeds |
$0 |
SCOTT DANIEL G |
SCOTT DANIEL G & JANET SUE |
||
|
5/14/1999 |
|
Deeds |
$47,000 |
ALTON MARY M |
SCOTT DANIEL G |
||
|
3/1/1974 |
|
Historical |
$0 |
|
ALTON MARY M |
||
| Last Mailed Notice of Value (N.O.V.) Information/History | ||||||||
|---|---|---|---|---|---|---|---|---|
| Year | Date | Market Value | Taxable Market Value | Gross Assessed | Exemption | Net Assessed | ||
|
2026 |
02/23/2026 |
201,500 |
181,579 |
19,973 |
0 |
19,973 |
||
|
2025 |
02/14/2025 |
194,000 |
172,933 |
19,021 |
0 |
19,021 |
||
|
2024 |
02/13/2024 |
200,500 |
164,699 |
18,116 |
0 |
18,116 |
||
|
2023 |
02/14/2023 |
189,500 |
156,857 |
17,253 |
0 |
17,253 |
||
|
2022 |
03/15/2022 |
168,500 |
149,388 |
16,432 |
0 |
16,432 |
||
| Property Building Permit History | |||||||||||
|---|---|---|---|---|---|---|---|---|---|---|---|
| Issued | Permit # | Provided by | Bldg # | Description | Est Construction Cost | Status | |||||
| No Building Permit records returned. | |||||||||||
| Click button on building number to access detailed information: | ||||||
|---|---|---|---|---|---|---|
| Bldg # | Vacant/Improved Land | Bldg Description | Year Built | SqFt | # Stories | |
|
1 |
Improved |
Ranch 1 Story |
1950 |
1,275 |
1 Stories |
|