|
|
|
| Larry Stein Oklahoma County Assessor (405) 713-1200 - Public Access System |
|
|
|
|
|
|
| Real Property Display - Screen Produced 2/27/2026 3:10:08 PM | ||||
|---|---|---|---|---|
| Account: R147853000 | Type: Residential | Location: |
1600 N ANN ARBOR AVE |
|
| Building Name/Occupant: |
|
OKLAHOMA CITY |
||
| Owner Name 1: | PEREZ ANTONIO FLORES |
Parcel PIN#: |
2906-14-785-3000 |
|
| Owner Name 2: | PEREZ MARIA DEL REFUGIO MARQUEZ DE | 1/4 section #: |
2906 |
|
| Owner Name 3: | Parent Acct: |
|
||
| Billing Address: | 1600 N ANN ARBOR AVE | Tax District: |
|
|
| City, State, Zip | OKLAHOMA CITY, OK 73127-3921 | School System: |
Putnam City #1 |
|
|
Country: (If noted) |
Land Size: |
3.6600 Acres |
||
|
Land Value: 62,774 |
|
|||
|
Sect 27-T12N-R4W Qtr SE |
UNPLTD PT SEC 27 12N 4W
Block
000
Lot
000
|
|||
| Full Legal Description: UNPLTD PT SEC 27 12N 4W 000 000 PT OF SE4 SEC 27 12N 4W BEG 515.5FT S & 20FT E OF CENTER OF SEC TH E672.39FT S237.5FT W672.12FT N237.5FT TO BEG OR TR 20 UNRECORDED PLAT OF SE4 |
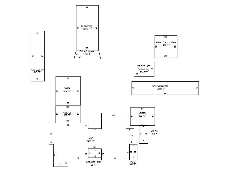
| Photo & Sketch (if available) | Comp Sales (ordered by relevancy) |
|
||||||||||||||||||
|
||||||||||||||||||||
| Value History (*The County Treasurer 405-713-1300 posts & collects actual tax amounts. Contact information HERE) | |||||||||||||
|---|---|---|---|---|---|---|---|---|---|---|---|---|---|
| Year | Market Value | Taxable Mkt Value | Gross Assessed | Exemption | Net Assessed | Millage | Est. Tax | Tax Savings | |||||
|
2025 |
351,000 |
197,598 |
21,735 |
0 |
21,735 |
123.17 |
$2,677 |
$2,078 |
|||||
|
2024 |
276,500 |
188,189 |
20,700 |
0 |
20,700 |
122.30 |
$2,532 |
$1,188 |
|||||
|
2023 |
260,000 |
179,228 |
19,714 |
0 |
19,714 |
121.91 |
$2,403 |
$1,083 |
|||||
|
2022 |
240,500 |
170,694 |
18,775 |
0 |
18,775 |
123.41 |
$2,317 |
$948 |
|||||
|
2021 |
193,500 |
162,566 |
17,881 |
0 |
17,881 |
122.23 |
$2,186 |
$416 |
|||||
| Property Account Status/Adjustments/Exemptions | ||
|---|---|---|
| Account # | Exemption Description | Amount |
|
R147853000 |
5% Capped Account |
0 |
| Property Deed Transaction History (Recorded in the County Clerk's Office) | |||||||
|---|---|---|---|---|---|---|---|
| Date | Type | Book | Page | Price | Grantor | Grantee | |
|
10/3/2011 |
|
Deeds |
$128,000 |
CARPENTER HERBERT H TRUSTEE CARPENTER WANDA C TRUSTEE |
PEREZ ANTONIO FLORES |
||
|
4/1/1999 |
|
Historical |
$0 |
CARPENTER HERBERT H & WANDA C |
CARPENTER HERBERT & WANDA TRS |
||
|
4/2/1991 |
|
Historical |
$0 |
CARPENTER HERBERT H |
CARPENTER HERBERT H & WANDA C |
||
|
8/25/1987 |
|
Historical |
$0 |
CARPENTER HERBERT H & W C |
CARPENTER HERBERT H |
||
|
11/11/1911 |
|
Historical |
$0 |
|
CARPENTER HERBERT H & W C |
||
| Last Mailed Notice of Value (N.O.V.) Information/History | ||||||||
|---|---|---|---|---|---|---|---|---|
| Year | Date | Market Value | Taxable Market Value | Gross Assessed | Exemption | Net Assessed | ||
|
2026 |
02/23/2026 |
339,000 |
207,477 |
22,821 |
0 |
22,821 |
||
|
2025 |
02/14/2025 |
351,000 |
197,598 |
21,735 |
0 |
21,735 |
||
|
2024 |
02/13/2024 |
276,500 |
188,189 |
20,700 |
0 |
20,700 |
||
|
2023 |
02/14/2023 |
260,000 |
179,228 |
19,714 |
0 |
19,714 |
||
|
2022 |
03/15/2022 |
240,500 |
170,694 |
18,775 |
0 |
18,775 |
||
| Property Building Permit History | |||||||||||
|---|---|---|---|---|---|---|---|---|---|---|---|
| Issued | Permit # | Provided by | Bldg # | Description | Est Construction Cost | Status | |||||
| No Building Permit records returned. | |||||||||||
| Click button on building number to access detailed information: | ||||||
|---|---|---|---|---|---|---|
| Bldg # | Vacant/Improved Land | Bldg Description | Year Built | SqFt | # Stories | |
|
1 |
Improved |
1½ Story Fin |
1947 |
2,585 |
1.5 Stories |
|