|
|
|
| Larry Stein Oklahoma County Assessor (405) 713-1200 - Public Access System |
|
|
|
|
|
|
| Real Property Display - Screen Produced 2/27/2026 3:11:32 PM | ||||
|---|---|---|---|---|
| Account: R147854831 | Type: Residential | Location: |
4739 NW 10TH ST |
|
| Building Name/Occupant: |
|
OKLAHOMA CITY |
||
| Owner Name 1: | RUIZ JUAN ANTONIO |
Parcel PIN#: |
2906-14-785-4831 |
|
| Owner Name 2: | RUIZ ROSINELY P | 1/4 section #: |
2906 |
|
| Owner Name 3: | Parent Acct: |
|
||
| Billing Address: | 2700 N MERIDIAN PL | Tax District: |
|
|
| City, State, Zip | OKLAHOMA CITY, OK 73127-1918 | School System: |
Putnam City #1 |
|
|
Country: (If noted) |
Land Size: |
0.4821 Acres |
||
|
Land Value: 34,759 |
|
|||
|
Sect 27-T12N-R4W Qtr SE |
UNPLTD PT SEC 27 12N 4W
Block
000
Lot
000
|
|||
| Full Legal Description: UNPLTD PT SE4 SEC 27 12N 4W BEG 33FT N & 595FT E OF SW/C SE4 TH W120FT N175FT E120FT S175FT TO BEG SUBJ TO ESMTS OF RECORD |
| Photo & Sketch (if available) | Comp Sales (ordered by relevancy) |
|
||||||||||||||||||
|
||||||||||||||||||||
| Value History (*The County Treasurer 405-713-1300 posts & collects actual tax amounts. Contact information HERE) | |||||||||||||
|---|---|---|---|---|---|---|---|---|---|---|---|---|---|
| Year | Market Value | Taxable Mkt Value | Gross Assessed | Exemption | Net Assessed | Millage | Est. Tax | Tax Savings | |||||
|
2025 |
236,000 |
113,400 |
12,474 |
0 |
12,474 |
123.17 |
$1,536 |
$1,661 |
|||||
|
2024 |
108,000 |
108,000 |
11,880 |
0 |
11,880 |
122.30 |
$1,453 |
$0 |
|||||
|
2023 |
54,762 |
54,762 |
6,023 |
0 |
6,023 |
121.91 |
$734 |
$0 |
|||||
|
2022 |
54,762 |
54,762 |
6,023 |
0 |
6,023 |
123.41 |
$743 |
$0 |
|||||
|
2021 |
54,762 |
54,762 |
6,023 |
0 |
6,023 |
122.23 |
$736 |
$0 |
|||||
| Property Account Status/Adjustments/Exemptions | ||
|---|---|---|
| Account # | Exemption Description | Amount |
|
R147854831 |
5% Capped Account |
0 |
| Property Deed Transaction History (Recorded in the County Clerk's Office) | ||||||||||
|---|---|---|---|---|---|---|---|---|---|---|
| Date | Type | Book | Page | Price | Grantor | Grantee | ||||
|
4/6/2023 |
|
Mult Parcel |
$1,100,000 |
4801 NW 10TH STREET LLC |
RUIZ JUAN ANTONIO |
|||||
|
10/23/2019 |
|
Hmstd Off & |
$0 |
CITY LIMOUSINE INC |
4801 NW 10TH STREET LLC |
|||||
|
5/21/2007 |
|
Deeds |
$100,100 |
SHERIFFS DEED |
CITY LIMOUSINE INC |
|||||
|
2/12/2001 |
|
Hmstd Off & |
$0 |
CLINE DAVID L & CONNIE J C/O O K AIRE SUPPLY COMPANY |
CLINE FAMILY LP |
|||||
|
4/4/1994 |
|
Historical |
$0 |
CLINE DAVID L & CONNIE J |
CLINE DAVID L & CONNIE J |
|||||
| Last Mailed Notice of Value (N.O.V.) Information/History | ||||||
|---|---|---|---|---|---|---|
| Year | Date | Market Value | Taxable Market Value | Gross Assessed | Exemption | Net Assessed |
|
2026 |
02/23/2026 |
235,500 |
119,070 |
13,097 |
0 |
13,097 |
|
2025 |
02/14/2025 |
236,000 |
113,400 |
12,474 |
0 |
12,474 |
|
2024 |
03/12/2024 |
108,000 |
108,000 |
11,880 |
0 |
11,880 |
| Property Building Permit History | ||||||
|---|---|---|---|---|---|---|
| Issued | Permit # | Provided by | Bldg # | Description | Est Construction Cost | Status |
|
8/5/1994 |
10242175 |
OKLAHOMA CITY |
1 |
Main Dwellin |
20,000 |
Inactive |
|
5/31/1994 |
10242174 |
OKLAHOMA CITY |
1 |
Add On |
34,000 |
Inactive |
| Click button on building number to access detailed information: | ||||||
|---|---|---|---|---|---|---|
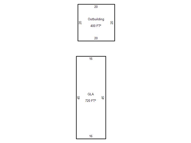
| Bldg # | Vacant/Improved Land | Bldg Description | Year Built | SqFt | # Stories | |
|
1 |
Improved |
Ranch 1 Story |
1956 |
720 |
1 Stories |
|