|
|
|
| Larry Stein Oklahoma County Assessor (405) 713-1200 - Public Access System |
|
|
|
|
|
|
| Real Property Display - Screen Produced 3/25/2026 3:32:45 AM | ||||
|---|---|---|---|---|
| Account: R153181875 | Type: Residential | Location: |
849 ENGLEWOOD RD |
|
| Building Name/Occupant: |
|
DEL CITY |
||
| Owner Name 1: | ELLIS MARCI JO |
Parcel PIN#: |
1423-15-318-1875 |
|
| Owner Name 2: | PASCHALL LORI LYNN | 1/4 section #: |
1423 |
|
| Owner Name 3: | Parent Acct: |
|
||
| Billing Address: | 845 ENGLEWOOD RD | Tax District: |
|
|
| City, State, Zip | DEL CITY, OK 73115 | School System: |
Mid-Del #52 |
|
|
Country: (If noted) |
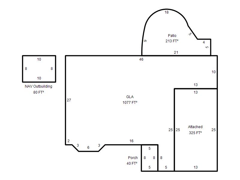
Land Size: |
0.1491 Acres |
||
|
Land Value: 22,411 |
|
|||
|
Sect 6-T11N-R2W Qtr SW |
DEL RANCHO 4TH ADDITION
Block
004
Lot
013
|
|||
| Full Legal Description: DEL RANCHO 4TH ADDITION 004 013 |
| Photo & Sketch (if available) | Comp Sales (ordered by relevancy) |
|
||||||||||||||||||
|
||||||||||||||||||||
| Value History (*The County Treasurer 405-713-1300 posts & collects actual tax amounts. Contact information HERE) | |||||||||||||
|---|---|---|---|---|---|---|---|---|---|---|---|---|---|
| Year | Market Value | Taxable Mkt Value | Gross Assessed | Exemption | Net Assessed | Millage | Est. Tax | Tax Savings | |||||
|
2025 |
117,000 |
79,766 |
8,773 |
0 |
8,773 |
114.72 |
$1,007 |
$470 |
|||||
|
2024 |
104,500 |
75,968 |
8,355 |
0 |
8,355 |
117.21 |
$979 |
$368 |
|||||
|
2023 |
90,000 |
72,351 |
7,957 |
0 |
7,957 |
112.46 |
$895 |
$218 |
|||||
|
2022 |
80,500 |
68,906 |
7,578 |
0 |
7,578 |
110.76 |
$840 |
$141 |
|||||
|
2021 |
68,500 |
65,625 |
7,218 |
0 |
7,218 |
114.70 |
$828 |
$36 |
|||||
| Property Account Status/Adjustments/Exemptions | ||
|---|---|---|
| Account # | Exemption Description | Amount |
|
R153181875 |
5% Capped Account |
0 |
| Property Deed Transaction History (Recorded in the County Clerk's Office) | ||||||||||
|---|---|---|---|---|---|---|---|---|---|---|
| Date | Type | Book | Page | Price | Grantor | Grantee | ||||
|
5/18/2023 |
|
Hmstd Off & |
$0 |
ELLIS TONY JOE |
ELLIS MARCI JO |
|||||
|
5/18/2023 |
|
Hmstd Off & |
$0 |
ELLIS MARCI JO |
ELLIS MARCI JO |
|||||
|
5/13/2015 |
|
Deeds |
$0 |
ELLIS KATHLEEN LYNN |
ELLIS TONY JOE |
|||||
|
11/24/2003 |
|
Deeds |
$0 |
ELLIS TONY J & KATHRYN L ELLIS LORI LYNN |
ELLIS TONY J ELLIS KATHRYN L |
|||||
|
4/2/1992 |
|
Historical |
$18,000 |
MCDOWELL FOREST L JR & DEBORAH |
ELLIS TONY J & KATHRYN L |
|||||
| Last Mailed Notice of Value (N.O.V.) Information/History | ||||||||
|---|---|---|---|---|---|---|---|---|
| Year | Date | Market Value | Taxable Market Value | Gross Assessed | Exemption | Net Assessed | ||
|
2026 |
02/06/2026 |
115,500 |
83,754 |
9,212 |
0 |
9,212 |
||
|
2025 |
01/31/2025 |
117,000 |
79,766 |
8,773 |
0 |
8,773 |
||
|
2024 |
01/22/2024 |
104,500 |
75,968 |
8,355 |
0 |
8,355 |
||
|
2023 |
01/23/2023 |
90,000 |
72,351 |
7,957 |
0 |
7,957 |
||
|
2022 |
02/22/2022 |
80,500 |
68,906 |
7,578 |
0 |
7,578 |
||
| Property Building Permit History | |||||||||||
|---|---|---|---|---|---|---|---|---|---|---|---|
| Issued | Permit # | Provided by | Bldg # | Description | Est Construction Cost | Status | |||||
| No Building Permit records returned. | |||||||||||
| Click button on building number to access detailed information: | ||||||
|---|---|---|---|---|---|---|
| Bldg # | Vacant/Improved Land | Bldg Description | Year Built | SqFt | # Stories | |
|
1 |
Improved |
Ranch 1 Story |
1963 |
1,077 |
1 Stories |
|