|
|
|
| Larry Stein Oklahoma County Assessor (405) 713-1200 - Public Access System |
|
|
|
|
|
|
| Real Property Display - Screen Produced 3/14/2026 7:38:02 AM | ||||
|---|---|---|---|---|
| Account: R120781080 | Type: Residential | Location: |
21274 SE 15TH ST |
|
| Building Name/Occupant: |
|
UNINCORPORATED |
||
| Owner Name 1: | COOKSEY WALTER D & HELEN L |
Parcel PIN#: |
1048-12-078-1080 |
|
| Owner Name 2: | 1/4 section #: |
1048 |
||
| Owner Name 3: | Parent Acct: |
|
||
| Billing Address: | PO BOX 868 | Tax District: |
|
|
| City, State, Zip | NICOMA PARK, OK 73066-0868 | School System: |
Harrah #7 |
|
|
Country: (If noted) |
Land Size: |
2.0900 Acres |
||
|
Land Value: 49,896 |
|
|||
|
Sect 12-T11N-R1E Qtr NW |
COPPER RIDGE NORTH
Block
001
Lot
010
|
|||
| Full Legal Description: COPPER RIDGE NORTH BLK 001 LOT 010 |
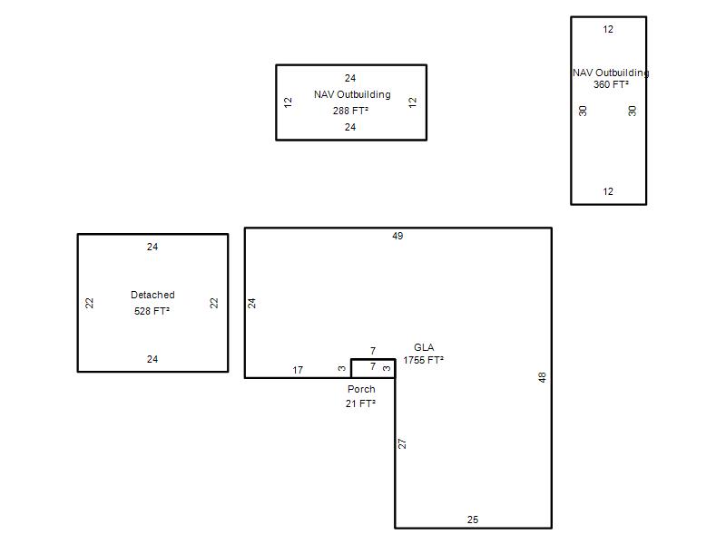
| Photo & Sketch (if available) | Comp Sales (ordered by relevancy) |
|
||||||||||||||||||
|
||||||||||||||||||||
| Value History (*The County Treasurer 405-713-1300 posts & collects actual tax amounts. Contact information HERE) | |||||||||||||
|---|---|---|---|---|---|---|---|---|---|---|---|---|---|
| Year | Market Value | Taxable Mkt Value | Gross Assessed | Exemption | Net Assessed | Millage | Est. Tax | Tax Savings | |||||
|
2025 |
279,500 |
203,565 |
22,391 |
0 |
22,391 |
107.54 |
$2,408 |
$898 |
|||||
|
2024 |
267,000 |
193,872 |
21,325 |
0 |
21,325 |
110.62 |
$2,359 |
$890 |
|||||
|
2023 |
246,500 |
184,640 |
20,310 |
0 |
20,310 |
97.88 |
$1,988 |
$666 |
|||||
|
2022 |
216,000 |
175,848 |
19,343 |
0 |
19,343 |
99.50 |
$1,925 |
$439 |
|||||
|
2021 |
176,500 |
167,475 |
18,422 |
0 |
18,422 |
99.52 |
$1,833 |
$99 |
|||||
| Property Account Status/Adjustments/Exemptions | ||
|---|---|---|
| Account # | Exemption Description | Amount |
|
R120781080 |
5% Capped Account |
0 |
| Property Deed Transaction History (Recorded in the County Clerk's Office) | |||||||
|---|---|---|---|---|---|---|---|
| Date | Type | Book | Page | Price | Grantor | Grantee | |
|
4/20/2011 |
|
Deeds |
$80,000 |
HOUSEHOLD FINANCE CORPORATION III |
COOKSEY WALTER D & HELEN L |
||
|
10/22/2010 |
|
Hmstd Off & |
$0 |
PITTS DAVID & EDNA K |
HOUSEHOLD FINANCE CORPORATION III |
||
|
7/8/1997 |
|
Historical |
$0 |
PITTS DAVID & EDNA K |
PITTS DAVID & EDNA K |
||
|
8/1/1981 |
|
Historical |
$0 |
|
PITTS DAVID & EDNA K |
||
| Last Mailed Notice of Value (N.O.V.) Information/History | ||||||||
|---|---|---|---|---|---|---|---|---|
| Year | Date | Market Value | Taxable Market Value | Gross Assessed | Exemption | Net Assessed | ||
|
2026 |
02/06/2026 |
269,500 |
213,743 |
23,511 |
0 |
23,511 |
||
|
2025 |
01/31/2025 |
279,500 |
203,565 |
22,391 |
0 |
22,391 |
||
|
2024 |
01/22/2024 |
267,000 |
193,872 |
21,325 |
0 |
21,325 |
||
|
2023 |
01/23/2023 |
246,500 |
184,640 |
20,310 |
0 |
20,310 |
||
|
2022 |
02/22/2022 |
216,000 |
175,848 |
19,343 |
0 |
19,343 |
||
| Property Building Permit History | |||||||||||
|---|---|---|---|---|---|---|---|---|---|---|---|
| Issued | Permit # | Provided by | Bldg # | Description | Est Construction Cost | Status | |||||
| No Building Permit records returned. | |||||||||||
| Click button on building number to access detailed information: | ||||||
|---|---|---|---|---|---|---|
| Bldg # | Vacant/Improved Land | Bldg Description | Year Built | SqFt | # Stories | |
|
1 |
Improved |
Ranch 1 Story |
1989 |
1,755 |
1 Stories |
|