|
|
|
| Larry Stein Oklahoma County Assessor (405) 713-1200 - Public Access System |
|
|
|
|
|
|
| Real Property Display - Screen Produced 3/24/2026 6:05:10 AM | ||||
|---|---|---|---|---|
| Account: R148011650 | Type: Residential | Location: |
6518 NW 10TH ST |
|
| Building Name/Occupant: |
|
OKLAHOMA CITY |
||
| Owner Name 1: | 6518 NW 10 LLC |
Parcel PIN#: |
2929-14-801-1650 |
|
| Owner Name 2: | 1/4 section #: |
2929 |
||
| Owner Name 3: | Parent Acct: |
|
||
| Billing Address: | 6915 N CLASSEN BLVD | Tax District: |
|
|
| City, State, Zip | OKLAHOMA CITY, OK 73116-7209 | School System: |
Putnam City #1 |
|
|
Country: (If noted) |
Land Size: |
1.0000 Acres |
||
|
Land Value: 20,940 |
|
|||
|
Sect 33-T12N-R4W Qtr NE |
UNPLTD PT SEC 33 12N 4W
Block
000
Lot
000
|
|||
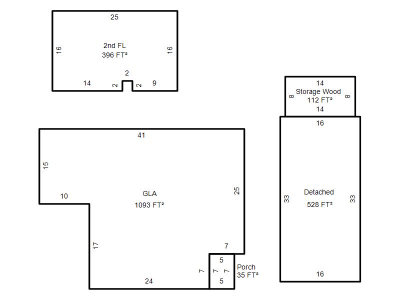
| Full Legal Description: UNPLTD PT OF SEC 33 12N 4W BEG 33FT S OF NW/C OF NE4 TH E100FT S436FT W100FT N436FT TO BEG |
| Photo & Sketch (if available) | Comp Sales (ordered by relevancy) |
|
||||||||||||||||||
|
||||||||||||||||||||
| Value History (*The County Treasurer 405-713-1300 posts & collects actual tax amounts. Contact information HERE) | |||||||||||||
|---|---|---|---|---|---|---|---|---|---|---|---|---|---|
| Year | Market Value | Taxable Mkt Value | Gross Assessed | Exemption | Net Assessed | Millage | Est. Tax | Tax Savings | |||||
|
2025 |
180,500 |
180,500 |
19,855 |
0 |
19,855 |
123.17 |
$2,446 |
$0 |
|||||
|
2024 |
193,000 |
193,000 |
21,230 |
0 |
21,230 |
122.30 |
$2,596 |
$0 |
|||||
|
2023 |
119,000 |
119,000 |
13,090 |
0 |
13,090 |
121.91 |
$1,596 |
$0 |
|||||
|
2022 |
101,000 |
52,431 |
5,766 |
1,000 |
4,766 |
123.41 |
$588 |
$783 |
|||||
|
2021 |
93,500 |
50,904 |
5,599 |
1,000 |
4,599 |
122.23 |
$562 |
$695 |
|||||
| Property Account Status/Adjustments/Exemptions | ||
|---|---|---|
| Account # | Exemption Description | Amount |
|
R148011650 |
5% Capped Account |
0 |
| Property Deed Transaction History (Recorded in the County Clerk's Office) | ||||||||||
|---|---|---|---|---|---|---|---|---|---|---|
| Date | Type | Book | Page | Price | Grantor | Grantee | ||||
|
5/1/2023 |
|
Deeds |
$225,000 |
G G & M REMODELING LLC |
6518 NW 10 LLC |
|||||
|
9/9/2022 |
|
Deeds |
$117,000 |
OGLE PROPERTY SOLUTIONS LLC |
G G & M REMODELING LLC |
|||||
|
8/1/2022 |
|
Deeds |
$65,000 |
GRINSTEAD CONNIE L |
OGLE PROPERTY SOLUTIONS LLC |
|||||
|
8/1/2022 |
|
Hmstd Off & |
$0 |
GRINSTEAD CONNIE L |
OGLE PROPERTY SOLUTIONS LLC |
|||||
|
8/1/2022 |
|
Deeds |
$0 |
GRINSTEAD BRADLEY C |
GRINSTEAD CONNIE L |
|||||
| Last Mailed Notice of Value (N.O.V.) Information/History | ||||||||
|---|---|---|---|---|---|---|---|---|
| Year | Date | Market Value | Taxable Market Value | Gross Assessed | Exemption | Net Assessed | ||
|
2026 |
02/23/2026 |
221,500 |
189,525 |
20,847 |
0 |
20,847 |
||
|
2024 |
02/13/2024 |
193,000 |
193,000 |
21,230 |
0 |
21,230 |
||
|
2023 |
02/14/2023 |
119,000 |
119,000 |
13,090 |
0 |
13,090 |
||
|
2022 |
03/15/2022 |
101,000 |
52,431 |
5,766 |
1,000 |
4,766 |
||
|
2021 |
03/19/2021 |
93,500 |
50,904 |
5,599 |
1,000 |
4,599 |
||
| Property Building Permit History | ||||||
|---|---|---|---|---|---|---|
| Issued | Permit # | Provided by | Bldg # | Description | Est Construction Cost | Status |
|
1/5/1996 |
10242649 |
OKLAHOMA CITY |
1 |
Remodeled |
15,000 |
Inactive |
| Click button on building number to access detailed information: | ||||||
|---|---|---|---|---|---|---|
| Bldg # | Vacant/Improved Land | Bldg Description | Year Built | SqFt | # Stories | |
|
1 |
Improved |
1½ Story Fin |
1936 |
1,489 |
1.5 Stories |
|