|
|
|
| Larry Stein Oklahoma County Assessor (405) 713-1200 - Public Access System |
|
|
|
|
|
|
| Real Property Display - Screen Produced 3/24/2026 6:09:33 AM | ||||
|---|---|---|---|---|
| Account: R148014405 | Type: Residential | Location: |
600 N CEDARDALE DR |
|
| Building Name/Occupant: |
|
OKLAHOMA CITY |
||
| Owner Name 1: | WHIPPLE NEVA J |
Parcel PIN#: |
2929-14-801-4405 |
|
| Owner Name 2: | DAVIS BECKY LYN | 1/4 section #: |
2929 |
|
| Owner Name 3: | Parent Acct: |
|
||
| Billing Address: | 600 N CEDARDALE DR | Tax District: |
|
|
| City, State, Zip | OKLAHOMA CITY, OK 73127-5510 | School System: |
Putnam City #1 |
|
|
Country: (If noted) |
Land Size: |
1.4300 Acres |
||
|
Land Value: 29,944 |
|
|||
|
Sect 33-T12N-R4W Qtr NE |
UNPLTD PT SEC 33 12N 4W
Block
000
Lot
000
|
|||
| Full Legal Description: UNPLTD PT SEC 33 12N 4W 000 000 PT NE4 SEC 33 12N 4W BEG 460FT E & 430FT N OF SW/C OF NE4 TH N65FT E528FT S165FT W278.8FT N100FT W250FT TO BEG KNOWN AS PT OF TR 39 MANWELL PARK UNREC |
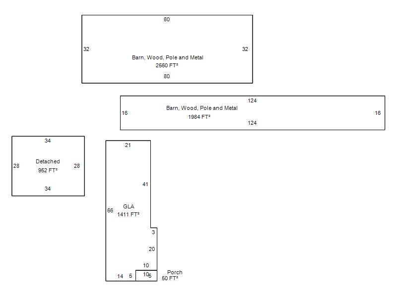
| Photo & Sketch (if available) | Comp Sales (ordered by relevancy) |
|
||||||||||||||||||
|
||||||||||||||||||||
| Value History (*The County Treasurer 405-713-1300 posts & collects actual tax amounts. Contact information HERE) | |||||||||||||
|---|---|---|---|---|---|---|---|---|---|---|---|---|---|
| Year | Market Value | Taxable Mkt Value | Gross Assessed | Exemption | Net Assessed | Millage | Est. Tax | Tax Savings | |||||
|
2025 |
171,500 |
100,462 |
11,049 |
1,000 |
10,049 |
123.17 |
$1,238 |
$1,086 |
|||||
|
2024 |
179,000 |
97,536 |
10,728 |
1,000 |
9,728 |
122.30 |
$1,190 |
$1,218 |
|||||
|
2023 |
164,000 |
94,696 |
10,416 |
1,000 |
9,416 |
121.91 |
$1,148 |
$1,051 |
|||||
|
2022 |
140,000 |
91,938 |
10,111 |
1,000 |
9,111 |
123.41 |
$1,125 |
$776 |
|||||
|
2021 |
118,000 |
89,261 |
9,817 |
1,000 |
8,817 |
122.23 |
$1,078 |
$509 |
|||||
| Property Account Status/Adjustments/Exemptions | ||
|---|---|---|
| Account # | Exemption Description | Amount |
|
R148014405 |
Homestead |
1,000 |
|
R148014405 |
3% Cap Homestead |
0 |
| Property Deed Transaction History (Recorded in the County Clerk's Office) | ||||||||||
|---|---|---|---|---|---|---|---|---|---|---|
| Date | Type | Book | Page | Price | Grantor | Grantee | ||||
|
6/5/2015 |
|
Deeds |
$0 |
WHIPPLE NEVA J |
WHIPPLE NEVA J |
|||||
|
9/13/1993 |
|
Historical |
$0 |
KOOKEN NEVA J |
WHIPPLE NEVA J |
|||||
|
2/12/1992 |
|
Historical |
$0 |
KOOKEN LESTER G & NEVA J |
KOOKEN NEVA J |
|||||
|
11/10/1988 |
|
Historical |
$0 |
TRANSAMERICA FINANCIAL |
KOOKEN LESTER G & NEVA J |
|||||
|
10/6/1988 |
|
Historical |
$0 |
WARD MORGAN |
TRANSAMERICA FINANCIAL |
|||||
| Last Mailed Notice of Value (N.O.V.) Information/History | ||||||||
|---|---|---|---|---|---|---|---|---|
| Year | Date | Market Value | Taxable Market Value | Gross Assessed | Exemption | Net Assessed | ||
|
2026 |
02/23/2026 |
177,500 |
103,475 |
11,381 |
1,000 |
10,381 |
||
|
2025 |
02/14/2025 |
171,500 |
100,462 |
11,049 |
1,000 |
10,049 |
||
|
2024 |
02/13/2024 |
179,000 |
97,536 |
10,728 |
1,000 |
9,728 |
||
|
2023 |
02/14/2023 |
164,000 |
94,696 |
10,416 |
1,000 |
9,416 |
||
|
2022 |
03/15/2022 |
140,000 |
91,938 |
10,111 |
1,000 |
9,111 |
||
| Property Building Permit History | |||||||||||
|---|---|---|---|---|---|---|---|---|---|---|---|
| Issued | Permit # | Provided by | Bldg # | Description | Est Construction Cost | Status | |||||
| No Building Permit records returned. | |||||||||||
| Click button on building number to access detailed information: | ||||||
|---|---|---|---|---|---|---|
| Bldg # | Vacant/Improved Land | Bldg Description | Year Built | SqFt | # Stories | |
|
1 |
Improved |
Ranch 1 Story |
1946 |
1,411 |
1 Stories |
|