|
|
|
| Larry Stein Oklahoma County Assessor (405) 713-1200 - Public Access System |
|
|
|
|
|
|
| Real Property Display - Screen Produced 3/22/2026 10:48:43 AM | ||||
|---|---|---|---|---|
| Account: R151330610 | Type: Residential | Location: |
3913 PINE AVE |
|
| Building Name/Occupant: |
|
DEL CITY |
||
| Owner Name 1: | MITCHUM JOHN |
Parcel PIN#: |
1425-15-133-0610 |
|
| Owner Name 2: | 1/4 section #: |
1425 |
||
| Owner Name 3: | Parent Acct: |
|
||
| Billing Address: | 3913 PINE AVE | Tax District: |
|
|
| City, State, Zip | DEL CITY, OK 73115-2435 | School System: |
Mid-Del #52 |
|
|
Country: (If noted) |
Land Size: |
0.1515 Acres |
||
|
Land Value: 18,150 |
|
|||
|
Sect 7-T11N-R2W Qtr NE |
CARTER PARK SECOND
Block
002
Lot
024
|
|||
| Full Legal Description: CARTER PARK SECOND 002 024 |
| Photo & Sketch (if available) | Comp Sales (ordered by relevancy) |
|
||||||||||||||||||
|
||||||||||||||||||||
| Value History (*The County Treasurer 405-713-1300 posts & collects actual tax amounts. Contact information HERE) | |||||||||||||
|---|---|---|---|---|---|---|---|---|---|---|---|---|---|
| Year | Market Value | Taxable Mkt Value | Gross Assessed | Exemption | Net Assessed | Millage | Est. Tax | Tax Savings | |||||
|
2025 |
92,000 |
51,586 |
5,674 |
1,000 |
4,674 |
114.72 |
$536 |
$625 |
|||||
|
2024 |
79,500 |
50,084 |
5,508 |
1,000 |
4,508 |
117.21 |
$529 |
$496 |
|||||
|
2023 |
67,500 |
48,626 |
5,348 |
1,000 |
4,348 |
112.46 |
$489 |
$346 |
|||||
|
2022 |
59,000 |
47,210 |
5,192 |
1,000 |
4,192 |
110.76 |
$464 |
$254 |
|||||
|
2021 |
48,500 |
45,835 |
5,041 |
1,000 |
4,041 |
114.70 |
$464 |
$148 |
|||||
| Property Account Status/Adjustments/Exemptions | ||
|---|---|---|
| Account # | Exemption Description | Amount |
|
R151330610 |
3% Cap Homestead |
0 |
|
R151330610 |
Homestead |
1,000 |
| Property Deed Transaction History (Recorded in the County Clerk's Office) | ||||||||||
|---|---|---|---|---|---|---|---|---|---|---|
| Date | Type | Book | Page | Price | Grantor | Grantee | ||||
|
2/2/2017 |
|
Hmstd Off & |
$0 |
CHERRY DAVID |
MITCHUM JOHN |
|||||
|
12/20/2016 |
|
Deeds |
$0 |
BIGBIE JUANITA CHRISTINE LIVING TRUST |
BIGBIE STEVEN W SUC TRS |
|||||
|
12/19/2016 |
|
Deeds |
$28,000 |
BIGBIE STEVEN W & JANIS |
CHERRY DAVID |
|||||
|
3/24/2011 |
|
Hmstd Off & |
$0 |
BIGBIE JAUNITA C TRS BIGBIE JAUNITA CHRISTINE LIV TRUST |
BIGBIE STEVEN W & JANIS |
|||||
|
10/14/2003 |
|
Deeds |
$0 |
BIGBIE JAUNITA C BIGBIE STEVEN W |
BIGBIE JAUNITA C TRS BIGBIE JAUNITA CHRISTINE LIV TRUST |
|||||
| Last Mailed Notice of Value (N.O.V.) Information/History | ||||||||
|---|---|---|---|---|---|---|---|---|
| Year | Date | Market Value | Taxable Market Value | Gross Assessed | Exemption | Net Assessed | ||
|
2026 |
02/06/2026 |
92,000 |
53,133 |
5,844 |
1,000 |
4,844 |
||
|
2025 |
01/31/2025 |
92,000 |
51,586 |
5,674 |
1,000 |
4,674 |
||
|
2024 |
01/22/2024 |
79,500 |
50,084 |
5,508 |
1,000 |
4,508 |
||
|
2023 |
01/23/2023 |
67,500 |
48,626 |
5,348 |
1,000 |
4,348 |
||
|
2022 |
02/22/2022 |
59,000 |
47,210 |
5,192 |
1,000 |
4,192 |
||
| Property Building Permit History | |||||||||||
|---|---|---|---|---|---|---|---|---|---|---|---|
| Issued | Permit # | Provided by | Bldg # | Description | Est Construction Cost | Status | |||||
| No Building Permit records returned. | |||||||||||
| Click button on building number to access detailed information: | ||||||
|---|---|---|---|---|---|---|
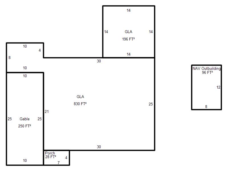
| Bldg # | Vacant/Improved Land | Bldg Description | Year Built | SqFt | # Stories | |
|
1 |
Improved |
Ranch 1 Story |
1950 |
1,026 |
1 Stories |
|