Larry Stein Oklahoma County Assessor (405) 713-1200 - Public Access System
Home Contact Us Guest Book Map Search New Search
Real Property Display - Screen Produced   4/25/2026 3:57:03 AM 
Account: R201511240  Type: Residential

  

Location:

15237 WORTHINGTON LN

Building Name/Occupant:

 

OKLAHOMA CITY

Owner Name 1:  HOWARD MARK C

Parcel PIN#:

3615-20-151-1240

Owner Name 2:    1/4 section #:

3615

Owner Name 3:    Parent Acct:

3615-14-452-1630

Billing Address:  15237 WORTHINGTON LN Tax District:

City, State, Zip  EDMOND, OK  73013-1133 School System:

Edmond #12

Country: (If noted)

  

Land Size:

0.3792  Acres

Personal Property

Land Value: 76,818 

Treasurer:

Sect 4-T13N-R3W Qtr SW

 BRENTON HILLS SEC 5   Block 004  Lot 025   Subdivision Sales
 Full Legal Description:  BRENTON HILLS SEC 5 004 025

NOTE:  The following sales may or may not be used to determine Fair Market Value

Photo & Sketch (if available) Sales  Sales Report

 501 NW 154TH ST OKLAHOMA CITY, OK

07/10/2025

 $575,000 

 521 NW 154TH ST OKLAHOMA CITY, OK

08/07/2023

 $512,000 

 609 NW 160TH ST OKLAHOMA CITY, OK

06/06/2024

 $535,000 

 15400 ESSEX CT OKLAHOMA CITY, OK

05/23/2025

 $499,500 

 512 NW 155TH CIR OKLAHOMA CITY, OK

08/12/2024

 $520,000 

 15413 BRENTON HILLS AVE OKLAHOMA CITY, OK

04/19/2024

 $605,000 

Value History  (*The County Treasurer 405-713-1300 posts & collects actual tax amounts.  Contact information  HERE)
Year Market Value Taxable Mkt Value Gross Assessed Exemption Net Assessed Millage Est. Tax Tax Savings
No PropertyValuation records returned.
Property Account Status/Adjustments/Exemptions
Account # Exemption Description Amount

R201511240

3% Cap Homestead

R201511240

Homestead

1,000 

Property Deed Transaction History   (Recorded in the County Clerk's Office)
Date Type Book Page Price Grantor Grantee

1/14/2005

Deeds

9589

1586

 $320,000 

CHITTENDEN LARRY KEVIN & JULIE KATHLEEN

HOWARD MARK C

3/30/2001

Deeds

8058

898

 $272,500 

MCALPIN HOMES LLC

CHITTENDEN LARRY KEVIN & JULIE KATHLEEN

12/17/1999

Deeds

7751

600

 $40,000 

WINCHESTER DEVELOPMENT LLC

MCALPIN HOMES LLC

Last Mailed Notice of Value (N.O.V.) Information/History
Year Date Market Value Taxable Market Value Gross Assessed Exemption Net Assessed
No Notice of Value N.O.V. records returned.
Property Building Permit History
Issued Permit # Provided by Bldg # Description Est Construction Cost Status

5/14/2001

10270724

OKLAHOMA CITY

1

Swimming Pool

6,299 

Inactive

1/4/2000

10270723

OKLAHOMA CITY

1

Main Dwellin

174,800 

Inactive

Click button below to access detailed information and additional property photos:
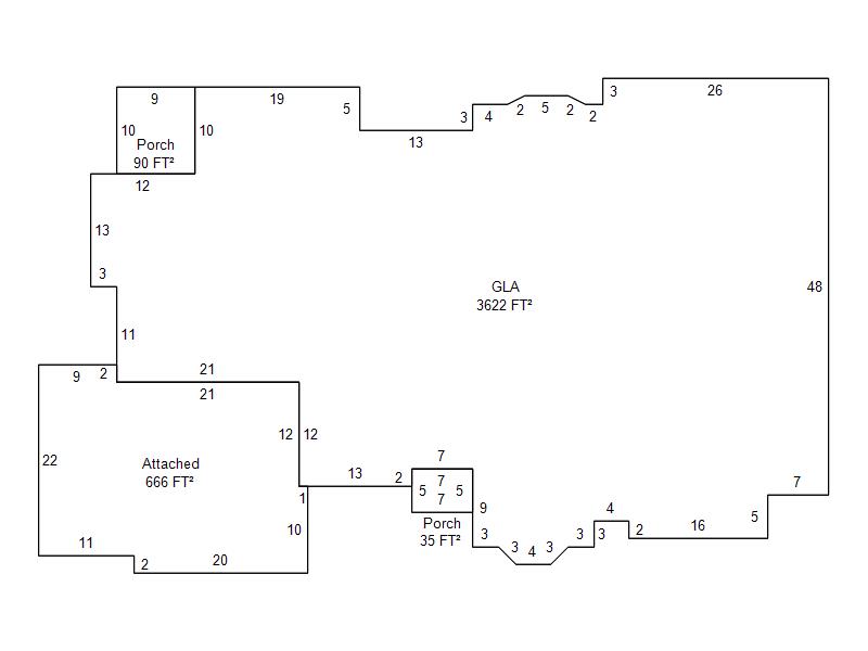
  Bldg # Vacant/Improved Land Bldg Description Year Built SqFt # Stories

Click

1

Improved

Ranch 1 Story

2000

3,622 

1 Stories