|
|
|
| Larry Stein Oklahoma County Assessor (405) 713-1200 - Public Access System |
|
|
|
|
|
|
| Real Property Display - Screen Produced 3/23/2026 9:43:44 AM | ||||
|---|---|---|---|---|
| Account: R122781500 | Type: Residential | Location: |
14007 CROSSING WAY WEST |
|
| Building Name/Occupant: |
|
OKLAHOMA CITY |
||
| Owner Name 1: | WALKER CYNTHIA |
Parcel PIN#: |
3643-12-278-1500 |
|
| Owner Name 2: | 1/4 section #: |
3643 |
||
| Owner Name 3: | Parent Acct: |
|
||
| Billing Address: | 14007 CROSSING WAY W | Tax District: |
|
|
| City, State, Zip | EDMOND, OK 73013-4756 | School System: |
Edmond #12 |
|
|
Country: (If noted) |
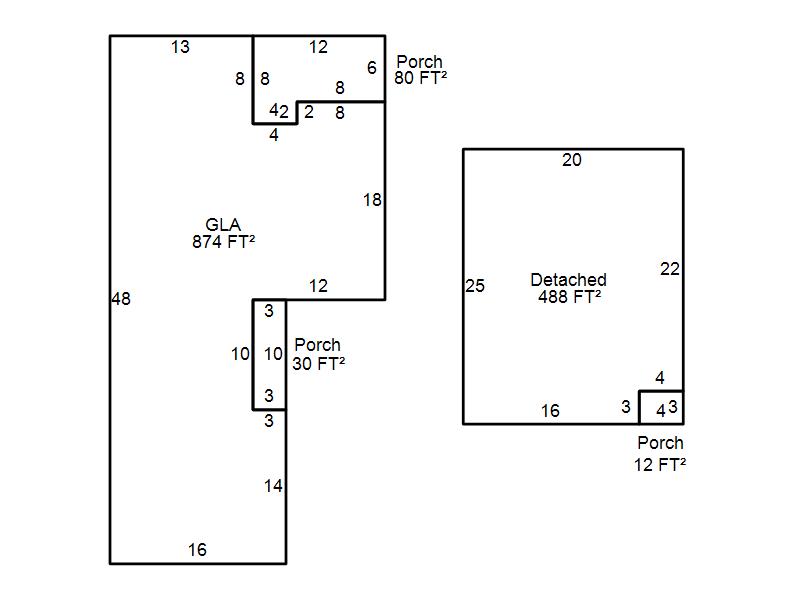
Land Size: |
0.0488 Acres |
||
|
Land Value: 16,575 |
|
|||
|
Sect 11-T13N-R3W Qtr SW |
THE CROSSING SEC III
Block
004
Lot
051
|
|||
| Full Legal Description: THE CROSSING SEC III 004 051 |
| Photo & Sketch (if available) | Comp Sales (ordered by relevancy) |
|
||||||||||||||||||
|
||||||||||||||||||||
| Value History (*The County Treasurer 405-713-1300 posts & collects actual tax amounts. Contact information HERE) | |||||||||||||
|---|---|---|---|---|---|---|---|---|---|---|---|---|---|
| Year | Market Value | Taxable Mkt Value | Gross Assessed | Exemption | Net Assessed | Millage | Est. Tax | Tax Savings | |||||
|
2025 |
130,500 |
111,826 |
12,300 |
0 |
12,300 |
120.32 |
$1,480 |
$247 |
|||||
|
2024 |
133,000 |
106,501 |
11,714 |
0 |
11,714 |
119.96 |
$1,405 |
$350 |
|||||
|
2023 |
127,500 |
101,430 |
11,157 |
0 |
11,157 |
119.02 |
$1,328 |
$341 |
|||||
|
2022 |
101,500 |
96,600 |
10,626 |
0 |
10,626 |
120.10 |
$1,276 |
$65 |
|||||
|
2021 |
92,000 |
92,000 |
10,120 |
0 |
10,120 |
118.88 |
$1,203 |
$0 |
|||||
| Property Account Status/Adjustments/Exemptions | ||
|---|---|---|
| Account # | Exemption Description | Amount |
|
R122781500 |
5% Capped Account |
0 |
| Property Deed Transaction History (Recorded in the County Clerk's Office) | ||||||||||
|---|---|---|---|---|---|---|---|---|---|---|
| Date | Type | Book | Page | Price | Grantor | Grantee | ||||
|
12/5/2016 |
|
Deeds |
$85,000 |
EMERY AARON S |
WALKER CYNTHIA |
|||||
|
9/1/2015 |
|
Deeds |
$81,000 |
LOCKWOOD ROY A TRS HOWELL SANJA TRS |
EMERY AARON S |
|||||
|
7/9/2008 |
|
Deeds |
$0 |
LOCKWOOD ROY A |
LOCKWOOD ROY A TRS HOWELL SANJA TRS |
|||||
|
1/8/2007 |
|
Deeds |
$0 |
LOCKWOOD JANA S & ROY A |
LOCKWOOD ROY A |
|||||
|
7/6/1995 |
|
Historical |
$0 |
PARRIS JANA S |
LOCKWOOD JANA S & ROY A |
|||||
| Last Mailed Notice of Value (N.O.V.) Information/History | ||||||||
|---|---|---|---|---|---|---|---|---|
| Year | Date | Market Value | Taxable Market Value | Gross Assessed | Exemption | Net Assessed | ||
|
2026 |
02/23/2026 |
130,500 |
117,417 |
12,915 |
0 |
12,915 |
||
|
2025 |
02/14/2025 |
130,500 |
111,826 |
12,300 |
0 |
12,300 |
||
|
2024 |
02/13/2024 |
133,000 |
106,501 |
11,714 |
0 |
11,714 |
||
|
2023 |
02/14/2023 |
127,500 |
101,430 |
11,157 |
0 |
11,157 |
||
|
2022 |
03/15/2022 |
101,500 |
96,600 |
10,626 |
0 |
10,626 |
||
| Property Building Permit History | |||||||||||
|---|---|---|---|---|---|---|---|---|---|---|---|
| Issued | Permit # | Provided by | Bldg # | Description | Est Construction Cost | Status | |||||
| No Building Permit records returned. | |||||||||||
| Click button on building number to access detailed information: | ||||||
|---|---|---|---|---|---|---|
| Bldg # | Vacant/Improved Land | Bldg Description | Year Built | SqFt | # Stories | |
|
1 |
Improved |
Townhouse One Story |
1984 |
874 |
1 Stories |
|