|
|
|
| Larry Stein Oklahoma County Assessor (405) 713-1200 - Public Access System |
|
|
|
|
|
|
| Real Property Display - Screen Produced 4/1/2026 10:08:37 AM | ||||
|---|---|---|---|---|
| Account: R180611200 | Type: Residential | Location: |
13808 CROSSING WAY EAST |
|
| Building Name/Occupant: |
|
OKLAHOMA CITY |
||
| Owner Name 1: | BROWN KATHRYN JOHAL |
Parcel PIN#: |
3643-18-061-1200 |
|
| Owner Name 2: | 1/4 section #: |
3643 |
||
| Owner Name 3: | Parent Acct: |
|
||
| Billing Address: | 13808 CROSSING WAY E | Tax District: |
|
|
| City, State, Zip | EDMOND, OK 73013 | School System: |
Edmond #12 |
|
|
Country: (If noted) |
Land Size: |
0.0488 Acres |
||
|
Land Value: 16,575 |
|
|||
|
Sect 11-T13N-R3W Qtr SW |
THE CROSSING SEC 1
Block
001
Lot
021
|
|||
| Full Legal Description: THE CROSSING SEC 1 001 021 |
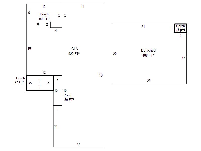
| Photo & Sketch (if available) | Comp Sales (ordered by relevancy) |
|
||||||||||||||||||
|
||||||||||||||||||||
| Value History (*The County Treasurer 405-713-1300 posts & collects actual tax amounts. Contact information HERE) | |||||||||||||
|---|---|---|---|---|---|---|---|---|---|---|---|---|---|
| Year | Market Value | Taxable Mkt Value | Gross Assessed | Exemption | Net Assessed | Millage | Est. Tax | Tax Savings | |||||
|
2026 |
130,500 |
130,500 |
14,355 |
0 |
14,355 |
120.32 |
$1,727 |
$0 |
|||||
|
2025 |
131,000 |
124,443 |
13,687 |
0 |
13,687 |
120.32 |
$1,647 |
$87 |
|||||
|
2024 |
129,500 |
118,518 |
13,036 |
0 |
13,036 |
119.96 |
$1,564 |
$145 |
|||||
|
2023 |
128,500 |
112,875 |
12,416 |
0 |
12,416 |
119.02 |
$1,478 |
$205 |
|||||
|
2022 |
107,500 |
107,500 |
11,825 |
0 |
11,825 |
120.10 |
$1,420 |
$0 |
|||||
| Property Account Status/Adjustments/Exemptions | ||
|---|---|---|
| Account # | Exemption Description | Amount |
|
R180611200 |
5% Capped Account |
0 |
| Property Deed Transaction History (Recorded in the County Clerk's Office) | ||||||||||
|---|---|---|---|---|---|---|---|---|---|---|
| Date | Type | Book | Page | Price | Grantor | Grantee | ||||
|
11/19/2021 |
|
Deeds |
$112,000 |
MAXWELL BARBARA A |
BROWN KATHRYN JOHAL |
|||||
|
5/22/2009 |
|
Deeds |
$80,500 |
MARTIN KEVIN S & PATTI L |
MAXWELL BARBARA A |
|||||
|
6/25/2002 |
|
Deeds |
$49,500 |
BADGETT BARBARA GAIL |
MARTIN KEVIN S & PATTI L |
|||||
|
6/29/1993 |
|
Historical |
$35,000 |
SHEA CYNTHIA ANN |
BADGETT BARBARA GAIL |
|||||
|
8/2/1988 |
|
Historical |
$22,000 |
LIBERTY NATIONAL BANK |
SHEA CYNTHIA ANN |
|||||
| Last Mailed Notice of Value (N.O.V.) Information/History | ||||||||
|---|---|---|---|---|---|---|---|---|
| Year | Date | Market Value | Taxable Market Value | Gross Assessed | Exemption | Net Assessed | ||
|
2026 |
02/23/2026 |
130,500 |
130,500 |
14,355 |
0 |
14,355 |
||
|
2025 |
02/14/2025 |
131,000 |
124,443 |
13,687 |
0 |
13,687 |
||
|
2024 |
02/13/2024 |
129,500 |
118,518 |
13,036 |
0 |
13,036 |
||
|
2023 |
02/14/2023 |
128,500 |
112,875 |
12,416 |
0 |
12,416 |
||
|
2022 |
03/15/2022 |
107,500 |
107,500 |
11,825 |
0 |
11,825 |
||
| Property Building Permit History | |||||||||||
|---|---|---|---|---|---|---|---|---|---|---|---|
| Issued | Permit # | Provided by | Bldg # | Description | Est Construction Cost | Status | |||||
| No Building Permit records returned. | |||||||||||
| Click button on building number to access detailed information: | ||||||
|---|---|---|---|---|---|---|
| Bldg # | Vacant/Improved Land | Bldg Description | Year Built | SqFt | # Stories | |
|
1 |
Improved |
Townhouse One Story |
1980 |
922 |
1 Stories |
|