|
|
|
| Larry Stein Oklahoma County Assessor (405) 713-1200 - Public Access System |
|
|
|
|
|
|
| Real Property Display - Screen Produced 3/25/2026 3:53:45 AM | ||||
|---|---|---|---|---|
| Account: R180611000 | Type: Residential | Location: |
13712 CROSSING WAY EAST |
|
| Building Name/Occupant: |
|
OKLAHOMA CITY |
||
| Owner Name 1: | ALSOBROOK MARY |
Parcel PIN#: |
3643-18-061-1000 |
|
| Owner Name 2: | 1/4 section #: |
3643 |
||
| Owner Name 3: | Parent Acct: |
|
||
| Billing Address: | 13712 CROSSING WAY EAST | Tax District: |
|
|
| City, State, Zip | EDMOND, OK 73013 | School System: |
Edmond #12 |
|
|
Country: (If noted) |
Land Size: |
0.0574 Acres |
||
|
Land Value: 19,500 |
|
|||
|
Sect 11-T13N-R3W Qtr SW |
THE CROSSING SEC 1
Block
001
Lot
001
|
|||
| Full Legal Description: THE CROSSING SEC 1 001 001 |
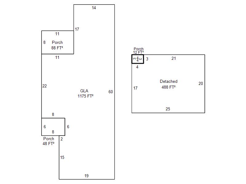
| Photo & Sketch (if available) | Comp Sales (ordered by relevancy) |
|
||||||||||||||||||
|
||||||||||||||||||||
| Value History (*The County Treasurer 405-713-1300 posts & collects actual tax amounts. Contact information HERE) | |||||||||||||
|---|---|---|---|---|---|---|---|---|---|---|---|---|---|
| Year | Market Value | Taxable Mkt Value | Gross Assessed | Exemption | Net Assessed | Millage | Est. Tax | Tax Savings | |||||
| No PropertyValuation records returned. | |||||||||||||
| Property Account Status/Adjustments/Exemptions | ||
|---|---|---|
| Account # | Exemption Description | Amount |
|
R180611000 |
Freeze Senior Valuation |
0 |
|
R180611000 |
Homestead |
1,000 |
|
R180611000 |
3% Cap Homestead |
0 |
| Property Deed Transaction History (Recorded in the County Clerk's Office) | ||||||||||
|---|---|---|---|---|---|---|---|---|---|---|
| Date | Type | Book | Page | Price | Grantor | Grantee | ||||
|
2/6/2017 |
|
Deeds |
$105,000 |
HENDRICKS DENISE L SHEPPARD CANDICE M |
ALSOBROOK MARY |
|||||
|
2/3/2017 |
|
Hmstd Off & |
$0 |
CAVANAUGH ROSE |
BARNES KAY |
|||||
|
4/5/2016 |
|
Hmstd Off & |
$0 |
CAVANAUGH ROSE ANN TRS CAVANAUGH ROSE REV TRUST |
HENDRICKS DENISE L SHEPPARD CANDICE M |
|||||
|
10/11/2007 |
|
Deeds |
$0 |
CAVANAUGH ROSE ANN |
CAVANAUGH ROSE ANN TRS CAVANAUGH ROSE REV TRUST |
|||||
|
12/30/1997 |
|
Historical |
$0 |
CAVANAUGH JAMES V |
CAVANAUGH ROSE ANN |
|||||
| Last Mailed Notice of Value (N.O.V.) Information/History | ||||||||
|---|---|---|---|---|---|---|---|---|
| Year | Date | Market Value | Taxable Market Value | Gross Assessed | Exemption | Net Assessed | ||
| No Notice of Value N.O.V. records returned. | ||||||||
| Property Building Permit History | |||||||||||
|---|---|---|---|---|---|---|---|---|---|---|---|
| Issued | Permit # | Provided by | Bldg # | Description | Est Construction Cost | Status | |||||
| No Building Permit records returned. | |||||||||||
| Click button on building number to access detailed information: | ||||||
|---|---|---|---|---|---|---|
| Bldg # | Vacant/Improved Land | Bldg Description | Year Built | SqFt | # Stories | |
|
1 |
Improved |
Townhouse One Story |
1981 |
1,175 |
1 Stories |
|