|
|
|
| Larry Stein Oklahoma County Assessor (405) 713-1200 - Public Access System |
|
|
|
|
|
|
| Real Property Display - Screen Produced 3/23/2026 8:16:55 AM | ||||
|---|---|---|---|---|
| Account: R180611550 | Type: Residential | Location: |
14112 CROSSING WAY EAST |
|
| Building Name/Occupant: |
|
OKLAHOMA CITY |
||
| Owner Name 1: | HENSLEY KIMBERLY K |
Parcel PIN#: |
3643-18-061-1550 |
|
| Owner Name 2: | BILLS JORDAN S | 1/4 section #: |
3643 |
|
| Owner Name 3: | Parent Acct: |
|
||
| Billing Address: | 14112 CROSSING WAY E | Tax District: |
|
|
| City, State, Zip | EDMOND, OK 73013-4732 | School System: |
Edmond #12 |
|
|
Country: (If noted) |
Land Size: |
0.0574 Acres |
||
|
Land Value: 19,500 |
|
|||
|
Sect 11-T13N-R3W Qtr SW |
THE CROSSING SEC 1
Block
001
Lot
056
|
|||
| Full Legal Description: THE CROSSING SEC 1 001 056 |
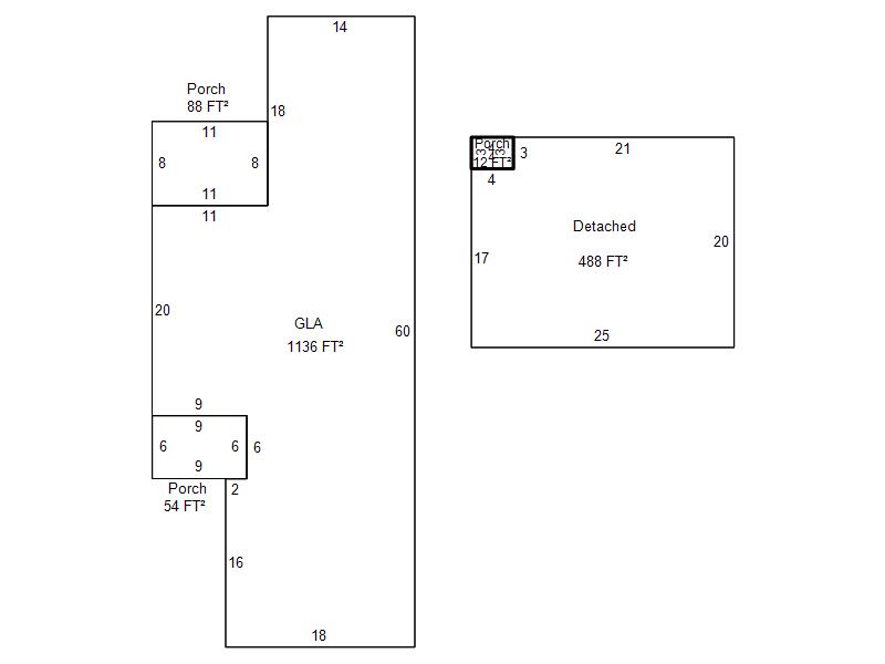
| Photo & Sketch (if available) | Comp Sales (ordered by relevancy) |
|
||||||||||||||||||
|
||||||||||||||||||||
| Value History (*The County Treasurer 405-713-1300 posts & collects actual tax amounts. Contact information HERE) | |||||||||||||
|---|---|---|---|---|---|---|---|---|---|---|---|---|---|
| Year | Market Value | Taxable Mkt Value | Gross Assessed | Exemption | Net Assessed | Millage | Est. Tax | Tax Savings | |||||
|
2025 |
162,500 |
155,452 |
17,099 |
0 |
17,099 |
120.32 |
$2,057 |
$93 |
|||||
|
2024 |
160,000 |
148,050 |
16,285 |
0 |
16,285 |
119.96 |
$1,954 |
$158 |
|||||
|
2023 |
141,000 |
141,000 |
15,510 |
0 |
15,510 |
119.02 |
$1,846 |
$0 |
|||||
|
2022 |
122,000 |
114,660 |
12,612 |
0 |
12,612 |
120.10 |
$1,515 |
$97 |
|||||
|
2021 |
112,500 |
109,200 |
12,012 |
0 |
12,012 |
118.88 |
$1,428 |
$43 |
|||||
| Property Account Status/Adjustments/Exemptions | ||
|---|---|---|
| Account # | Exemption Description | Amount |
|
R180611550 |
5% Capped Account |
0 |
| Property Deed Transaction History (Recorded in the County Clerk's Office) | |||||||
|---|---|---|---|---|---|---|---|
| Date | Type | Book | Page | Price | Grantor | Grantee | |
|
7/20/2023 |
|
Deeds |
$0 |
HENSLEY KIMBERLY K |
HENSLEY KIMBERLY K |
||
|
4/29/2022 |
|
Hmstd Off & |
$0 |
MSS PROPERTIES LLC |
MITCHELL FRANKLIN BENNETT |
||
|
4/29/2022 |
|
Deeds |
$140,000 |
MITCHELL FRANKLIN BENNETT |
HENSLEY KIMBERLY K |
||
|
8/15/2012 |
|
Hmstd Off & |
$0 |
MITCHELL FRANKLIN BENNETT |
MSS PROPERTIES LLC |
||
|
5/1/1981 |
|
Historical |
$0 |
|
MITCHELL FRANKLIN B |
||
| Last Mailed Notice of Value (N.O.V.) Information/History | ||||||||
|---|---|---|---|---|---|---|---|---|
| Year | Date | Market Value | Taxable Market Value | Gross Assessed | Exemption | Net Assessed | ||
|
2026 |
02/23/2026 |
157,500 |
157,500 |
17,325 |
0 |
17,325 |
||
|
2025 |
02/14/2025 |
162,500 |
155,452 |
17,099 |
0 |
17,099 |
||
|
2024 |
02/13/2024 |
160,000 |
148,050 |
16,285 |
0 |
16,285 |
||
|
2023 |
02/14/2023 |
141,000 |
141,000 |
15,510 |
0 |
15,510 |
||
|
2022 |
03/15/2022 |
122,000 |
114,660 |
12,612 |
0 |
12,612 |
||
| Property Building Permit History | |||||||||||
|---|---|---|---|---|---|---|---|---|---|---|---|
| Issued | Permit # | Provided by | Bldg # | Description | Est Construction Cost | Status | |||||
| No Building Permit records returned. | |||||||||||
| Click button on building number to access detailed information: | ||||||
|---|---|---|---|---|---|---|
| Bldg # | Vacant/Improved Land | Bldg Description | Year Built | SqFt | # Stories | |
|
1 |
Improved |
Townhouse One Story |
1981 |
1,136 |
1 Stories |
|