|
|
|
| Larry Stein Oklahoma County Assessor (405) 713-1200 - Public Access System |
|
|
|
|
|
|
| Real Property Display - Screen Produced 3/23/2026 5:35:35 AM | ||||
|---|---|---|---|---|
| Account: R180612030 | Type: Residential | Location: |
14131 CROSSING WAY EAST |
|
| Building Name/Occupant: |
|
OKLAHOMA CITY |
||
| Owner Name 1: | JEO ENTERPRISES LLC |
Parcel PIN#: |
3643-18-061-2030 |
|
| Owner Name 2: | 1/4 section #: |
3643 |
||
| Owner Name 3: | C/O JOHN M & JOY E OSBORNE | Parent Acct: |
|
|
| Billing Address: | 3624 VALLEY CREEK CIR | Tax District: |
|
|
| City, State, Zip | EDMOND , OK 73034 | School System: |
Edmond #12 |
|
|
Country: (If noted) |
Land Size: |
0.0574 Acres |
||
|
Land Value: 19,500 |
|
|||
|
Sect 11-T13N-R3W Qtr SW |
THE CROSSING SEC 1
Block
002
Lot
033
|
|||
| Full Legal Description: THE CROSSING SEC 1 002 033 |
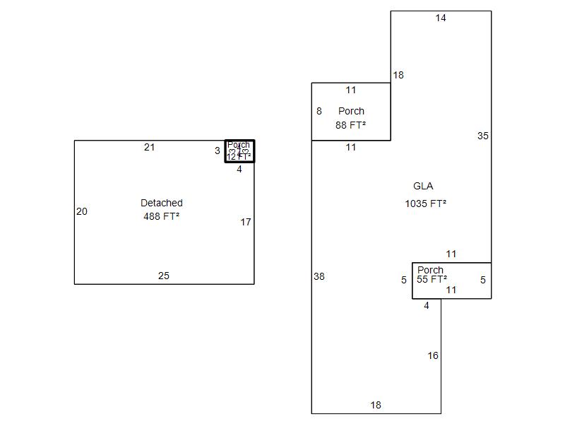
| Photo & Sketch (if available) | Comp Sales (ordered by relevancy) |
|
||||||||||||||||||
|
||||||||||||||||||||
| Value History (*The County Treasurer 405-713-1300 posts & collects actual tax amounts. Contact information HERE) | |||||||||||||
|---|---|---|---|---|---|---|---|---|---|---|---|---|---|
| Year | Market Value | Taxable Mkt Value | Gross Assessed | Exemption | Net Assessed | Millage | Est. Tax | Tax Savings | |||||
|
2025 |
155,000 |
130,665 |
14,372 |
0 |
14,372 |
120.32 |
$1,729 |
$322 |
|||||
|
2024 |
153,500 |
124,443 |
13,687 |
0 |
13,687 |
119.96 |
$1,642 |
$383 |
|||||
|
2023 |
148,500 |
118,518 |
13,036 |
0 |
13,036 |
119.02 |
$1,552 |
$393 |
|||||
|
2022 |
117,500 |
112,875 |
12,416 |
0 |
12,416 |
120.10 |
$1,491 |
$61 |
|||||
|
2021 |
107,500 |
107,500 |
11,825 |
0 |
11,825 |
118.88 |
$1,406 |
$0 |
|||||
| Property Account Status/Adjustments/Exemptions | ||
|---|---|---|
| Account # | Exemption Description | Amount |
|
R180612030 |
5% Capped Account |
0 |
| Property Deed Transaction History (Recorded in the County Clerk's Office) | ||||||||||
|---|---|---|---|---|---|---|---|---|---|---|
| Date | Type | Book | Page | Price | Grantor | Grantee | ||||
|
3/30/2020 |
|
Hmstd Off & |
$0 |
JEO ENTERPRISES LLC |
OSBORNE JOHN M & JOY E |
|||||
|
3/30/2020 |
|
Hmstd Off & |
$0 |
OSBORNE JOHN M & JOY E |
JEO ENTERPRISES LLC |
|||||
|
3/2/2020 |
|
Deeds |
$105,000 |
COPELAND JORDAN L |
JEO ENTERPRISES LLC |
|||||
|
5/26/2017 |
|
Deeds |
$97,000 |
BREWSTER EDWIN B |
COPELAND JORDAN L |
|||||
|
11/19/2012 |
|
Deeds |
$96,500 |
ROBERTS CLAYTON D |
BREWSTER EDWIN B |
|||||
| Last Mailed Notice of Value (N.O.V.) Information/History | ||||||||
|---|---|---|---|---|---|---|---|---|
| Year | Date | Market Value | Taxable Market Value | Gross Assessed | Exemption | Net Assessed | ||
|
2026 |
02/23/2026 |
150,500 |
137,198 |
15,091 |
0 |
15,091 |
||
|
2025 |
02/14/2025 |
155,000 |
130,665 |
14,372 |
0 |
14,372 |
||
|
2024 |
02/13/2024 |
153,500 |
124,443 |
13,687 |
0 |
13,687 |
||
|
2023 |
02/14/2023 |
148,500 |
118,518 |
13,036 |
0 |
13,036 |
||
|
2022 |
03/15/2022 |
117,500 |
112,875 |
12,416 |
0 |
12,416 |
||
| Property Building Permit History | |||||||||||
|---|---|---|---|---|---|---|---|---|---|---|---|
| Issued | Permit # | Provided by | Bldg # | Description | Est Construction Cost | Status | |||||
| No Building Permit records returned. | |||||||||||
| Click button on building number to access detailed information: | ||||||
|---|---|---|---|---|---|---|
| Bldg # | Vacant/Improved Land | Bldg Description | Year Built | SqFt | # Stories | |
|
1 |
Improved |
Townhouse One Story |
1982 |
1,035 |
1 Stories |
|