|
|
|
| Larry Stein Oklahoma County Assessor (405) 713-1200 - Public Access System |
|
|
|
|
|
|
| Real Property Display - Screen Produced 3/12/2026 11:35:52 AM | ||||
|---|---|---|---|---|
| Account: R267021020 | Type: Residential | Location: |
759 S HARRAH RD |
|
| Building Name/Occupant: |
|
HARRAH |
||
| Owner Name 1: | BROWN CHAD ALLEN & ANGELA MICHELLE |
Parcel PIN#: |
1005-26-702-1020 |
|
| Owner Name 2: | 1/4 section #: |
1005 |
||
| Owner Name 3: | Parent Acct: |
|
||
| Billing Address: | 759 S HARRAH RD | Tax District: |
|
|
| City, State, Zip | HARRAH, OK 73045 | School System: |
Harrah #7 |
|
|
Country: (If noted) |
Land Size: |
1.1413 Acres |
||
|
Land Value: 40,247 |
|
|||
|
Sect 2-T11N-R1E Qtr NE |
POTTAWATOMIE TOWNSHIP
Block
000
Lot
000
|
|||
| Full Legal Description: POTTAWATOMIE TOWNSHIP PT NE4 SEC 2 11N 1E BEG SE/C NE4 TH W238.22FT N208.70FT E238.22FT S208.70FT TO BEG EX E75FT |
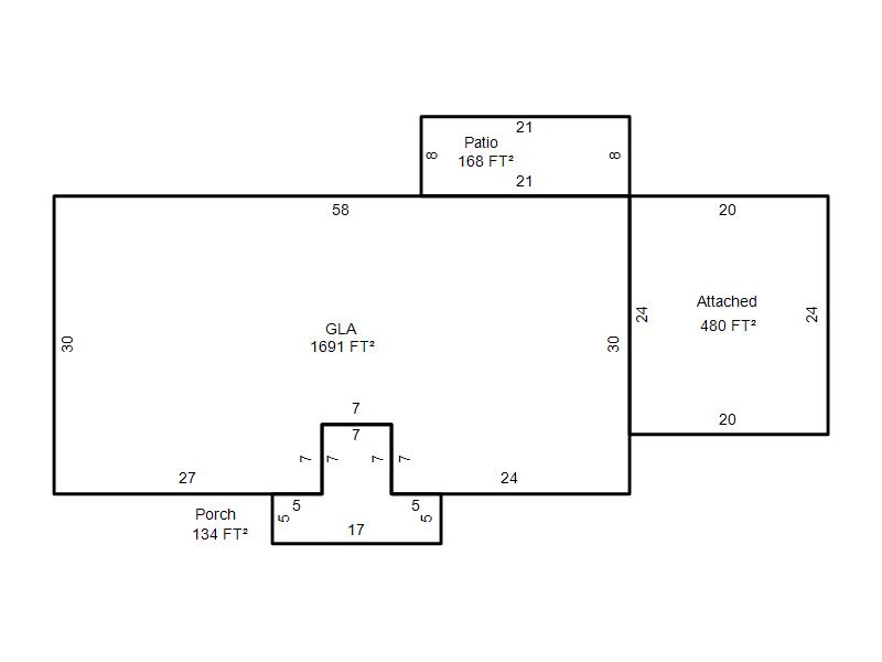
| Photo & Sketch (if available) | Comp Sales (ordered by relevancy) |
|
||||||||||||||||||
|
||||||||||||||||||||
| Value History (*The County Treasurer 405-713-1300 posts & collects actual tax amounts. Contact information HERE) | |||||||||||||
|---|---|---|---|---|---|---|---|---|---|---|---|---|---|
| Year | Market Value | Taxable Mkt Value | Gross Assessed | Exemption | Net Assessed | Millage | Est. Tax | Tax Savings | |||||
|
2025 |
255,500 |
255,500 |
28,105 |
1,000 |
27,105 |
107.54 |
$2,915 |
$108 |
|||||
|
2024 |
259,500 |
253,895 |
27,928 |
1,000 |
26,928 |
110.62 |
$2,979 |
$179 |
|||||
|
2023 |
246,500 |
246,500 |
27,115 |
1,000 |
26,115 |
97.88 |
$2,556 |
$98 |
|||||
|
2022 |
212,500 |
155,000 |
17,050 |
1,000 |
16,050 |
99.50 |
$1,597 |
$729 |
|||||
|
2021 |
176,000 |
155,000 |
17,050 |
1,000 |
16,050 |
99.52 |
$1,597 |
$329 |
|||||
| Property Account Status/Adjustments/Exemptions | ||
|---|---|---|
| Account # | Exemption Description | Amount |
|
R267021020 |
3% Cap Homestead |
0 |
|
R267021020 |
Homestead |
1,000 |
| Property Deed Transaction History (Recorded in the County Clerk's Office) | ||||||||||
|---|---|---|---|---|---|---|---|---|---|---|
| Date | Type | Book | Page | Price | Grantor | Grantee | ||||
|
6/6/2022 |
|
Deeds |
$241,500 |
ROBERSON KATHERINE A |
BROWN CHAD ALLEN & ANGELA MICHELLE |
|||||
|
5/16/2016 |
|
Deeds |
$0 |
ROBERSON RANDY |
ROBERSON KATHERINE A |
|||||
|
11/12/2015 |
|
Deeds |
$154,000 |
INTEGRITY CONSTRUCTION & DEVELOPMENT LLC |
ROBERSON KATHERINE A & RANDY |
|||||
|
12/29/2014 |
|
Deeds |
$70,000 |
KUSEK TIMOTHY C NICKLAS HOLLY |
INTEGRITY CONSTRUCTION & DEVELOPMENT LLC |
|||||
|
4/13/2013 |
|
Hmstd Off & |
$0 |
KUSEK FAMILY TRUST |
KUSEK TIMOTHY C NICKLAS HOLLY |
|||||
| Last Mailed Notice of Value (N.O.V.) Information/History | ||||||||
|---|---|---|---|---|---|---|---|---|
| Year | Date | Market Value | Taxable Market Value | Gross Assessed | Exemption | Net Assessed | ||
|
2025 |
01/31/2025 |
255,500 |
255,500 |
28,105 |
1,000 |
27,105 |
||
|
2024 |
01/22/2024 |
259,500 |
253,895 |
27,928 |
1,000 |
26,928 |
||
|
2023 |
01/23/2023 |
246,500 |
246,500 |
27,115 |
0 |
27,115 |
||
|
2022 |
02/22/2022 |
212,500 |
155,000 |
17,050 |
1,000 |
16,050 |
||
|
2021 |
02/24/2021 |
176,000 |
155,000 |
17,050 |
1,000 |
16,050 |
||
| Property Building Permit History | ||||||
|---|---|---|---|---|---|---|
| Issued | Permit # | Provided by | Bldg # | Description | Est Construction Cost | Status |
|
1/10/2023 |
2206131 |
|
1 |
Swimming Pool |
|
Inactive |
| Click button on building number to access detailed information: | ||||||
|---|---|---|---|---|---|---|
| Bldg # | Vacant/Improved Land | Bldg Description | Year Built | SqFt | # Stories | |
|
1 |
Improved |
Ranch 1 Story |
1960 |
1,691 |
1 Stories |
|