|
|
|
| Larry Stein Oklahoma County Assessor (405) 713-1200 - Public Access System |
|
|
|
|
|
|
| Real Property Display - Screen Produced 3/3/2026 12:51:20 PM | ||||
|---|---|---|---|---|
| Account: R130644285 | Type: Residential | Location: |
1217 NW 97TH ST |
|
| Building Name/Occupant: |
|
OKLAHOMA CITY |
||
| Owner Name 1: | RIOS CHARQUENO DIANA |
Parcel PIN#: |
3714-13-064-4285 |
|
| Owner Name 2: | 1/4 section #: |
3714 |
||
| Owner Name 3: | Parent Acct: |
|
||
| Billing Address: | 712 NW 138TH ST | Tax District: |
|
|
| City, State, Zip | EDMOND, OK 73013-1907 | School System: |
Oklahoma City #89 |
|
|
Country: (If noted) |
Land Size: |
0.1607 Acres |
||
|
Land Value: 18,200 |
|
|||
|
Sect 29-T13N-R3W Qtr SE |
ALTAVUE ADDITION
Block
011
Lot
000
|
|||
| Full Legal Description: ALTAVUE ADDITION BLK 011 LOTS 39 & 40 |
| Photo & Sketch (if available) | Comp Sales (ordered by relevancy) |
|
||||||||||||||||||
|
||||||||||||||||||||
| Value History (*The County Treasurer 405-713-1300 posts & collects actual tax amounts. Contact information HERE) | |||||||||||||
|---|---|---|---|---|---|---|---|---|---|---|---|---|---|
| Year | Market Value | Taxable Mkt Value | Gross Assessed | Exemption | Net Assessed | Millage | Est. Tax | Tax Savings | |||||
|
2025 |
167,500 |
167,500 |
18,425 |
0 |
18,425 |
122.90 |
$2,264 |
$0 |
|||||
|
2024 |
75,000 |
47,387 |
5,212 |
0 |
5,212 |
123.89 |
$646 |
$376 |
|||||
|
2023 |
90,500 |
57,127 |
6,283 |
0 |
6,283 |
122.82 |
$772 |
$451 |
|||||
|
2022 |
68,000 |
54,407 |
5,983 |
0 |
5,983 |
117.63 |
$704 |
$176 |
|||||
|
2021 |
60,500 |
51,817 |
5,699 |
0 |
5,699 |
117.70 |
$671 |
$112 |
|||||
| Property Account Status/Adjustments/Exemptions | ||||||
|---|---|---|---|---|---|---|
| Account # | Exemption Description | Amount | ||||
| No adjustment/exemption records returned. | ||||||
| Property Deed Transaction History (Recorded in the County Clerk's Office) | ||||||||||
|---|---|---|---|---|---|---|---|---|---|---|
| Date | Type | Book | Page | Price | Grantor | Grantee | ||||
|
3/3/2025 |
|
Deeds |
$150,000 |
GRANOT RONI |
RIOS CHARQUENO DIANA |
|||||
|
3/19/2024 |
|
Deeds |
$63,000 |
MARTINEZ PIRANA TRS |
GRANOT RONI |
|||||
|
6/23/2021 |
|
Hmstd Off & |
$0 |
FRIDAY FAMILY REV LIVING TRUST |
MARTINEZ PIRANA TRS |
|||||
|
9/28/2011 |
|
Deeds |
$0 |
FRIDAY CHINTANA |
FRIDAY FAMILY REV LIVING TRUST |
|||||
|
8/11/2010 |
|
Deeds |
$0 |
FRIDAY E W |
FRIDAY CHINTANA |
|||||
| Last Mailed Notice of Value (N.O.V.) Information/History | ||||||||
|---|---|---|---|---|---|---|---|---|
| Year | Date | Market Value | Taxable Market Value | Gross Assessed | Exemption | Net Assessed | ||
|
2025 |
02/14/2025 |
167,500 |
167,500 |
18,425 |
0 |
18,425 |
||
|
2025 |
03/28/2025 |
167,500 |
167,500 |
18,425 |
0 |
18,425 |
||
|
2024 |
02/13/2024 |
94,500 |
59,983 |
6,597 |
0 |
6,597 |
||
|
2023 |
02/14/2023 |
90,500 |
57,127 |
6,283 |
0 |
6,283 |
||
|
2022 |
03/15/2022 |
68,000 |
54,407 |
5,983 |
0 |
5,983 |
||
| Property Building Permit History | |||||||||||
|---|---|---|---|---|---|---|---|---|---|---|---|
| Issued | Permit # | Provided by | Bldg # | Description | Est Construction Cost | Status | |||||
| No Building Permit records returned. | |||||||||||
| Click button on building number to access detailed information: | ||||||
|---|---|---|---|---|---|---|
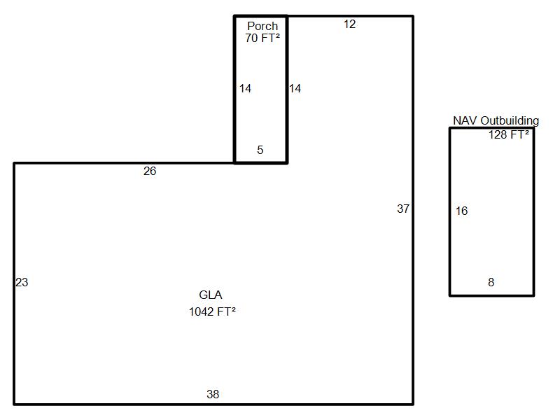
| Bldg # | Vacant/Improved Land | Bldg Description | Year Built | SqFt | # Stories | |
|
1 |
Improved |
Ranch 1 Story |
1946 |
1,042 |
1 Stories |
|