|
|
|
| Larry Stein Oklahoma County Assessor (405) 713-1200 - Public Access System |
|
|
|
|
|
|
| Real Property Display - Screen Produced 4/1/2026 7:41:02 PM | ||||
|---|---|---|---|---|
| Account: R179441130 | Type: Residential | Location: |
9928 N GEORGIA AVE |
|
| Building Name/Occupant: |
|
VILLAGE |
||
| Owner Name 1: | SEODARA PHOUNESAVATH & B |
Parcel PIN#: |
3715-17-944-1130 |
|
| Owner Name 2: | 1/4 section #: |
3715 |
||
| Owner Name 3: | Parent Acct: |
|
||
| Billing Address: | 9928 GEORGIA AVE | Tax District: |
|
|
| City, State, Zip | OKLAHOMA CITY, OK 73120-4029 | School System: |
Oklahoma City #89 |
|
|
Country: (If noted) |
Land Size: |
0.1615 Acres |
||
|
Land Value: 33,065 |
|
|||
|
Sect 29-T13N-R3W Qtr SW |
CASADY WAVERLY SEC 3 REPLAT
Block
012
Lot
002
|
|||
| Full Legal Description: CASADY WAVERLY SEC 3 REPLAT 012 002 |
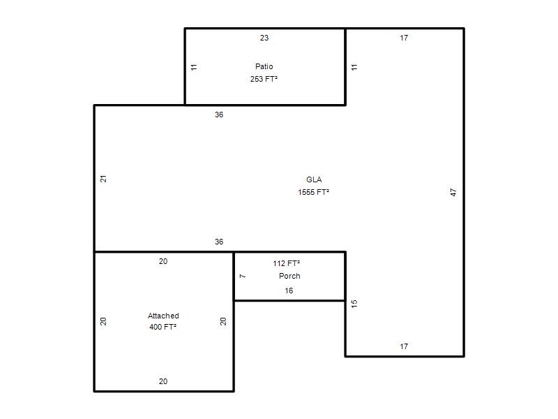
| Photo & Sketch (if available) | Comp Sales (ordered by relevancy) |
|
||||||||||||||||||
|
||||||||||||||||||||
| Value History (*The County Treasurer 405-713-1300 posts & collects actual tax amounts. Contact information HERE) | |||||||||||||
|---|---|---|---|---|---|---|---|---|---|---|---|---|---|
| Year | Market Value | Taxable Mkt Value | Gross Assessed | Exemption | Net Assessed | Millage | Est. Tax | Tax Savings | |||||
|
2026 |
209,000 |
178,029 |
19,582 |
0 |
19,582 |
122.45 |
$2,398 |
$417 |
|||||
|
2025 |
205,500 |
169,552 |
18,650 |
0 |
18,650 |
122.45 |
$2,284 |
$484 |
|||||
|
2024 |
196,500 |
161,479 |
17,761 |
0 |
17,761 |
124.97 |
$2,220 |
$481 |
|||||
|
2023 |
193,500 |
153,790 |
16,916 |
0 |
16,916 |
120.11 |
$2,032 |
$525 |
|||||
|
2022 |
158,000 |
146,467 |
16,110 |
0 |
16,110 |
115.25 |
$1,857 |
$146 |
|||||
| Property Account Status/Adjustments/Exemptions | ||
|---|---|---|
| Account # | Exemption Description | Amount |
|
R179441130 |
5% Capped Account |
0 |
| Property Deed Transaction History (Recorded in the County Clerk's Office) | |||||||
|---|---|---|---|---|---|---|---|
| Date | Type | Book | Page | Price | Grantor | Grantee | |
|
2/9/1998 |
|
Historical |
$69,000 |
MELTON MATTHEW WILLIAM |
SEODARA PHOUNESAVATH & B |
||
|
11/18/1988 |
|
Historical |
$48,526 |
SECRETARY OF HOUSING |
MELTON MATTHEW WILLIAM |
||
|
8/26/1988 |
|
Historical |
$0 |
GHERMAZIEN TESFAI & TIBLEZ A |
SECRETARY OF HOUSING |
||
|
4/1/1983 |
|
Historical |
$0 |
|
GHERMAZIEN TESFAI & TIBLEZ A |
||
| Last Mailed Notice of Value (N.O.V.) Information/History | ||||||||
|---|---|---|---|---|---|---|---|---|
| Year | Date | Market Value | Taxable Market Value | Gross Assessed | Exemption | Net Assessed | ||
|
2026 |
02/23/2026 |
209,000 |
178,029 |
19,582 |
0 |
19,582 |
||
|
2025 |
02/14/2025 |
205,500 |
169,552 |
18,650 |
0 |
18,650 |
||
|
2024 |
02/13/2024 |
196,500 |
161,479 |
17,761 |
0 |
17,761 |
||
|
2023 |
02/14/2023 |
193,500 |
153,790 |
16,916 |
0 |
16,916 |
||
|
2022 |
03/15/2022 |
158,000 |
146,467 |
16,110 |
0 |
16,110 |
||
| Property Building Permit History | |||||||||||
|---|---|---|---|---|---|---|---|---|---|---|---|
| Issued | Permit # | Provided by | Bldg # | Description | Est Construction Cost | Status | |||||
| No Building Permit records returned. | |||||||||||
| Click button on building number to access detailed information: | ||||||
|---|---|---|---|---|---|---|
| Bldg # | Vacant/Improved Land | Bldg Description | Year Built | SqFt | # Stories | |
|
1 |
Improved |
Ranch 1 Story |
1972 |
1,555 |
1 Stories |
|