|
|
|
| Larry Stein Oklahoma County Assessor (405) 713-1200 - Public Access System |
|
|
|
|
|
|
| Real Property Display - Screen Produced 3/20/2026 4:23:30 AM | ||||
|---|---|---|---|---|
| Account: R130724650 | Type: Residential | Location: |
1520 NW 89TH ST |
|
| Building Name/Occupant: |
|
OKLAHOMA CITY |
||
| Owner Name 1: | HARTH DAWN M & FREDERICK K |
Parcel PIN#: |
3725-13-072-4650 |
|
| Owner Name 2: | 1/4 section #: |
3725 |
||
| Owner Name 3: | Parent Acct: |
|
||
| Billing Address: | 1520 NW 89TH ST | Tax District: |
|
|
| City, State, Zip | OKLAHOMA CITY, OK 73114-1207 | School System: |
Oklahoma City #89 |
|
|
Country: (If noted) |
Land Size: |
0.2153 Acres |
||
|
Land Value: 35,644 |
|
|||
|
Sect 32-T13N-R3W Qtr NE |
BRITTON HEIGHTS ADD
Block
026
Lot
000
|
|||
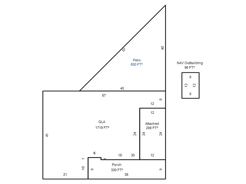
| Full Legal Description: BRITTON HEIGHTS ADD 026 000 W16FT 8IN LOT 10 & ALL LOTS 11 & 12 |
| Photo & Sketch (if available) | Comp Sales (ordered by relevancy) |
|
||||||||||||||||||
|
||||||||||||||||||||
| Value History (*The County Treasurer 405-713-1300 posts & collects actual tax amounts. Contact information HERE) | |||||||||||||
|---|---|---|---|---|---|---|---|---|---|---|---|---|---|
| Year | Market Value | Taxable Mkt Value | Gross Assessed | Exemption | Net Assessed | Millage | Est. Tax | Tax Savings | |||||
|
2025 |
294,500 |
230,762 |
25,383 |
0 |
25,383 |
122.90 |
$3,120 |
$862 |
|||||
|
2024 |
288,500 |
219,774 |
24,174 |
0 |
24,174 |
123.89 |
$2,995 |
$937 |
|||||
|
2023 |
269,000 |
209,309 |
23,023 |
0 |
23,023 |
122.82 |
$2,828 |
$806 |
|||||
|
2022 |
214,000 |
199,342 |
21,927 |
0 |
21,927 |
117.63 |
$2,579 |
$190 |
|||||
|
2021 |
204,500 |
189,850 |
20,883 |
0 |
20,883 |
117.70 |
$2,458 |
$190 |
|||||
| Property Account Status/Adjustments/Exemptions | ||
|---|---|---|
| Account # | Exemption Description | Amount |
|
R130724650 |
5% Capped Account |
0 |
| Property Deed Transaction History (Recorded in the County Clerk's Office) | ||||||||||
|---|---|---|---|---|---|---|---|---|---|---|
| Date | Type | Book | Page | Price | Grantor | Grantee | ||||
|
10/21/2010 |
|
Deeds |
$0 |
HARTH DAWN M |
HARTH DAWN M & FREDERICK K |
|||||
|
10/5/2007 |
|
Deeds |
$162,000 |
MARTIN WILLIAM R |
HARTH DAWN M |
|||||
|
5/14/2007 |
|
Deeds |
$108,000 |
SALLIS JIMMY FLOYD TRS SALLIS EARLENE FLOYD FAMILY TRS |
MARTIN WILLIAM R |
|||||
|
1/14/2003 |
|
Deeds |
$0 |
SALLIS EARLENE FLOYD |
SALLIS JIMMY FLOYD |
|||||
|
3/12/1987 |
|
Historical |
$0 |
SALLIS GLEN R & E |
SALLIS EARLENE |
|||||
| Last Mailed Notice of Value (N.O.V.) Information/History | ||||||||
|---|---|---|---|---|---|---|---|---|
| Year | Date | Market Value | Taxable Market Value | Gross Assessed | Exemption | Net Assessed | ||
|
2026 |
02/23/2026 |
295,000 |
242,300 |
26,652 |
0 |
26,652 |
||
|
2025 |
02/14/2025 |
294,500 |
230,762 |
25,383 |
0 |
25,383 |
||
|
2024 |
02/13/2024 |
288,500 |
219,774 |
24,174 |
0 |
24,174 |
||
|
2023 |
02/14/2023 |
269,000 |
209,309 |
23,023 |
0 |
23,023 |
||
|
2022 |
03/15/2022 |
214,000 |
199,342 |
21,927 |
0 |
21,927 |
||
| Property Building Permit History | |||||||||||
|---|---|---|---|---|---|---|---|---|---|---|---|
| Issued | Permit # | Provided by | Bldg # | Description | Est Construction Cost | Status | |||||
| No Building Permit records returned. | |||||||||||
| Click button on building number to access detailed information: | ||||||
|---|---|---|---|---|---|---|
| Bldg # | Vacant/Improved Land | Bldg Description | Year Built | SqFt | # Stories | |
|
1 |
Improved |
Ranch 1 Story |
1962 |
1,719 |
1 Stories |
|