|
|
|
| Larry Stein Oklahoma County Assessor (405) 713-1200 - Public Access System |
|
|
|
|
|
|
| Real Property Display - Screen Produced 4/2/2026 7:23:15 AM | ||||
|---|---|---|---|---|
| Account: R179165770 | Type: Residential | Location: |
1624 SHEFFIELD RD |
|
| Building Name/Occupant: |
|
VILLAGE |
||
| Owner Name 1: | ALVORD JERRY LOREN & SHELLY JANE LIV TRUST |
Parcel PIN#: |
3728-17-916-5770 |
|
| Owner Name 2: | 1/4 section #: |
3728 |
||
| Owner Name 3: | Parent Acct: |
|
||
| Billing Address: | 1275 WHISKEY LN | Tax District: |
|
|
| City, State, Zip | WILSON, OK 73463 | School System: |
Oklahoma City #89 |
|
|
Country: (If noted) |
Land Size: |
0.1413 Acres |
||
|
Land Value: 30,164 |
|
|||
|
Sect 32-T13N-R3W Qtr NW |
CASADY HEIGHTS 2ND
Block
015
Lot
013
|
|||
| Full Legal Description: CASADY HEIGHTS 2ND 015 013 |
| Photo & Sketch (if available) | Comp Sales (ordered by relevancy) |
|
||||||||||||||||||
|
||||||||||||||||||||
| Value History (*The County Treasurer 405-713-1300 posts & collects actual tax amounts. Contact information HERE) | |||||||||||||
|---|---|---|---|---|---|---|---|---|---|---|---|---|---|
| Year | Market Value | Taxable Mkt Value | Gross Assessed | Exemption | Net Assessed | Millage | Est. Tax | Tax Savings | |||||
|
2026 |
155,500 |
155,500 |
17,105 |
0 |
17,105 |
122.45 |
$2,095 |
$0 |
|||||
|
2025 |
156,000 |
156,000 |
17,160 |
0 |
17,160 |
122.45 |
$2,101 |
$0 |
|||||
|
2024 |
151,000 |
151,000 |
16,610 |
0 |
16,610 |
124.97 |
$2,076 |
$0 |
|||||
|
2023 |
180,000 |
180,000 |
19,800 |
0 |
19,800 |
120.11 |
$2,378 |
$0 |
|||||
|
2022 |
112,000 |
103,924 |
11,430 |
0 |
11,430 |
115.25 |
$1,317 |
$102 |
|||||
| Property Account Status/Adjustments/Exemptions | ||
|---|---|---|
| Account # | Exemption Description | Amount |
|
R179165770 |
5% Capped Account |
0 |
| Property Deed Transaction History (Recorded in the County Clerk's Office) | ||||||||||
|---|---|---|---|---|---|---|---|---|---|---|
| Date | Type | Book | Page | Price | Grantor | Grantee | ||||
|
7/15/2022 |
|
Deeds |
$179,000 |
KENNON REMODLING LLC |
ALVORD JERRY LOREN & SHELLY JANE LIV TRUST |
|||||
|
6/29/2005 |
|
Deeds |
$79,000 |
JARRCOR LLC |
KENNON REMODELING LLC |
|||||
|
5/18/2005 |
|
Deeds |
$82,000 |
SPARKS CHANCE E |
KENNON REMODELING LLC |
|||||
|
3/16/2005 |
|
Deeds |
$52,000 |
OAK LILLIAN L |
JARRCOR LLC |
|||||
|
3/16/2005 |
|
Hmstd Off & |
$0 |
OAK LILLIAN L |
JARRCOR LLC |
|||||
| Last Mailed Notice of Value (N.O.V.) Information/History | ||||||||
|---|---|---|---|---|---|---|---|---|
| Year | Date | Market Value | Taxable Market Value | Gross Assessed | Exemption | Net Assessed | ||
|
2025 |
02/14/2025 |
156,000 |
156,000 |
17,160 |
0 |
17,160 |
||
|
2023 |
02/14/2023 |
180,000 |
180,000 |
19,800 |
0 |
19,800 |
||
|
2022 |
03/15/2022 |
112,000 |
103,924 |
11,430 |
0 |
11,430 |
||
|
2021 |
03/19/2021 |
105,000 |
98,976 |
10,887 |
0 |
10,887 |
||
|
2020 |
03/10/2020 |
96,000 |
94,263 |
10,368 |
0 |
10,368 |
||
| Property Building Permit History | |||||||||||
|---|---|---|---|---|---|---|---|---|---|---|---|
| Issued | Permit # | Provided by | Bldg # | Description | Est Construction Cost | Status | |||||
| No Building Permit records returned. | |||||||||||
| Click button on building number to access detailed information: | ||||||
|---|---|---|---|---|---|---|
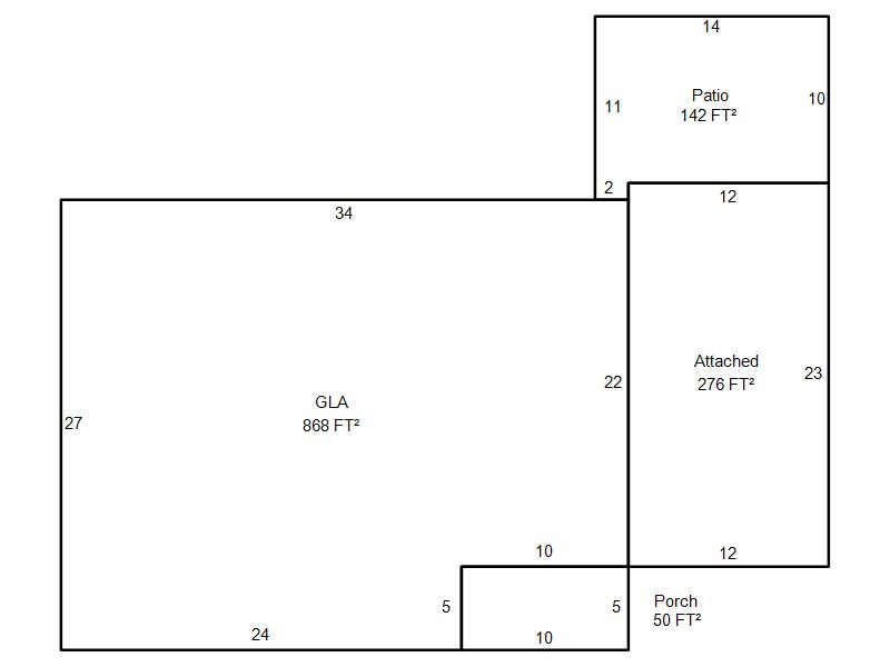
| Bldg # | Vacant/Improved Land | Bldg Description | Year Built | SqFt | # Stories | |
|
1 |
Improved |
Ranch 1 Story |
1950 |
868 |
1 Stories |
|