|
|
|
| Larry Stein Oklahoma County Assessor (405) 713-1200 - Public Access System |
|
|
|
|
|
|
| Real Property Display - Screen Produced 4/1/2026 3:53:00 AM | ||||
|---|---|---|---|---|
| Account: R130484400 | Type: Residential | Location: |
321 NW 81ST ST |
|
| Building Name/Occupant: |
|
OKLAHOMA CITY |
||
| Owner Name 1: | WOODY ARTHUR JIMMY JR |
Parcel PIN#: |
3730-13-048-4400 |
|
| Owner Name 2: | 1/4 section #: |
3730 |
||
| Owner Name 3: | Parent Acct: |
|
||
| Billing Address: | 321 NW 81ST ST | Tax District: |
|
|
| City, State, Zip | OKLAHOMA CITY, OK 73114-3205 | School System: |
Oklahoma City #89 |
|
|
Country: (If noted) |
Land Size: |
0.1768 Acres |
||
|
Land Value: 23,100 |
|
|||
|
Sect 33-T13N-R3W Qtr SE |
NORTH HIGHLAND ADD
Block
023
Lot
000
|
|||
| Full Legal Description: NORTH HIGHLAND ADD 023 000 E5FT LOT 34 & ALL LOTS 35 & 36 |
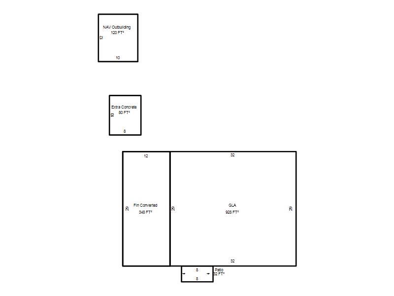
| Photo & Sketch (if available) | Comp Sales (ordered by relevancy) |
|
||||||||||||||||||
|
||||||||||||||||||||
| Value History (*The County Treasurer 405-713-1300 posts & collects actual tax amounts. Contact information HERE) | |||||||||||||
|---|---|---|---|---|---|---|---|---|---|---|---|---|---|
| Year | Market Value | Taxable Mkt Value | Gross Assessed | Exemption | Net Assessed | Millage | Est. Tax | Tax Savings | |||||
| No PropertyValuation records returned. | |||||||||||||
| Property Account Status/Adjustments/Exemptions | ||
|---|---|---|
| Account # | Exemption Description | Amount |
|
R130484400 |
3% Cap Homestead |
0 |
|
R130484400 |
Homestead |
1,000 |
| Property Deed Transaction History (Recorded in the County Clerk's Office) | |||||||
|---|---|---|---|---|---|---|---|
| Date | Type | Book | Page | Price | Grantor | Grantee | |
|
6/3/1994 |
|
Historical |
$20,000 |
SYNCO JOHN C & NANCY |
WOODY ARTHUR JIMMY JR |
||
|
2/3/1992 |
|
Historical |
$19,000 |
MCMILLIN NELL |
SYNCO JOHN C & NANCY |
||
|
8/22/1988 |
|
Historical |
$0 |
MCMILLIN NELLIE J |
MCMILLIN NELL |
||
|
4/1/1982 |
|
Historical |
$0 |
|
MCMILLIN NELLIE J |
||
| Last Mailed Notice of Value (N.O.V.) Information/History | ||||||||
|---|---|---|---|---|---|---|---|---|
| Year | Date | Market Value | Taxable Market Value | Gross Assessed | Exemption | Net Assessed | ||
| No Notice of Value N.O.V. records returned. | ||||||||
| Property Building Permit History | |||||||||||
|---|---|---|---|---|---|---|---|---|---|---|---|
| Issued | Permit # | Provided by | Bldg # | Description | Est Construction Cost | Status | |||||
| No Building Permit records returned. | |||||||||||
| Click button on building number to access detailed information: | ||||||
|---|---|---|---|---|---|---|
| Bldg # | Vacant/Improved Land | Bldg Description | Year Built | SqFt | # Stories | |
|
1 |
Improved |
Ranch 1 Story |
1960 |
928 |
1 Stories |
|