|
|
|
| Larry Stein Oklahoma County Assessor (405) 713-1200 - Public Access System |
|
|
|
|
|
|
| Real Property Display - Screen Produced 3/17/2026 6:08:25 AM | ||||
|---|---|---|---|---|
| Account: R150444850 | Type: Residential | Location: |
553 E ERCOUPE DR |
|
| Building Name/Occupant: |
|
MIDWEST CITY |
||
| Owner Name 1: | RCHD INVESTMENTS LLC |
Parcel PIN#: |
1438-15-044-4850 |
|
| Owner Name 2: | 1/4 section #: |
1438 |
||
| Owner Name 3: | Parent Acct: |
|
||
| Billing Address: | 12625 SE 69TH ST | Tax District: |
|
|
| City, State, Zip | OKLAHOMA CITY, OK 73150-7437 | School System: |
Mid-Del #52 |
|
|
Country: (If noted) |
Land Size: |
0.1414 Acres |
||
|
Land Value: 17,864 |
|
|||
|
Sect 10-T11N-R2W Qtr SE |
PARK REPLAT SUB ADD
Block
005
Lot
011
|
|||
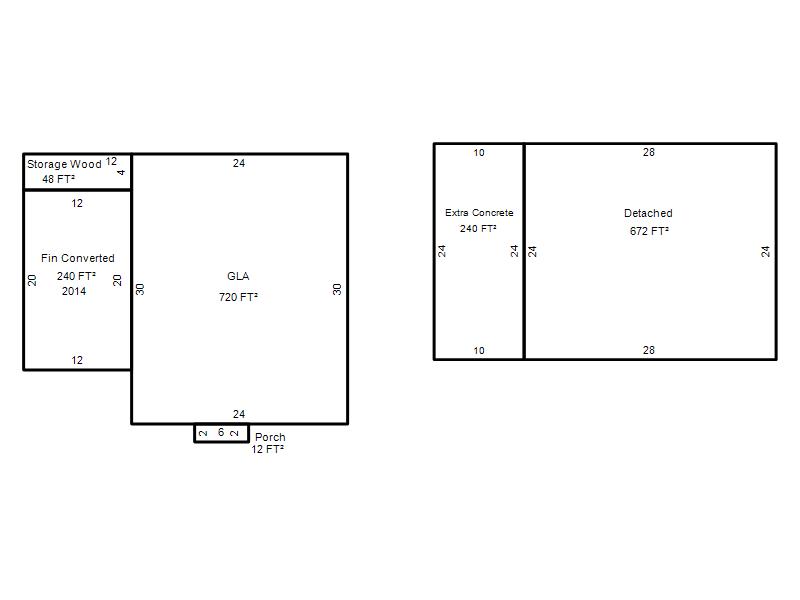
| Full Legal Description: PARK REPLAT SUB ADD 005 011 |
| Photo & Sketch (if available) | Comp Sales (ordered by relevancy) |
|
||||||||||||||||||
|
||||||||||||||||||||
| Value History (*The County Treasurer 405-713-1300 posts & collects actual tax amounts. Contact information HERE) | |||||||||||||
|---|---|---|---|---|---|---|---|---|---|---|---|---|---|
| Year | Market Value | Taxable Mkt Value | Gross Assessed | Exemption | Net Assessed | Millage | Est. Tax | Tax Savings | |||||
|
2025 |
120,500 |
85,064 |
9,356 |
0 |
9,356 |
119.58 |
$1,119 |
$466 |
|||||
|
2024 |
114,000 |
81,014 |
8,911 |
0 |
8,911 |
122.51 |
$1,092 |
$445 |
|||||
|
2023 |
99,500 |
77,157 |
8,487 |
0 |
8,487 |
117.71 |
$999 |
$289 |
|||||
|
2022 |
93,500 |
73,483 |
8,082 |
0 |
8,082 |
116.64 |
$943 |
$257 |
|||||
|
2021 |
79,000 |
69,984 |
7,697 |
0 |
7,697 |
119.45 |
$920 |
$118 |
|||||
| Property Account Status/Adjustments/Exemptions | ||
|---|---|---|
| Account # | Exemption Description | Amount |
|
R150444850 |
5% Capped Account |
0 |
| Property Deed Transaction History (Recorded in the County Clerk's Office) | |||||||
|---|---|---|---|---|---|---|---|
| Date | Type | Book | Page | Price | Grantor | Grantee | |
|
3/29/2017 |
|
Hmstd Off & |
$0 |
ACEBO RICHARD & CINDY |
RCHD INVESTMENTS LLC |
||
|
6/20/2014 |
|
Deeds |
$25,000 |
SCOTT CHRISTOPHER R |
ACEBO RICHARD |
||
|
9/4/2001 |
|
Deeds |
$42,500 |
LARSON MARK N |
SCOTT CHRISTOPHER R |
||
|
8/7/1995 |
|
Historical |
$37,000 |
HOOK GARY & BARBARA |
LARSON MARK N |
||
|
6/1/1986 |
|
Historical |
$0 |
|
HOOK GARY & BARBARA |
||
| Last Mailed Notice of Value (N.O.V.) Information/History | ||||||||
|---|---|---|---|---|---|---|---|---|
| Year | Date | Market Value | Taxable Market Value | Gross Assessed | Exemption | Net Assessed | ||
|
2026 |
02/06/2026 |
118,000 |
89,317 |
9,824 |
0 |
9,824 |
||
|
2025 |
01/31/2025 |
120,500 |
85,064 |
9,356 |
0 |
9,356 |
||
|
2024 |
01/22/2024 |
114,000 |
81,014 |
8,911 |
0 |
8,911 |
||
|
2023 |
01/23/2023 |
99,500 |
77,157 |
8,487 |
0 |
8,487 |
||
|
2022 |
02/22/2022 |
93,500 |
73,483 |
8,081 |
0 |
8,081 |
||
| Property Building Permit History | |||||||||||
|---|---|---|---|---|---|---|---|---|---|---|---|
| Issued | Permit # | Provided by | Bldg # | Description | Est Construction Cost | Status | |||||
| No Building Permit records returned. | |||||||||||
| Click button on building number to access detailed information: | ||||||
|---|---|---|---|---|---|---|
| Bldg # | Vacant/Improved Land | Bldg Description | Year Built | SqFt | # Stories | |
|
1 |
Improved |
Ranch 1 Story |
1949 |
720 |
1 Stories |
|