|
|
|
| Larry Stein Oklahoma County Assessor (405) 713-1200 - Public Access System |
|
|
|
|
|
|
| Real Property Display - Screen Produced 3/22/2026 7:20:23 AM | ||||
|---|---|---|---|---|
| Account: R120261050 | Type: Residential | Location: |
6221 SUDBURY DR |
|
| Building Name/Occupant: |
|
OKLAHOMA CITY |
||
| Owner Name 1: | HOLMAN RICHARD L & ANN C REV TRUST |
Parcel PIN#: |
3881-12-026-1050 |
|
| Owner Name 2: | 1/4 section #: |
3881 |
||
| Owner Name 3: | Parent Acct: |
|
||
| Billing Address: | 6221 SUDBURY DR | Tax District: |
|
|
| City, State, Zip | OKLAHOMA CITY, OK 73162-1724 | School System: |
Putnam City #1 |
|
|
Country: (If noted) |
Land Size: |
0.2491 Acres |
||
|
Land Value: 51,666 |
|
|||
|
Sect 21-T13N-R4W Qtr NE |
WARWICK ESTATES SEC III
Block
016
Lot
006
|
|||
| Full Legal Description: WARWICK ESTATES SEC III 016 006 |
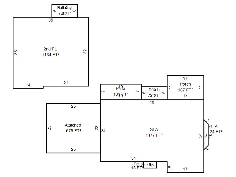
| Photo & Sketch (if available) | Comp Sales (ordered by relevancy) |
|
||||||||||||||||||
|
||||||||||||||||||||
| Value History (*The County Treasurer 405-713-1300 posts & collects actual tax amounts. Contact information HERE) | |||||||||||||
|---|---|---|---|---|---|---|---|---|---|---|---|---|---|
| Year | Market Value | Taxable Mkt Value | Gross Assessed | Exemption | Net Assessed | Millage | Est. Tax | Tax Savings | |||||
|
2025 |
305,500 |
197,326 |
21,705 |
1,000 |
20,705 |
123.17 |
$2,550 |
$1,589 |
|||||
|
2024 |
306,500 |
197,326 |
21,705 |
1,000 |
20,705 |
122.30 |
$2,532 |
$1,591 |
|||||
|
2023 |
299,000 |
197,326 |
21,705 |
1,000 |
20,705 |
121.91 |
$2,524 |
$1,485 |
|||||
|
2022 |
242,000 |
197,326 |
21,705 |
1,000 |
20,705 |
123.41 |
$2,555 |
$730 |
|||||
|
2021 |
224,000 |
197,326 |
21,705 |
1,000 |
20,705 |
122.23 |
$2,531 |
$481 |
|||||
| Property Account Status/Adjustments/Exemptions | ||
|---|---|---|
| Account # | Exemption Description | Amount |
|
R120261050 |
Freeze Senior Valuation |
0 |
|
R120261050 |
3% Cap Homestead |
0 |
|
R120261050 |
Homestead |
1,000 |
| Property Deed Transaction History (Recorded in the County Clerk's Office) | |||||||
|---|---|---|---|---|---|---|---|
| Date | Type | Book | Page | Price | Grantor | Grantee | |
|
3/5/2007 |
|
Deeds |
$0 |
HOLMAN RICHARD L & ANN C |
HOLMAN RICHARD L & ANN C REV TRUST |
||
|
9/1/1980 |
|
Historical |
$0 |
|
HOLMAN RICHARD L & ANN C |
||
| Last Mailed Notice of Value (N.O.V.) Information/History | ||||||||
|---|---|---|---|---|---|---|---|---|
| Year | Date | Market Value | Taxable Market Value | Gross Assessed | Exemption | Net Assessed | ||
|
2026 |
02/23/2026 |
310,500 |
197,326 |
21,705 |
1,000 |
20,705 |
||
|
2024 |
02/13/2024 |
306,500 |
197,326 |
21,705 |
1,000 |
20,705 |
||
|
2023 |
02/14/2023 |
299,000 |
197,326 |
21,705 |
1,000 |
20,705 |
||
|
2022 |
03/15/2022 |
242,000 |
197,326 |
21,705 |
1,000 |
20,705 |
||
|
2021 |
03/19/2021 |
224,000 |
197,326 |
21,705 |
1,000 |
20,705 |
||
| Property Building Permit History | |||||||||||
|---|---|---|---|---|---|---|---|---|---|---|---|
| Issued | Permit # | Provided by | Bldg # | Description | Est Construction Cost | Status | |||||
| No Building Permit records returned. | |||||||||||
| Click button on building number to access detailed information: | ||||||
|---|---|---|---|---|---|---|
| Bldg # | Vacant/Improved Land | Bldg Description | Year Built | SqFt | # Stories | |
|
1 |
Improved |
2 Story |
1981 |
2,635 |
2 Stories |
|