|
|
|
| Larry Stein Oklahoma County Assessor (405) 713-1200 - Public Access System |
|
|
|
|
|
|
| Real Property Display - Screen Produced 3/22/2026 7:20:22 AM | ||||
|---|---|---|---|---|
| Account: R120261170 | Type: Residential | Location: |
6221 RAMBRIDGE DR |
|
| Building Name/Occupant: |
|
OKLAHOMA CITY |
||
| Owner Name 1: | WEINSTOCK MORTON L |
Parcel PIN#: |
3881-12-026-1170 |
|
| Owner Name 2: | 1/4 section #: |
3881 |
||
| Owner Name 3: | Parent Acct: |
|
||
| Billing Address: | 6221 RAMBRIDGE DR | Tax District: |
|
|
| City, State, Zip | OKLAHOMA CITY, OK 73162-1727 | School System: |
Putnam City #1 |
|
|
Country: (If noted) |
Land Size: |
0.2088 Acres |
||
|
Land Value: 51,666 |
|
|||
|
Sect 21-T13N-R4W Qtr NE |
WARWICK ESTATES SEC III
Block
016
Lot
018
|
|||
| Full Legal Description: WARWICK ESTATES SEC III 016 018 |
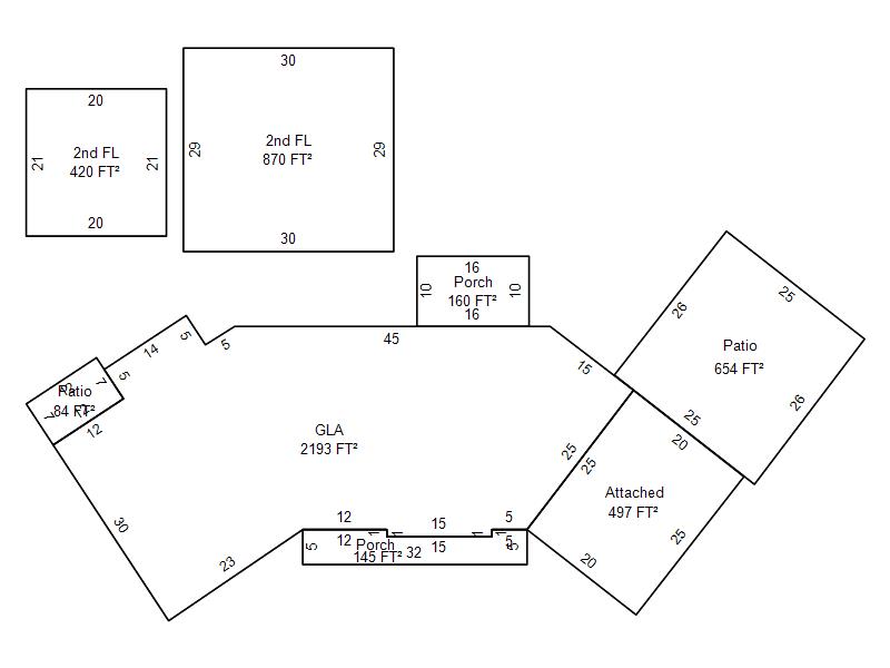
| Photo & Sketch (if available) | Comp Sales (ordered by relevancy) |
|
||||||||||||||||||
|
||||||||||||||||||||
| Value History (*The County Treasurer 405-713-1300 posts & collects actual tax amounts. Contact information HERE) | |||||||||||||
|---|---|---|---|---|---|---|---|---|---|---|---|---|---|
| Year | Market Value | Taxable Mkt Value | Gross Assessed | Exemption | Net Assessed | Millage | Est. Tax | Tax Savings | |||||
|
2025 |
394,500 |
223,891 |
24,628 |
1,000 |
23,628 |
123.17 |
$2,910 |
$2,435 |
|||||
|
2024 |
376,500 |
223,891 |
24,628 |
1,000 |
23,628 |
122.30 |
$2,890 |
$2,175 |
|||||
|
2023 |
377,500 |
223,891 |
24,628 |
1,000 |
23,628 |
121.91 |
$2,880 |
$2,182 |
|||||
|
2022 |
315,500 |
223,891 |
24,628 |
1,000 |
23,628 |
123.41 |
$2,916 |
$1,367 |
|||||
|
2021 |
289,500 |
223,891 |
24,628 |
1,000 |
23,628 |
122.23 |
$2,888 |
$1,004 |
|||||
| Property Account Status/Adjustments/Exemptions | ||
|---|---|---|
| Account # | Exemption Description | Amount |
|
R120261170 |
Freeze Senior Valuation |
0 |
|
R120261170 |
3% Cap Homestead |
0 |
|
R120261170 |
Homestead |
1,000 |
| Property Deed Transaction History (Recorded in the County Clerk's Office) | |||||||
|---|---|---|---|---|---|---|---|
| Date | Type | Book | Page | Price | Grantor | Grantee | |
|
12/1/1986 |
|
Historical |
$0 |
MERCURY FINANCIAL CORP |
WEINSTOCK MORTON L |
||
|
9/1/1984 |
|
Historical |
$0 |
|
MERCURY FINANCIAL CORP |
||
| Last Mailed Notice of Value (N.O.V.) Information/History | ||||||||
|---|---|---|---|---|---|---|---|---|
| Year | Date | Market Value | Taxable Market Value | Gross Assessed | Exemption | Net Assessed | ||
|
2026 |
02/23/2026 |
407,500 |
223,891 |
24,628 |
1,000 |
23,628 |
||
|
2025 |
02/14/2025 |
394,500 |
223,891 |
24,628 |
1,000 |
23,628 |
||
|
2023 |
02/14/2023 |
377,500 |
223,891 |
24,628 |
1,000 |
23,628 |
||
|
2022 |
03/15/2022 |
315,500 |
223,891 |
24,628 |
1,000 |
23,628 |
||
|
2021 |
03/19/2021 |
289,500 |
223,891 |
24,628 |
1,000 |
23,628 |
||
| Property Building Permit History | |||||||||||
|---|---|---|---|---|---|---|---|---|---|---|---|
| Issued | Permit # | Provided by | Bldg # | Description | Est Construction Cost | Status | |||||
| No Building Permit records returned. | |||||||||||
| Click button on building number to access detailed information: | ||||||
|---|---|---|---|---|---|---|
| Bldg # | Vacant/Improved Land | Bldg Description | Year Built | SqFt | # Stories | |
|
1 |
Improved |
1½ Story Fin |
1983 |
3,483 |
1.5 Stories |
|