|
|
|
| Larry Stein Oklahoma County Assessor (405) 713-1200 - Public Access System |
|
|
|
|
|
|
| Real Property Display - Screen Produced 3/22/2026 7:23:12 AM | ||||
|---|---|---|---|---|
| Account: R120261690 | Type: Residential | Location: |
12024 DOVER DR |
|
| Building Name/Occupant: |
|
OKLAHOMA CITY |
||
| Owner Name 1: | HANSEN REV TRUST |
Parcel PIN#: |
3881-12-026-1690 |
|
| Owner Name 2: | 1/4 section #: |
3881 |
||
| Owner Name 3: | Parent Acct: |
|
||
| Billing Address: | 12024 DOVER DR | Tax District: |
|
|
| City, State, Zip | OKLAHOMA CITY, OK 73162-1703 | School System: |
Putnam City #1 |
|
|
Country: (If noted) |
Land Size: |
0.2512 Acres |
||
|
Land Value: 51,666 |
|
|||
|
Sect 21-T13N-R4W Qtr NE |
WARWICK ESTATES SEC III
Block
020
Lot
006
|
|||
| Full Legal Description: WARWICK ESTATES SEC III 020 006 |
| Photo & Sketch (if available) | Comp Sales (ordered by relevancy) |
|
||||||||||||||||||
|
||||||||||||||||||||
| Value History (*The County Treasurer 405-713-1300 posts & collects actual tax amounts. Contact information HERE) | |||||||||||||
|---|---|---|---|---|---|---|---|---|---|---|---|---|---|
| Year | Market Value | Taxable Mkt Value | Gross Assessed | Exemption | Net Assessed | Millage | Est. Tax | Tax Savings | |||||
|
2025 |
341,000 |
329,922 |
36,291 |
0 |
36,291 |
123.17 |
$4,470 |
$150 |
|||||
|
2024 |
336,500 |
314,212 |
34,562 |
0 |
34,562 |
122.30 |
$4,227 |
$300 |
|||||
|
2023 |
325,000 |
299,250 |
32,917 |
0 |
32,917 |
121.91 |
$4,013 |
$345 |
|||||
|
2022 |
285,000 |
285,000 |
31,350 |
0 |
31,350 |
123.41 |
$3,869 |
$0 |
|||||
|
2021 |
240,500 |
234,150 |
25,756 |
0 |
25,756 |
122.23 |
$3,148 |
$85 |
|||||
| Property Account Status/Adjustments/Exemptions | ||
|---|---|---|
| Account # | Exemption Description | Amount |
|
R120261690 |
5% Capped Account |
0 |
| Property Deed Transaction History (Recorded in the County Clerk's Office) | ||||||||||
|---|---|---|---|---|---|---|---|---|---|---|
| Date | Type | Book | Page | Price | Grantor | Grantee | ||||
|
11/20/2024 |
|
Hmstd Off & |
$0 |
HANSEN MEGAN ELLEN REED |
HANSEN REV TRUST |
|||||
|
7/6/2021 |
|
Deeds |
$288,000 |
LAMLE CHASE LOGAN & CARSON GLASS |
HANSEN MEGAN ELLEN REED |
|||||
|
2/23/2021 |
|
Hmstd Off & |
$ |
LAMIE CHASE LOGAN |
LAMLE CHASE LOGAN & CARSON GLASS |
|||||
|
4/14/2016 |
|
Deeds |
$235,000 |
WARR JORDON & KATHRYN |
LAMIE CHASE LOGAN |
|||||
|
1/30/2014 |
|
Deeds |
$149,000 |
FEDERAL NATIONAL MORTGAGE ASSOCIATION |
WARR JORDON & KATHRYN |
|||||
| Last Mailed Notice of Value (N.O.V.) Information/History | ||||||||
|---|---|---|---|---|---|---|---|---|
| Year | Date | Market Value | Taxable Market Value | Gross Assessed | Exemption | Net Assessed | ||
|
2026 |
02/23/2026 |
345,500 |
345,500 |
38,005 |
0 |
38,005 |
||
|
2025 |
02/14/2025 |
341,000 |
329,922 |
36,291 |
0 |
36,291 |
||
|
2024 |
02/13/2024 |
336,500 |
314,212 |
34,562 |
0 |
34,562 |
||
|
2023 |
02/14/2023 |
325,000 |
299,250 |
32,917 |
0 |
32,917 |
||
|
2022 |
03/15/2022 |
285,000 |
285,000 |
31,350 |
0 |
31,350 |
||
| Property Building Permit History | |||||||||||
|---|---|---|---|---|---|---|---|---|---|---|---|
| Issued | Permit # | Provided by | Bldg # | Description | Est Construction Cost | Status | |||||
| No Building Permit records returned. | |||||||||||
| Click button on building number to access detailed information: | ||||||
|---|---|---|---|---|---|---|
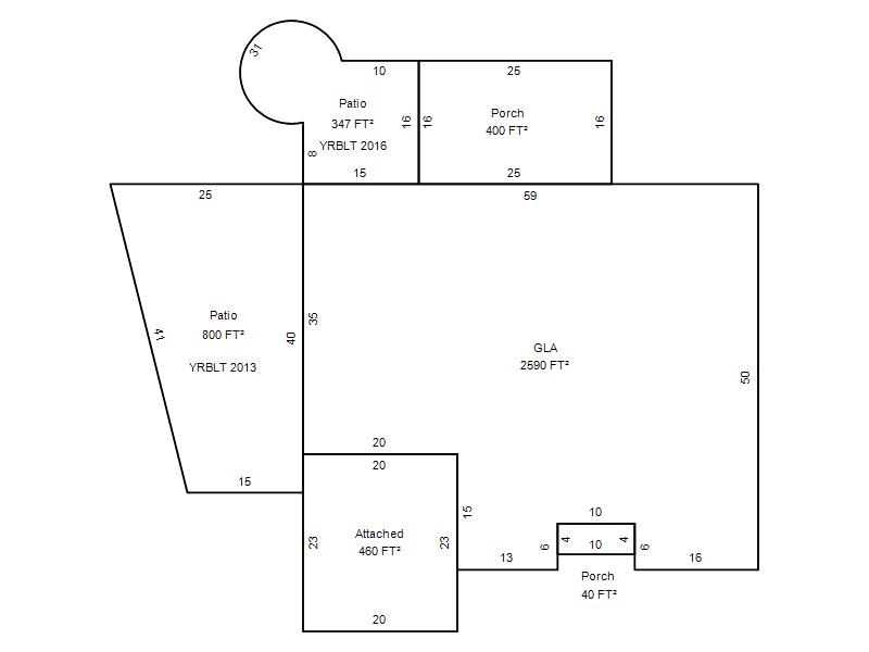
| Bldg # | Vacant/Improved Land | Bldg Description | Year Built | SqFt | # Stories | |
|
1 |
Improved |
Ranch 1 Story |
1983 |
2,590 |
1 Stories |
|