|
|
|
| Larry Stein Oklahoma County Assessor (405) 713-1200 - Public Access System |
|
|
|
|
|
|
| Real Property Display - Screen Produced 3/22/2026 7:23:12 AM | ||||
|---|---|---|---|---|
| Account: R120261700 | Type: Residential | Location: |
12016 DOVER DR |
|
| Building Name/Occupant: |
|
OKLAHOMA CITY |
||
| Owner Name 1: | PITTS BERRY H III |
Parcel PIN#: |
3881-12-026-1700 |
|
| Owner Name 2: | 1/4 section #: |
3881 |
||
| Owner Name 3: | Parent Acct: |
|
||
| Billing Address: | 12016 DOVER DR | Tax District: |
|
|
| City, State, Zip | OKLAHOMA CITY, OK 73162 | School System: |
Putnam City #1 |
|
|
Country: (If noted) |
UNITED STATES |
Land Size: |
0.2020 Acres |
|
|
Land Value: 47,960 |
|
|||
|
Sect 21-T13N-R4W Qtr NE |
WARWICK ESTATES SEC III
Block
020
Lot
007
|
|||
| Full Legal Description: WARWICK ESTATES SEC III 020 007 |
| Photo & Sketch (if available) | Comp Sales (ordered by relevancy) |
|
||||||||||||||||||
|
||||||||||||||||||||
| Value History (*The County Treasurer 405-713-1300 posts & collects actual tax amounts. Contact information HERE) | |||||||||||||
|---|---|---|---|---|---|---|---|---|---|---|---|---|---|
| Year | Market Value | Taxable Mkt Value | Gross Assessed | Exemption | Net Assessed | Millage | Est. Tax | Tax Savings | |||||
|
2025 |
403,000 |
305,575 |
33,613 |
33,613 |
0 |
123.17 |
$0 |
$5,460 |
|||||
|
2024 |
383,000 |
305,575 |
33,613 |
33,613 |
0 |
122.30 |
$0 |
$5,152 |
|||||
|
2023 |
379,500 |
296,675 |
32,633 |
32,633 |
0 |
121.91 |
$0 |
$5,089 |
|||||
|
2022 |
314,000 |
288,034 |
31,682 |
31,682 |
0 |
123.41 |
$0 |
$4,262 |
|||||
|
2021 |
288,000 |
279,645 |
30,760 |
1,000 |
29,760 |
122.23 |
$3,638 |
$235 |
|||||
| Property Account Status/Adjustments/Exemptions | ||
|---|---|---|
| Account # | Exemption Description | Amount |
|
R120261700 |
DAV Freeze Senior Valuation |
0 |
|
R120261700 |
100% DAV Exemption |
100 |
|
R120261700 |
3% Cap Homestead |
0 |
|
R120261700 |
DAV Homestead |
0 |
| Property Deed Transaction History (Recorded in the County Clerk's Office) | |||||||
|---|---|---|---|---|---|---|---|
| Date | Type | Book | Page | Price | Grantor | Grantee | |
|
1/20/2009 |
|
Deeds |
$270,000 |
MILBY MARY SIMPSON TRS MILBY MARY FAMILY TRUST |
PITTS BERRY H III |
||
|
10/13/1993 |
|
Historical |
$0 |
MILBY ERNEST D & MARY S |
MILBY MARY SIMPSON TRS |
||
|
4/1/1983 |
|
Historical |
$0 |
|
MILBY ERNEST D & MARY S |
||
| Last Mailed Notice of Value (N.O.V.) Information/History | ||||||||
|---|---|---|---|---|---|---|---|---|
| Year | Date | Market Value | Taxable Market Value | Gross Assessed | Exemption | Net Assessed | ||
|
2026 |
02/23/2026 |
409,500 |
305,575 |
33,613 |
33,613 |
0 |
||
|
2025 |
02/14/2025 |
403,000 |
305,575 |
33,613 |
33,613 |
0 |
||
|
2024 |
02/13/2024 |
383,000 |
305,575 |
33,613 |
33,613 |
0 |
||
|
2023 |
02/14/2023 |
379,500 |
296,675 |
32,633 |
32,633 |
0 |
||
|
2022 |
03/15/2022 |
314,000 |
288,034 |
31,682 |
1,000 |
30,682 |
||
| Property Building Permit History | |||||||||||
|---|---|---|---|---|---|---|---|---|---|---|---|
| Issued | Permit # | Provided by | Bldg # | Description | Est Construction Cost | Status | |||||
| No Building Permit records returned. | |||||||||||
| Click button on building number to access detailed information: | ||||||
|---|---|---|---|---|---|---|
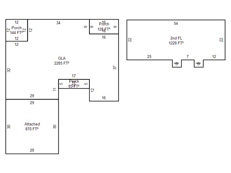
| Bldg # | Vacant/Improved Land | Bldg Description | Year Built | SqFt | # Stories | |
|
1 |
Improved |
1½ Story Fin |
1982 |
3,513 |
1.5 Stories |
|