|
|
|
| Larry Stein Oklahoma County Assessor (405) 713-1200 - Public Access System |
|
|
|
|
|
|
| Real Property Display - Screen Produced 3/22/2026 7:24:44 AM | ||||
|---|---|---|---|---|
| Account: R120261780 | Type: Residential | Location: |
6120 SUDBURY DR |
|
| Building Name/Occupant: |
|
OKLAHOMA CITY |
||
| Owner Name 1: | BARNETT WILLIAM |
Parcel PIN#: |
3881-12-026-1780 |
|
| Owner Name 2: | BARNETT CHRISTIE | 1/4 section #: |
3881 |
|
| Owner Name 3: | Parent Acct: |
|
||
| Billing Address: | 6120 SUDBURY DR | Tax District: |
|
|
| City, State, Zip | OKLAHOMA CITY, OK 73162-1723 | School System: |
Putnam City #1 |
|
|
Country: (If noted) |
Land Size: |
0.2006 Acres |
||
|
Land Value: 47,611 |
|
|||
|
Sect 21-T13N-R4W Qtr NE |
WARWICK ESTATES SEC III
Block
021
Lot
001
|
|||
| Full Legal Description: WARWICK ESTATES SEC III 021 001 |
| Photo & Sketch (if available) | Comp Sales (ordered by relevancy) |
|
||||||||||||||||||
|
||||||||||||||||||||
| Value History (*The County Treasurer 405-713-1300 posts & collects actual tax amounts. Contact information HERE) | |||||||||||||
|---|---|---|---|---|---|---|---|---|---|---|---|---|---|
| Year | Market Value | Taxable Mkt Value | Gross Assessed | Exemption | Net Assessed | Millage | Est. Tax | Tax Savings | |||||
|
2025 |
310,000 |
309,225 |
34,014 |
0 |
34,014 |
123.17 |
$4,190 |
$11 |
|||||
|
2024 |
294,500 |
294,500 |
32,395 |
0 |
32,395 |
122.30 |
$3,962 |
$0 |
|||||
|
2023 |
294,000 |
294,000 |
32,340 |
0 |
32,340 |
121.91 |
$3,943 |
$0 |
|||||
|
2022 |
244,500 |
226,563 |
24,921 |
0 |
24,921 |
123.41 |
$3,076 |
$243 |
|||||
|
2021 |
225,000 |
215,775 |
23,735 |
0 |
23,735 |
122.23 |
$2,901 |
$124 |
|||||
| Property Account Status/Adjustments/Exemptions | ||
|---|---|---|
| Account # | Exemption Description | Amount |
|
R120261780 |
5% Capped Account |
0 |
| Property Deed Transaction History (Recorded in the County Clerk's Office) | ||||||||||
|---|---|---|---|---|---|---|---|---|---|---|
| Date | Type | Book | Page | Price | Grantor | Grantee | ||||
|
3/31/2023 |
|
Deeds |
$310,000 |
LITTLETON REAL REAL ESTATE GROUP LLC |
BARNETT WILLIAM |
|||||
|
9/30/2022 |
|
Deeds |
$193,000 |
BEAM ERNEST G JR |
LITTLETON REAL REAL ESTATE GROUP LLC |
|||||
|
11/9/2016 |
|
Hmstd Off & |
$0 |
BEAM ERNEST G |
BEAM ERNEST G JR |
|||||
|
6/19/2013 |
|
Deeds |
$0 |
BEAM ERNEST G & LADONNA |
BEAM ERNEST G |
|||||
|
5/2/2008 |
|
Deeds |
$0 |
BEAM ERNEST G & LADONNA |
BEAM ERNEST G & LADONNA |
|||||
| Last Mailed Notice of Value (N.O.V.) Information/History | ||||||||
|---|---|---|---|---|---|---|---|---|
| Year | Date | Market Value | Taxable Market Value | Gross Assessed | Exemption | Net Assessed | ||
|
2026 |
02/23/2026 |
314,500 |
314,500 |
34,595 |
0 |
34,595 |
||
|
2025 |
02/14/2025 |
310,000 |
309,225 |
34,014 |
0 |
34,014 |
||
|
2024 |
02/13/2024 |
294,500 |
294,500 |
32,395 |
0 |
32,395 |
||
|
2023 |
02/14/2023 |
294,000 |
294,000 |
32,340 |
0 |
32,340 |
||
|
2022 |
03/15/2022 |
244,500 |
226,563 |
24,921 |
0 |
24,921 |
||
| Property Building Permit History | |||||||||||
|---|---|---|---|---|---|---|---|---|---|---|---|
| Issued | Permit # | Provided by | Bldg # | Description | Est Construction Cost | Status | |||||
| No Building Permit records returned. | |||||||||||
| Click button on building number to access detailed information: | ||||||
|---|---|---|---|---|---|---|
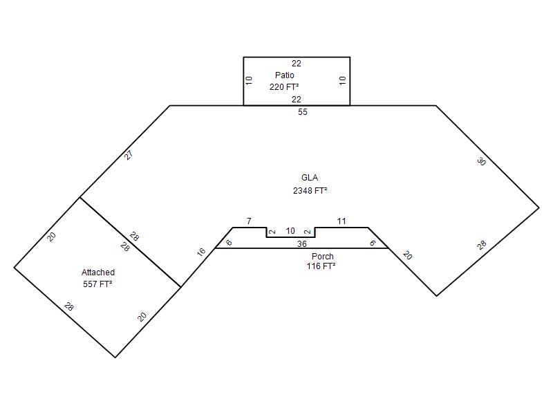
| Bldg # | Vacant/Improved Land | Bldg Description | Year Built | SqFt | # Stories | |
|
1 |
Improved |
Ranch 1 Story |
1981 |
2,348 |
1 Stories |
|