|
|
|
| Larry Stein Oklahoma County Assessor (405) 713-1200 - Public Access System |
|
|
|
|
|
|
| Real Property Display - Screen Produced 3/22/2026 11:51:35 AM | ||||
|---|---|---|---|---|
| Account: R127071070 | Type: Residential | Location: |
12013 ROSEMEADE CT |
|
| Building Name/Occupant: |
|
OKLAHOMA CITY |
||
| Owner Name 1: | DOH LUCIUS CO TRS |
Parcel PIN#: |
3881-12-707-1070 |
|
| Owner Name 2: | KIM JOANNE CO TRS | 1/4 section #: |
3881 |
|
| Owner Name 3: | LD & JK TRUST | Parent Acct: |
|
|
| Billing Address: | 12013 ROSEMEADE CT | Tax District: |
|
|
| City, State, Zip | OKLAHOMA CITY, OK 73162-1775 | School System: |
Putnam City #1 |
|
|
Country: (If noted) |
Land Size: |
0.2377 Acres |
||
|
Land Value: 50,730 |
|
|||
|
Sect 21-T13N-R4W Qtr NE |
ROSEMEADE ON SPRING CREEK
Block
001
Lot
008
|
|||
| Full Legal Description: ROSEMEADE ON SPRING CREEK 001 008 |
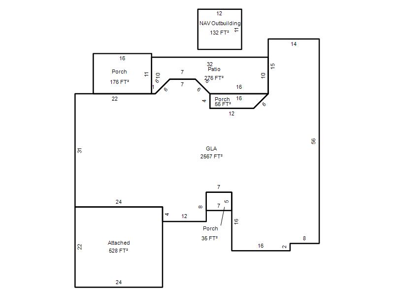
| Photo & Sketch (if available) | Comp Sales (ordered by relevancy) |
|
||||||||||||||||||
|
||||||||||||||||||||
| Value History (*The County Treasurer 405-713-1300 posts & collects actual tax amounts. Contact information HERE) | |||||||||||||
|---|---|---|---|---|---|---|---|---|---|---|---|---|---|
| Year | Market Value | Taxable Mkt Value | Gross Assessed | Exemption | Net Assessed | Millage | Est. Tax | Tax Savings | |||||
|
2025 |
366,500 |
336,868 |
37,054 |
0 |
37,054 |
123.17 |
$4,564 |
$401 |
|||||
|
2024 |
347,000 |
320,827 |
35,290 |
0 |
35,290 |
122.30 |
$4,316 |
$352 |
|||||
|
2023 |
346,000 |
305,550 |
33,610 |
0 |
33,610 |
121.91 |
$4,097 |
$542 |
|||||
|
2022 |
291,000 |
291,000 |
32,010 |
0 |
32,010 |
123.41 |
$3,950 |
$0 |
|||||
|
2021 |
268,000 |
254,925 |
28,041 |
1,000 |
27,041 |
122.23 |
$3,305 |
$298 |
|||||
| Property Account Status/Adjustments/Exemptions | ||
|---|---|---|
| Account # | Exemption Description | Amount |
|
R127071070 |
5% Capped Account |
0 |
| Property Deed Transaction History (Recorded in the County Clerk's Office) | |||||||
|---|---|---|---|---|---|---|---|
| Date | Type | Book | Page | Price | Grantor | Grantee | |
|
4/26/2023 |
|
Deeds |
$0 |
DOH LUCIUS |
DOH LUCIUS CO TRS |
||
|
4/5/2021 |
|
Deeds |
$280,000 |
WALDRIP MARK & GINGER LIVING TRUST |
DOH LUCIUS |
||
|
8/7/2013 |
|
Deeds |
$0 |
WALDRIP MARK A & GINGER A |
WALDRIP MARK & GINGER LIVING TRUST |
||
|
3/11/1994 |
|
Historical |
$0 |
ROSEMEADE LTD |
WALDRIP MARK A & GINGER A |
||
|
12/12/1991 |
|
Historical |
$0 |
|
ROSEMEADE LTD |
||
| Last Mailed Notice of Value (N.O.V.) Information/History | ||||||||
|---|---|---|---|---|---|---|---|---|
| Year | Date | Market Value | Taxable Market Value | Gross Assessed | Exemption | Net Assessed | ||
|
2026 |
02/23/2026 |
372,500 |
353,711 |
38,907 |
0 |
38,907 |
||
|
2025 |
02/14/2025 |
366,500 |
336,868 |
37,054 |
0 |
37,054 |
||
|
2024 |
02/13/2024 |
347,000 |
320,827 |
35,290 |
0 |
35,290 |
||
|
2023 |
02/14/2023 |
346,000 |
305,550 |
33,610 |
0 |
33,610 |
||
|
2022 |
03/15/2022 |
291,000 |
291,000 |
32,010 |
0 |
32,010 |
||
| Property Building Permit History | ||||||
|---|---|---|---|---|---|---|
| Issued | Permit # | Provided by | Bldg # | Description | Est Construction Cost | Status |
|
3/7/1994 |
10217012 |
OKLAHOMA CITY |
1 |
Main Dwellin |
128,000 |
Inactive |
| Click button on building number to access detailed information: | ||||||
|---|---|---|---|---|---|---|
| Bldg # | Vacant/Improved Land | Bldg Description | Year Built | SqFt | # Stories | |
|
1 |
Improved |
Ranch 1 Story |
1995 |
2,567 |
1 Stories |
|