|
|
|
| Larry Stein Oklahoma County Assessor (405) 713-1200 - Public Access System |
|
|
|
|
|
|
| Real Property Display - Screen Produced 3/26/2026 5:58:42 AM | ||||
|---|---|---|---|---|
| Account: R148941490 | Type: Residential | Location: |
6209 OLDE HARWICK CIR |
|
| Building Name/Occupant: |
|
OKLAHOMA CITY |
||
| Owner Name 1: | BLACK STEVE & JANEY |
Parcel PIN#: |
3881-14-894-1490 |
|
| Owner Name 2: | 1/4 section #: |
3881 |
||
| Owner Name 3: | Parent Acct: |
|
||
| Billing Address: | 6209 OLDE HARWICK CIR | Tax District: |
|
|
| City, State, Zip | OKLAHOMA CITY, OK 73162-3207 | School System: |
Putnam City #1 |
|
|
Country: (If noted) |
Land Size: |
0.2020 Acres |
||
|
Land Value: 58,080 |
|
|||
|
Sect 21-T13N-R4W Qtr NE |
WARWICK ESTATES
Block
003
Lot
011
|
|||
| Full Legal Description: WARWICK ESTATES 003 011 |
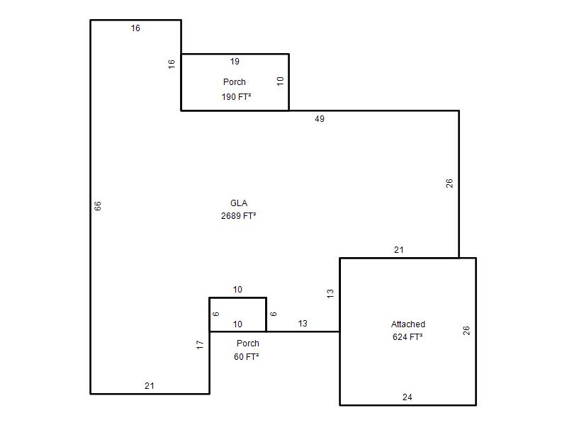
| Photo & Sketch (if available) | Comp Sales (ordered by relevancy) |
|
||||||||||||||||||
|
||||||||||||||||||||
| Value History (*The County Treasurer 405-713-1300 posts & collects actual tax amounts. Contact information HERE) | |||||||||||||
|---|---|---|---|---|---|---|---|---|---|---|---|---|---|
| Year | Market Value | Taxable Mkt Value | Gross Assessed | Exemption | Net Assessed | Millage | Est. Tax | Tax Savings | |||||
|
2026 |
316,500 |
251,942 |
27,713 |
1,000 |
26,713 |
123.17 |
$3,290 |
$998 |
|||||
|
2025 |
311,000 |
244,604 |
26,905 |
1,000 |
25,905 |
123.17 |
$3,191 |
$1,023 |
|||||
|
2024 |
297,000 |
237,480 |
26,122 |
1,000 |
25,122 |
122.30 |
$3,073 |
$923 |
|||||
|
2023 |
298,500 |
230,564 |
25,361 |
1,000 |
24,361 |
121.91 |
$2,970 |
$1,033 |
|||||
|
2022 |
246,000 |
223,849 |
24,623 |
1,000 |
23,623 |
123.41 |
$2,915 |
$424 |
|||||
| Property Account Status/Adjustments/Exemptions | ||
|---|---|---|
| Account # | Exemption Description | Amount |
|
R148941490 |
3% Cap Homestead |
0 |
|
R148941490 |
Homestead |
1,000 |
| Property Deed Transaction History (Recorded in the County Clerk's Office) | |||||||
|---|---|---|---|---|---|---|---|
| Date | Type | Book | Page | Price | Grantor | Grantee | |
|
4/3/1989 |
|
Historical |
$118,000 |
YLINIEMI CAREY E |
BLACK STEVE & JANEY |
||
|
8/18/1987 |
|
Historical |
$123,500 |
GANT IMOGENE R |
YLINIEMI CAREY E |
||
|
3/1/1980 |
|
Historical |
$0 |
|
GANT IMOGENE R |
||
| Last Mailed Notice of Value (N.O.V.) Information/History | ||||||||
|---|---|---|---|---|---|---|---|---|
| Year | Date | Market Value | Taxable Market Value | Gross Assessed | Exemption | Net Assessed | ||
|
2026 |
02/23/2026 |
316,500 |
251,942 |
27,713 |
1,000 |
26,713 |
||
|
2025 |
02/14/2025 |
311,000 |
244,604 |
26,905 |
1,000 |
25,905 |
||
|
2024 |
02/13/2024 |
297,000 |
237,480 |
26,122 |
1,000 |
25,122 |
||
|
2023 |
02/14/2023 |
298,500 |
230,564 |
25,361 |
1,000 |
24,361 |
||
|
2022 |
03/15/2022 |
246,000 |
223,849 |
24,623 |
1,000 |
23,623 |
||
| Property Building Permit History | |||||||||||
|---|---|---|---|---|---|---|---|---|---|---|---|
| Issued | Permit # | Provided by | Bldg # | Description | Est Construction Cost | Status | |||||
| No Building Permit records returned. | |||||||||||
| Click button on building number to access detailed information: | ||||||
|---|---|---|---|---|---|---|
| Bldg # | Vacant/Improved Land | Bldg Description | Year Built | SqFt | # Stories | |
|
1 |
Improved |
Ranch 1 Story |
1975 |
2,689 |
1 Stories |
|