|
|
|
| Larry Stein Oklahoma County Assessor (405) 713-1200 - Public Access System |
|
|
|
|
|
|
| Real Property Display - Screen Produced 3/26/2026 5:55:47 AM | ||||
|---|---|---|---|---|
| Account: R148941830 | Type: Residential | Location: |
11800 DOVER CIR |
|
| Building Name/Occupant: |
|
OKLAHOMA CITY |
||
| Owner Name 1: | DENNIS PENNY L BILDERBACK TRS |
Parcel PIN#: |
3881-14-894-1830 |
|
| Owner Name 2: | DENNIS FAMILY TRUST | 1/4 section #: |
3881 |
|
| Owner Name 3: | Parent Acct: |
|
||
| Billing Address: | 11800 DOVER CIR | Tax District: |
|
|
| City, State, Zip | OKLAHOMA CITY, OK 73162 | School System: |
Putnam City #1 |
|
|
Country: (If noted) |
Land Size: |
0.2580 Acres |
||
|
Land Value: 64,152 |
|
|||
|
Sect 21-T13N-R4W Qtr NE |
WARWICK ESTATES
Block
007
Lot
005
|
|||
| Full Legal Description: WARWICK ESTATES 007 005 |
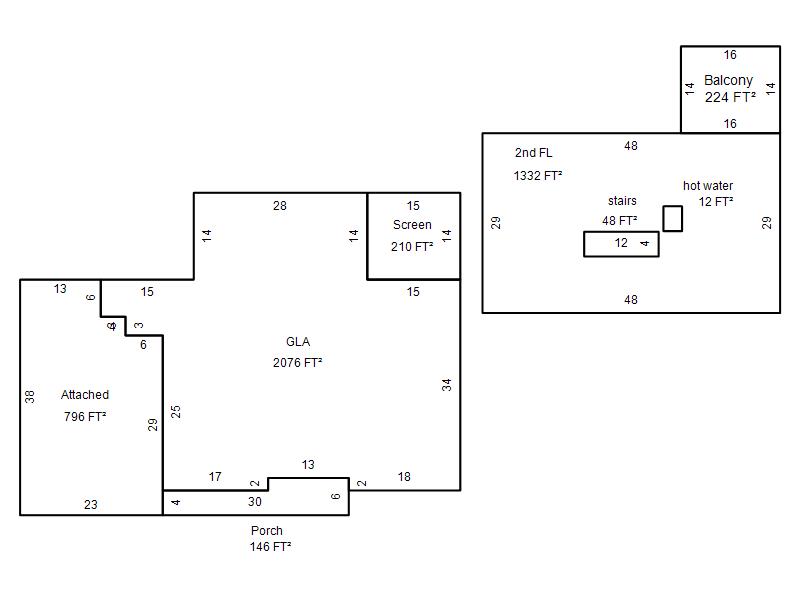
| Photo & Sketch (if available) | Comp Sales (ordered by relevancy) |
|
||||||||||||||||||
|
||||||||||||||||||||
| Value History (*The County Treasurer 405-713-1300 posts & collects actual tax amounts. Contact information HERE) | |||||||||||||
|---|---|---|---|---|---|---|---|---|---|---|---|---|---|
| Year | Market Value | Taxable Mkt Value | Gross Assessed | Exemption | Net Assessed | Millage | Est. Tax | Tax Savings | |||||
|
2026 |
406,500 |
361,823 |
39,800 |
0 |
39,800 |
123.17 |
$4,902 |
$605 |
|||||
|
2025 |
398,500 |
344,594 |
37,905 |
0 |
37,905 |
123.17 |
$4,669 |
$730 |
|||||
|
2024 |
383,500 |
328,185 |
36,100 |
0 |
36,100 |
122.30 |
$4,415 |
$744 |
|||||
|
2023 |
383,000 |
312,558 |
34,381 |
0 |
34,381 |
121.91 |
$4,191 |
$945 |
|||||
|
2022 |
314,500 |
297,675 |
32,744 |
0 |
32,744 |
123.41 |
$4,041 |
$228 |
|||||
| Property Account Status/Adjustments/Exemptions | ||
|---|---|---|
| Account # | Exemption Description | Amount |
|
R148941830 |
5% Capped Account |
0 |
| Property Deed Transaction History (Recorded in the County Clerk's Office) | ||||||||||
|---|---|---|---|---|---|---|---|---|---|---|
| Date | Type | Book | Page | Price | Grantor | Grantee | ||||
|
2/28/2023 |
|
Hmstd Off & |
$0 |
DENNIS TODD D & PENNY L B |
DENNIS PENNY L BILDERBACK TRS |
|||||
|
6/1/2001 |
|
Deeds |
$169,000 |
BLANEY DIANE MOATS |
DENNIS TODD D & PENNY L B |
|||||
|
12/20/1994 |
|
Historical |
$0 |
BLANEY JOHN K & DIANE MOATS |
BLANEY DIANE MOATS |
|||||
|
7/5/1991 |
|
Historical |
$168,000 |
EDWARDS ROBERT H & MELINDA |
BLANEY JOHN K & DIANE MOATS |
|||||
|
8/1/1986 |
|
Historical |
$0 |
THE BANK OF EDMOND NA |
EDWARDS ROBERT H & MELINDA |
|||||
| Last Mailed Notice of Value (N.O.V.) Information/History | ||||||||
|---|---|---|---|---|---|---|---|---|
| Year | Date | Market Value | Taxable Market Value | Gross Assessed | Exemption | Net Assessed | ||
|
2026 |
02/23/2026 |
406,500 |
361,823 |
39,800 |
0 |
39,800 |
||
|
2025 |
02/14/2025 |
398,500 |
344,594 |
37,905 |
0 |
37,905 |
||
|
2024 |
02/13/2024 |
383,500 |
328,185 |
36,100 |
0 |
36,100 |
||
|
2023 |
02/14/2023 |
383,000 |
312,558 |
34,381 |
0 |
34,381 |
||
|
2022 |
03/15/2022 |
314,500 |
297,675 |
32,744 |
0 |
32,744 |
||
| Property Building Permit History | |||||||||||
|---|---|---|---|---|---|---|---|---|---|---|---|
| Issued | Permit # | Provided by | Bldg # | Description | Est Construction Cost | Status | |||||
| No Building Permit records returned. | |||||||||||
| Click button on building number to access detailed information: | ||||||
|---|---|---|---|---|---|---|
| Bldg # | Vacant/Improved Land | Bldg Description | Year Built | SqFt | # Stories | |
|
1 |
Improved |
2 Story |
1978 |
3,408 |
2 Stories |
|