|
|
|
| Larry Stein Oklahoma County Assessor (405) 713-1200 - Public Access System |
|
|
|
|
|
|
| Real Property Display - Screen Produced 4/4/2026 9:12:57 AM | ||||
|---|---|---|---|---|
| Account: R127691130 | Type: Residential | Location: |
10916 BLUE STEM WEST RD |
|
| Building Name/Occupant: |
|
OKLAHOMA CITY |
||
| Owner Name 1: | PHAN DIEM |
Parcel PIN#: |
3882-12-769-1130 |
|
| Owner Name 2: | 1/4 section #: |
3882 |
||
| Owner Name 3: | Parent Acct: |
|
||
| Billing Address: | 10916 BLUE STEM WEST RD | Tax District: |
|
|
| City, State, Zip | OKLAHOMA CITY, OK 73162-4938 | School System: |
Putnam City #1 |
|
|
Country: (If noted) |
Land Size: |
0.4727 Acres |
||
|
Land Value: 105,826 |
|
|||
|
Sect 21-T13N-R4W Qtr SE |
BLUE STEM COVE
Block
002
Lot
005
|
|||
| Full Legal Description: BLUE STEM COVE 002 005 |
| Photo & Sketch (if available) | Comp Sales (ordered by relevancy) |
|
||||||||||||||||||
|
||||||||||||||||||||
| Value History (*The County Treasurer 405-713-1300 posts & collects actual tax amounts. Contact information HERE) | |||||||||||||
|---|---|---|---|---|---|---|---|---|---|---|---|---|---|
| Year | Market Value | Taxable Mkt Value | Gross Assessed | Exemption | Net Assessed | Millage | Est. Tax | Tax Savings | |||||
|
2026 |
567,000 |
564,955 |
62,145 |
1,000 |
61,145 |
123.17 |
$7,531 |
$151 |
|||||
|
2025 |
548,500 |
548,500 |
60,335 |
1,000 |
59,335 |
123.17 |
$7,308 |
$123 |
|||||
|
2024 |
520,500 |
402,853 |
44,313 |
0 |
44,313 |
122.30 |
$5,420 |
$1,583 |
|||||
|
2023 |
488,500 |
383,670 |
42,203 |
0 |
42,203 |
121.91 |
$5,145 |
$1,406 |
|||||
|
2022 |
436,000 |
365,400 |
40,194 |
0 |
40,194 |
123.41 |
$4,960 |
$958 |
|||||
| Property Account Status/Adjustments/Exemptions | ||
|---|---|---|
| Account # | Exemption Description | Amount |
|
R127691130 |
3% Cap Homestead |
0 |
|
R127691130 |
Homestead |
1,000 |
| Property Deed Transaction History (Recorded in the County Clerk's Office) | ||||||||||
|---|---|---|---|---|---|---|---|---|---|---|
| Date | Type | Book | Page | Price | Grantor | Grantee | ||||
|
12/4/2024 |
|
Hmstd Off & |
$0 |
SCOTT DIEM T |
PHAN DIEM |
|||||
|
5/9/2024 |
|
Deeds |
$440,000 |
SMYTHE CELIA |
SCOTT DIEM T |
|||||
|
3/18/2024 |
|
Deeds |
$0 |
WILSON SHERRY GAYLE |
SMYTHE CELIA |
|||||
|
2/8/2022 |
|
Deeds |
$0 |
WILSON SHERRY GAYLE |
WILSON SHERRY GAYLE |
|||||
|
2/8/2022 |
|
Deeds |
$0 |
WILSON SHERRY GAYLE |
WILSON SHERRY GAYLE |
|||||
| Last Mailed Notice of Value (N.O.V.) Information/History | ||||||||
|---|---|---|---|---|---|---|---|---|
| Year | Date | Market Value | Taxable Market Value | Gross Assessed | Exemption | Net Assessed | ||
|
2026 |
02/23/2026 |
567,000 |
564,955 |
62,145 |
1,000 |
61,145 |
||
|
2025 |
02/14/2025 |
548,500 |
548,500 |
60,335 |
1,000 |
59,335 |
||
|
2024 |
02/13/2024 |
520,500 |
402,853 |
44,313 |
0 |
44,313 |
||
|
2024 |
04/05/2024 |
520,500 |
402,853 |
44,313 |
0 |
44,313 |
||
|
2023 |
02/14/2023 |
488,500 |
383,670 |
42,203 |
0 |
42,203 |
||
| Property Building Permit History | ||||||
|---|---|---|---|---|---|---|
| Issued | Permit # | Provided by | Bldg # | Description | Est Construction Cost | Status |
|
10/27/2000 |
10219026 |
OKLAHOMA CITY |
1 |
Main Dwellin |
309,000 |
Inactive |
| Click button on building number to access detailed information: | ||||||
|---|---|---|---|---|---|---|
| Bldg # | Vacant/Improved Land | Bldg Description | Year Built | SqFt | # Stories | |
|
1 |
Improved |
Ranch 1 Story |
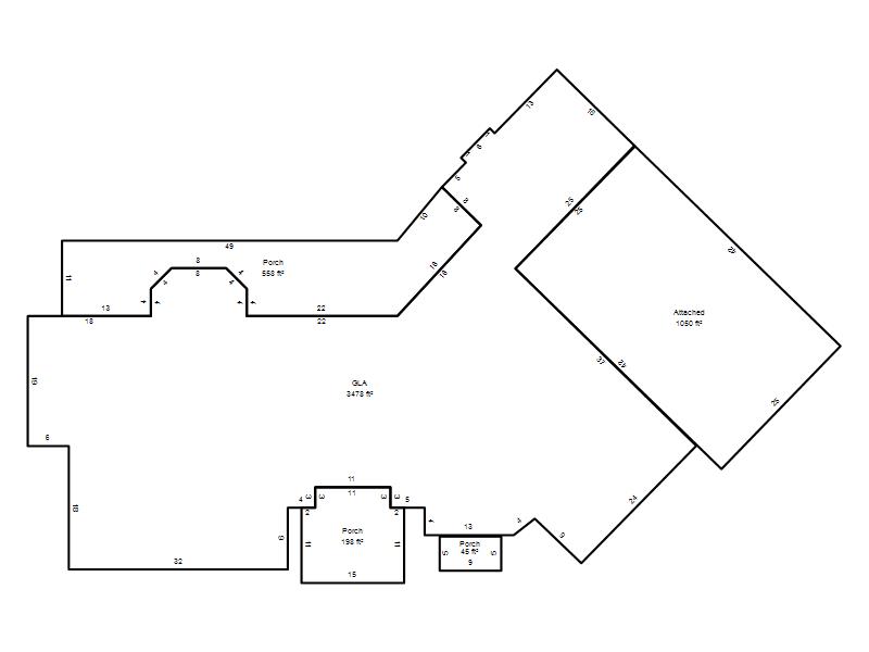
2001 |
3,478 |
1 Stories |
|