|
|
|
| Larry Stein Oklahoma County Assessor (405) 713-1200 - Public Access System |
|
|
|
|
|
|
| Real Property Display - Screen Produced 3/22/2026 1:34:53 PM | ||||
|---|---|---|---|---|
| Account: R129521100 | Type: Residential | Location: |
6721 NW 119TH ST |
|
| Building Name/Occupant: |
|
OKLAHOMA CITY |
||
| Owner Name 1: | HERNDON JAMES MILTON & DEBORAH ANN TRS |
Parcel PIN#: |
3884-12-952-1100 |
|
| Owner Name 2: | HERNDON JM & DA LIV TRUST | 1/4 section #: |
3884 |
|
| Owner Name 3: | Parent Acct: |
|
||
| Billing Address: | 6721 NW 119TH ST | Tax District: |
|
|
| City, State, Zip | OKLAHOMA CITY, OK 73162-1776 | School System: |
Putnam City #1 |
|
|
Country: (If noted) |
Land Size: |
0.3868 Acres |
||
|
Land Value: 63,373 |
|
|||
|
Sect 21-T13N-R4W Qtr NW |
WARWICK WEST SEC 3
Block
007
Lot
006
|
|||
| Full Legal Description: WARWICK WEST SEC 3 007 006 |
| Photo & Sketch (if available) | Comp Sales (ordered by relevancy) |
|
||||||||||||||||||
|
||||||||||||||||||||
| Value History (*The County Treasurer 405-713-1300 posts & collects actual tax amounts. Contact information HERE) | |||||||||||||
|---|---|---|---|---|---|---|---|---|---|---|---|---|---|
| Year | Market Value | Taxable Mkt Value | Gross Assessed | Exemption | Net Assessed | Millage | Est. Tax | Tax Savings | |||||
|
2025 |
418,000 |
317,059 |
34,875 |
1,000 |
33,875 |
123.17 |
$4,173 |
$1,491 |
|||||
|
2024 |
392,500 |
307,825 |
33,860 |
1,000 |
32,860 |
122.30 |
$4,019 |
$1,261 |
|||||
|
2023 |
399,500 |
298,860 |
32,874 |
1,000 |
31,874 |
121.91 |
$3,886 |
$1,472 |
|||||
|
2022 |
328,000 |
290,156 |
31,916 |
1,000 |
30,916 |
123.41 |
$3,815 |
$637 |
|||||
|
2021 |
308,000 |
281,705 |
30,987 |
1,000 |
29,987 |
122.23 |
$3,665 |
$476 |
|||||
| Property Account Status/Adjustments/Exemptions | ||
|---|---|---|
| Account # | Exemption Description | Amount |
|
R129521100 |
3% Cap Homestead |
0 |
|
R129521100 |
Homestead |
1,000 |
| Property Deed Transaction History (Recorded in the County Clerk's Office) | ||||||||||
|---|---|---|---|---|---|---|---|---|---|---|
| Date | Type | Book | Page | Price | Grantor | Grantee | ||||
|
9/26/2024 |
|
Deeds |
$0 |
HERNDON JAMES M & DEBORAH A |
HERNDON JAMES MILTON & DEBORAH ANN TRS |
|||||
|
6/28/1999 |
|
Deeds |
$203,000 |
FOSTER MARK TRUST |
HERNDON JAMES M & DEBORAH A |
|||||
|
4/18/1997 |
|
Historical |
$0 |
FOSTER MARK |
FOSTER MARK TRUST |
|||||
|
1/29/1997 |
|
Historical |
$0 |
FOSTER MARK & DEANNA |
FOSTER MARK |
|||||
|
4/26/1996 |
|
Historical |
$30,000 |
ROCKWELL DEVELOPMENT COMPANY |
FOSTER MARK & DEANNA |
|||||
| Last Mailed Notice of Value (N.O.V.) Information/History | ||||||||
|---|---|---|---|---|---|---|---|---|
| Year | Date | Market Value | Taxable Market Value | Gross Assessed | Exemption | Net Assessed | ||
|
2026 |
02/23/2026 |
421,000 |
326,570 |
35,922 |
1,000 |
34,922 |
||
|
2025 |
02/14/2025 |
418,000 |
317,059 |
34,875 |
1,000 |
33,875 |
||
|
2024 |
02/13/2024 |
392,500 |
307,825 |
33,860 |
1,000 |
32,860 |
||
|
2023 |
02/14/2023 |
399,500 |
298,860 |
32,874 |
1,000 |
31,874 |
||
|
2022 |
03/15/2022 |
328,000 |
290,156 |
31,916 |
1,000 |
30,916 |
||
| Property Building Permit History | |||||||||||
|---|---|---|---|---|---|---|---|---|---|---|---|
| Issued | Permit # | Provided by | Bldg # | Description | Est Construction Cost | Status | |||||
| No Building Permit records returned. | |||||||||||
| Click button on building number to access detailed information: | ||||||
|---|---|---|---|---|---|---|
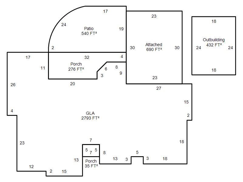
| Bldg # | Vacant/Improved Land | Bldg Description | Year Built | SqFt | # Stories | |
|
1 |
Improved |
Ranch 1 Story |
1996 |
2,793 |
1 Stories |
|