|
|
|
| Larry Stein Oklahoma County Assessor (405) 713-1200 - Public Access System |
|
|
|
|
|
|
| Real Property Display - Screen Produced 3/22/2026 1:25:02 PM | ||||
|---|---|---|---|---|
| Account: R129521110 | Type: Residential | Location: |
6724 NW 119TH ST |
|
| Building Name/Occupant: |
|
OKLAHOMA CITY |
||
| Owner Name 1: | KELLEY CHARLES EDWARD & BRITTANY MICHELE CO TRS |
Parcel PIN#: |
3884-12-952-1110 |
|
| Owner Name 2: | KELLEY CHARLES E & BRITTANY M REV LIV TRUST | 1/4 section #: |
3884 |
|
| Owner Name 3: | Parent Acct: |
|
||
| Billing Address: | 6724 NW 119TH ST | Tax District: |
|
|
| City, State, Zip | OKLAHOMA CITY, OK 73162-1777 | School System: |
Putnam City #1 |
|
|
Country: (If noted) |
Land Size: |
0.3817 Acres |
||
|
Land Value: 63,373 |
|
|||
|
Sect 21-T13N-R4W Qtr NW |
WARWICK WEST SEC 3
Block
007
Lot
007
|
|||
| Full Legal Description: WARWICK WEST SEC 3 007 007 |
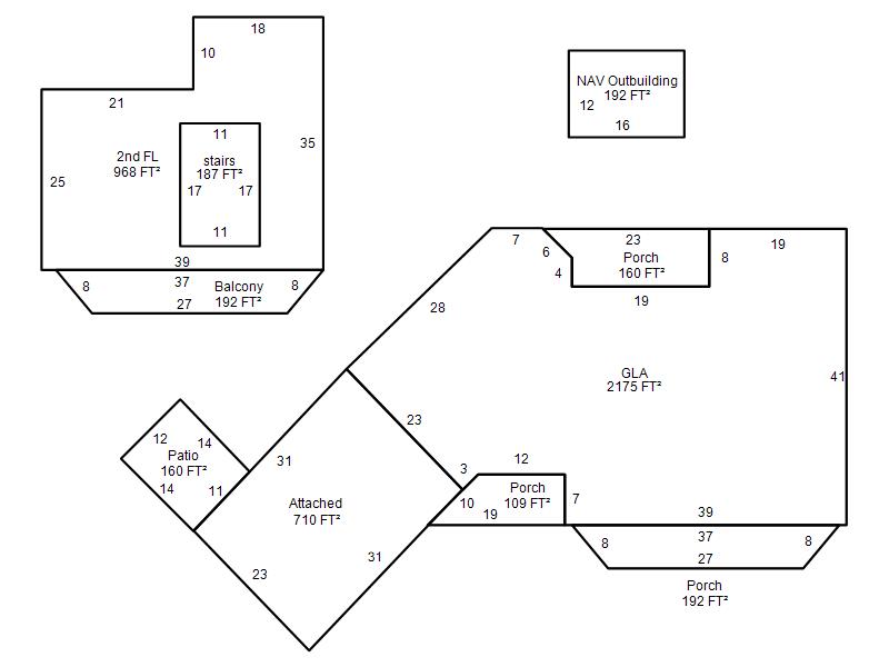
| Photo & Sketch (if available) | Comp Sales (ordered by relevancy) |
|
||||||||||||||||||
|
||||||||||||||||||||
| Value History (*The County Treasurer 405-713-1300 posts & collects actual tax amounts. Contact information HERE) | |||||||||||||
|---|---|---|---|---|---|---|---|---|---|---|---|---|---|
| Year | Market Value | Taxable Mkt Value | Gross Assessed | Exemption | Net Assessed | Millage | Est. Tax | Tax Savings | |||||
|
2025 |
473,500 |
355,228 |
39,075 |
1,000 |
38,075 |
123.17 |
$4,690 |
$1,726 |
|||||
|
2024 |
452,500 |
344,882 |
37,936 |
1,000 |
36,936 |
122.30 |
$4,517 |
$1,570 |
|||||
|
2023 |
451,000 |
334,837 |
36,831 |
1,000 |
35,831 |
121.91 |
$4,368 |
$1,680 |
|||||
|
2022 |
374,500 |
325,085 |
35,758 |
1,000 |
34,758 |
123.41 |
$4,290 |
$794 |
|||||
|
2021 |
326,000 |
315,617 |
34,717 |
1,000 |
33,717 |
122.23 |
$4,121 |
$262 |
|||||
| Property Account Status/Adjustments/Exemptions | ||
|---|---|---|
| Account # | Exemption Description | Amount |
|
R129521110 |
3% Cap Homestead |
0 |
|
R129521110 |
Homestead |
1,000 |
| Property Deed Transaction History (Recorded in the County Clerk's Office) | ||||||||||
|---|---|---|---|---|---|---|---|---|---|---|
| Date | Type | Book | Page | Price | Grantor | Grantee | ||||
|
4/11/2023 |
|
Deeds |
$0 |
KELLEY CHARLES E |
KELLEY CHARLES EDWARD & BRITTANY MICHELE CO TRS |
|||||
|
3/9/2018 |
|
Deeds |
$285,000 |
GINN ALETA J |
KELLEY CHARLES E |
|||||
|
8/27/2010 |
|
Deeds |
$260,000 |
PRATHER JULIE M |
GINN ALETA J |
|||||
|
12/3/2007 |
|
Deeds |
$0 |
PRATHER S SCOTT & JULIE M |
PRATHER JULIE M |
|||||
|
10/31/2000 |
|
Deeds |
$231,000 |
LALANI IKE & NEELOFAR |
PRATHER S SCOTT & JULIE W |
|||||
| Last Mailed Notice of Value (N.O.V.) Information/History | ||||||||
|---|---|---|---|---|---|---|---|---|
| Year | Date | Market Value | Taxable Market Value | Gross Assessed | Exemption | Net Assessed | ||
|
2026 |
02/23/2026 |
483,000 |
365,884 |
40,247 |
1,000 |
39,247 |
||
|
2025 |
02/14/2025 |
473,500 |
355,228 |
39,075 |
1,000 |
38,075 |
||
|
2024 |
02/13/2024 |
452,500 |
344,882 |
37,936 |
1,000 |
36,936 |
||
|
2023 |
02/14/2023 |
451,000 |
334,837 |
36,831 |
1,000 |
35,831 |
||
|
2022 |
03/15/2022 |
374,500 |
325,085 |
35,758 |
1,000 |
34,758 |
||
| Property Building Permit History | ||||||
|---|---|---|---|---|---|---|
| Issued | Permit # | Provided by | Bldg # | Description | Est Construction Cost | Status |
|
4/26/2005 |
10308323 |
OKLAHOMA CITY |
1 |
Swimming Pool |
26,000 |
Inactive |
|
4/29/1996 |
10225925 |
OKLAHOMA CITY |
1 |
Main Dwellin |
145,000 |
Inactive |
| Click button on building number to access detailed information: | ||||||
|---|---|---|---|---|---|---|
| Bldg # | Vacant/Improved Land | Bldg Description | Year Built | SqFt | # Stories | |
|
1 |
Improved |
1½ Story Fin |
1996 |
3,143 |
1.5 Stories |
|