|
|
|
| Larry Stein Oklahoma County Assessor (405) 713-1200 - Public Access System |
|
|
|
|
|
|
| Real Property Display - Screen Produced 3/22/2026 5:58:07 PM | ||||
|---|---|---|---|---|
| Account: R122171420 | Type: Residential | Location: |
8120 N MCKEE BLVD |
|
| Building Name/Occupant: |
|
OKLAHOMA CITY |
||
| Owner Name 1: | UNRUH CYNTHIA P |
Parcel PIN#: |
3922-12-217-1420 |
|
| Owner Name 2: | 1/4 section #: |
3922 |
||
| Owner Name 3: | Parent Acct: |
|
||
| Billing Address: | 8120 N MCKEE BLVD | Tax District: |
|
|
| City, State, Zip | OKLAHOMA CITY, OK 73132-4103 | School System: |
Putnam City #1 |
|
|
Country: (If noted) |
Land Size: |
0.1983 Acres |
||
|
Land Value: 43,200 |
|
|||
|
Sect 31-T13N-R4W Qtr SE |
HARVEST HILLS SOUTH SEC 3
Block
024
Lot
018
|
|||
| Full Legal Description: HARVEST HILLS SOUTH SEC 3 024 018 |
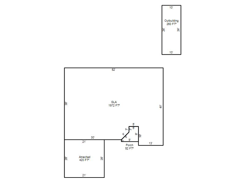
| Photo & Sketch (if available) | Comp Sales (ordered by relevancy) |
|
||||||||||||||||||
|
||||||||||||||||||||
| Value History (*The County Treasurer 405-713-1300 posts & collects actual tax amounts. Contact information HERE) | |||||||||||||
|---|---|---|---|---|---|---|---|---|---|---|---|---|---|
| Year | Market Value | Taxable Mkt Value | Gross Assessed | Exemption | Net Assessed | Millage | Est. Tax | Tax Savings | |||||
|
2025 |
259,500 |
198,233 |
21,805 |
1,000 |
20,805 |
123.17 |
$2,563 |
$953 |
|||||
|
2024 |
251,500 |
192,460 |
21,170 |
1,000 |
20,170 |
122.30 |
$2,467 |
$917 |
|||||
|
2023 |
246,000 |
186,855 |
20,553 |
1,000 |
19,553 |
121.91 |
$2,384 |
$915 |
|||||
|
2022 |
213,000 |
181,413 |
19,955 |
1,000 |
18,955 |
123.41 |
$2,339 |
$552 |
|||||
|
2021 |
190,000 |
176,130 |
19,374 |
1,000 |
18,374 |
122.23 |
$2,246 |
$309 |
|||||
| Property Account Status/Adjustments/Exemptions | ||
|---|---|---|
| Account # | Exemption Description | Amount |
|
R122171420 |
3% Cap Homestead |
0 |
|
R122171420 |
Homestead |
1,000 |
| Property Deed Transaction History (Recorded in the County Clerk's Office) | ||||||||||
|---|---|---|---|---|---|---|---|---|---|---|
| Date | Type | Book | Page | Price | Grantor | Grantee | ||||
|
5/25/2010 |
|
Deeds |
$174,000 |
NELSON JERROD & JENNIFER |
UNRUH CYNTHIA P |
|||||
|
12/16/2005 |
|
Deeds |
$165,000 |
COFER LEN & MARY JEAN |
NELSON JERROD & JENNIFER |
|||||
|
6/16/1997 |
|
Historical |
$105,000 |
MUSE MARK T & TRICIA |
COFER LEN & MARY JEAN |
|||||
|
7/20/1993 |
|
Historical |
$88,500 |
RLA COMPANY INC |
MUSE MARK T & TRICIA |
|||||
|
12/1/1992 |
|
Historical |
$0 |
FRANK LOWERY COMPANY |
RLA COMPANY INC |
|||||
| Last Mailed Notice of Value (N.O.V.) Information/History | ||||||||
|---|---|---|---|---|---|---|---|---|
| Year | Date | Market Value | Taxable Market Value | Gross Assessed | Exemption | Net Assessed | ||
|
2026 |
02/23/2026 |
266,500 |
204,179 |
22,459 |
1,000 |
21,459 |
||
|
2025 |
02/14/2025 |
259,500 |
198,233 |
21,805 |
1,000 |
20,805 |
||
|
2024 |
02/13/2024 |
251,500 |
192,460 |
21,170 |
1,000 |
20,170 |
||
|
2023 |
02/14/2023 |
246,000 |
186,855 |
20,553 |
1,000 |
19,553 |
||
|
2022 |
03/15/2022 |
213,000 |
181,413 |
19,955 |
1,000 |
18,955 |
||
| Property Building Permit History | ||||||
|---|---|---|---|---|---|---|
| Issued | Permit # | Provided by | Bldg # | Description | Est Construction Cost | Status |
|
12/12/2000 |
10208138 |
OKLAHOMA CITY |
1 |
Swimming Pool |
8,000 |
Inactive |
|
3/15/1993 |
10208137 |
OKLAHOMA CITY |
1 |
Main Dwellin |
80,000 |
Inactive |
| Click button on building number to access detailed information: | ||||||
|---|---|---|---|---|---|---|
| Bldg # | Vacant/Improved Land | Bldg Description | Year Built | SqFt | # Stories | |
|
1 |
Improved |
Ranch 1 Story |
1993 |
1,972 |
1 Stories |
|