|
|
|
| Larry Stein Oklahoma County Assessor (405) 713-1200 - Public Access System |
|
|
|
|
|
|
| Real Property Display - Screen Produced 4/1/2026 7:44:49 PM | ||||
|---|---|---|---|---|
| Account: R141841665 | Type: Residential | Location: |
8225 SPRINGBROOK DR |
|
| Building Name/Occupant: |
|
OKLAHOMA CITY |
||
| Owner Name 1: | WESTMORELAND DONNA SUE |
Parcel PIN#: |
3930-14-184-1665 |
|
| Owner Name 2: | 1/4 section #: |
3930 |
||
| Owner Name 3: | Parent Acct: |
3930-14-184-1660 |
||
| Billing Address: | 8 BEWDLEY CIR | Tax District: |
|
|
| City, State, Zip | BELLA VISTA, AR 72714-4302 | School System: |
Putnam City #1 |
|
|
Country: (If noted) |
Land Size: |
0.1625 Acres |
||
|
Land Value: 30,090 |
|
|||
|
Sect 33-T13N-R4W Qtr SE |
SPRING BROOK
Block
004
Lot
000
|
|||
| Full Legal Description: SPRING BROOK 004 000 PT LOT 9 BEG SW/C LOT 9 TH SE117.56FT LEFT ON CURVE 87.52FT W119FT S32FT TO BEG |
| Photo & Sketch (if available) | Comp Sales (ordered by relevancy) |
|
||||||||||||||||||
|
||||||||||||||||||||
| Value History (*The County Treasurer 405-713-1300 posts & collects actual tax amounts. Contact information HERE) | |||||||||||||
|---|---|---|---|---|---|---|---|---|---|---|---|---|---|
| Year | Market Value | Taxable Mkt Value | Gross Assessed | Exemption | Net Assessed | Millage | Est. Tax | Tax Savings | |||||
|
2026 |
164,500 |
116,787 |
12,845 |
0 |
12,845 |
123.17 |
$1,582 |
$646 |
|||||
|
2025 |
158,500 |
111,226 |
12,234 |
0 |
12,234 |
123.17 |
$1,507 |
$641 |
|||||
|
2024 |
144,500 |
105,930 |
11,651 |
0 |
11,651 |
122.30 |
$1,425 |
$519 |
|||||
|
2023 |
135,000 |
100,886 |
11,097 |
0 |
11,097 |
121.91 |
$1,353 |
$457 |
|||||
|
2022 |
125,000 |
96,082 |
10,568 |
0 |
10,568 |
123.41 |
$1,304 |
$393 |
|||||
| Property Account Status/Adjustments/Exemptions | ||
|---|---|---|
| Account # | Exemption Description | Amount |
|
R141841665 |
5% Capped Account |
0 |
| Property Deed Transaction History (Recorded in the County Clerk's Office) | ||||||||||
|---|---|---|---|---|---|---|---|---|---|---|
| Date | Type | Book | Page | Price | Grantor | Grantee | ||||
|
9/6/2012 |
|
Deeds |
$84,000 |
MAAROUF NABIL A & IMAN MAAROUF TAREK A & HODA HUSSEIN |
WESTMORELAND DONNA SUE |
|||||
|
12/14/2007 |
|
Deeds |
$0 |
MAAROUF NABIL A & IMAN |
MAAROUF NABIL A & IMAN MAAROUF TAREK A & HODA HUSSEIN |
|||||
|
4/15/2004 |
|
Mult Parcel |
$167,000 |
STANFILL JULIE L |
MAAROUF NAHIL A MAAROUF TAREK AHMAD |
|||||
|
4/15/2004 |
|
Deeds |
$0 |
MAAROUF NAHIL A MAAROUF TAREK AHMAD |
MAAROUF NABIL A & IMAN |
|||||
|
7/11/2003 |
|
Deeds |
$81,000 |
RICHARDSON WILLIAM H TRS RICHARDSON WILLIAM H REV TR |
STANFILL JULIE L |
|||||
| Last Mailed Notice of Value (N.O.V.) Information/History | ||||||||
|---|---|---|---|---|---|---|---|---|
| Year | Date | Market Value | Taxable Market Value | Gross Assessed | Exemption | Net Assessed | ||
|
2026 |
02/23/2026 |
164,500 |
116,787 |
12,845 |
0 |
12,845 |
||
|
2025 |
02/14/2025 |
158,500 |
111,226 |
12,234 |
0 |
12,234 |
||
|
2024 |
02/13/2024 |
144,500 |
105,930 |
11,651 |
0 |
11,651 |
||
|
2023 |
02/14/2023 |
135,000 |
100,886 |
11,097 |
0 |
11,097 |
||
|
2022 |
03/15/2022 |
125,000 |
96,082 |
10,568 |
0 |
10,568 |
||
| Property Building Permit History | |||||||||||
|---|---|---|---|---|---|---|---|---|---|---|---|
| Issued | Permit # | Provided by | Bldg # | Description | Est Construction Cost | Status | |||||
| No Building Permit records returned. | |||||||||||
| Click button on building number to access detailed information: | ||||||
|---|---|---|---|---|---|---|
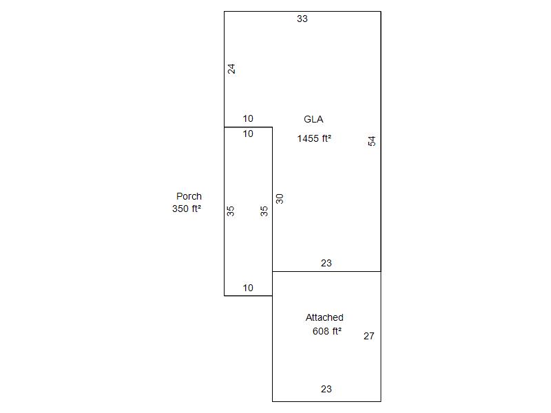
| Bldg # | Vacant/Improved Land | Bldg Description | Year Built | SqFt | # Stories | |
|
1 |
Improved |
Duplex One Story |
1973 |
1,455 |
1 Stories |
|