|
|
|
| Larry Stein Oklahoma County Assessor (405) 713-1200 - Public Access System |
|
|
|
|
|
|
| Real Property Display - Screen Produced 3/20/2026 1:47:15 PM | ||||
|---|---|---|---|---|
| Account: R183430445 | Type: Residential | Location: |
432 N BAUMANN AVE |
|
| Building Name/Occupant: |
|
EDMOND |
||
| Owner Name 1: | ROSE THELMA BILLIE REV TRUST |
Parcel PIN#: |
4698-18-343-0445 |
|
| Owner Name 2: | 1/4 section #: |
4698 |
||
| Owner Name 3: | Parent Acct: |
|
||
| Billing Address: | 1608 SQUIRREL TREE PL | Tax District: |
|
|
| City, State, Zip | EDMOND, OK 73034-4924 | School System: |
Edmond #12 |
|
|
Country: (If noted) |
Land Size: |
0.1157 Acres |
||
|
Land Value: 19,454 |
|
|||
|
Sect 25-T14N-R3W Qtr SE |
HIGHLAND PARK ADD
Block
004
Lot
000
|
|||
| Full Legal Description: HIGHLAND PARK ADD 004 000 W70FT OF LOTS 33 & 34 |
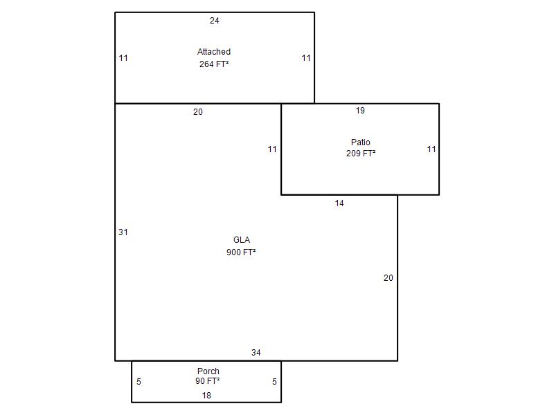
| Photo & Sketch (if available) | Comp Sales (ordered by relevancy) |
|
||||||||||||||||||
|
||||||||||||||||||||
| Value History (*The County Treasurer 405-713-1300 posts & collects actual tax amounts. Contact information HERE) | |||||||||||||
|---|---|---|---|---|---|---|---|---|---|---|---|---|---|
| Year | Market Value | Taxable Mkt Value | Gross Assessed | Exemption | Net Assessed | Millage | Est. Tax | Tax Savings | |||||
|
2025 |
129,000 |
96,995 |
10,669 |
0 |
10,669 |
105.16 |
$1,122 |
$370 |
|||||
|
2024 |
125,500 |
92,377 |
10,160 |
0 |
10,160 |
105.03 |
$1,067 |
$383 |
|||||
|
2023 |
116,500 |
87,979 |
9,676 |
0 |
9,676 |
104.24 |
$1,009 |
$327 |
|||||
|
2022 |
96,500 |
83,790 |
9,216 |
0 |
9,216 |
104.64 |
$964 |
$146 |
|||||
|
2021 |
82,500 |
79,800 |
8,778 |
0 |
8,778 |
104.15 |
$914 |
$31 |
|||||
| Property Account Status/Adjustments/Exemptions | ||
|---|---|---|
| Account # | Exemption Description | Amount |
|
R183430445 |
5% Capped Account |
0 |
| Property Deed Transaction History (Recorded in the County Clerk's Office) | |||||||
|---|---|---|---|---|---|---|---|
| Date | Type | Book | Page | Price | Grantor | Grantee | |
|
4/10/2009 |
|
Deeds |
$0 |
ROSE THELMA H |
ROSE THELMA BILLIE REV TRUST |
||
|
9/16/2008 |
|
Deeds |
$0 |
ROSE THELMA H |
ROSE THELMA BILLIE REV TRUST |
||
|
4/5/1994 |
|
Historical |
$0 |
ROSE THELMA H ETAL |
ROSE THELMA H ETAL |
||
|
11/11/1911 |
|
Historical |
$0 |
|
MCHONE NETTIE |
||
| Last Mailed Notice of Value (N.O.V.) Information/History | ||||||||
|---|---|---|---|---|---|---|---|---|
| Year | Date | Market Value | Taxable Market Value | Gross Assessed | Exemption | Net Assessed | ||
|
2026 |
02/06/2026 |
140,000 |
101,844 |
11,202 |
0 |
11,202 |
||
|
2025 |
01/31/2025 |
129,000 |
96,995 |
10,669 |
0 |
10,669 |
||
|
2024 |
01/22/2024 |
125,500 |
92,377 |
10,160 |
0 |
10,160 |
||
|
2023 |
01/23/2023 |
116,500 |
87,979 |
9,676 |
0 |
9,676 |
||
|
2022 |
02/22/2022 |
96,500 |
83,790 |
9,216 |
0 |
9,216 |
||
| Property Building Permit History | |||||||||||
|---|---|---|---|---|---|---|---|---|---|---|---|
| Issued | Permit # | Provided by | Bldg # | Description | Est Construction Cost | Status | |||||
| No Building Permit records returned. | |||||||||||
| Click button on building number to access detailed information: | ||||||
|---|---|---|---|---|---|---|
| Bldg # | Vacant/Improved Land | Bldg Description | Year Built | SqFt | # Stories | |
|
1 |
Improved |
Ranch 1 Story |
1950 |
900 |
1 Stories |
|