|
|
|
| Larry Stein Oklahoma County Assessor (405) 713-1200 - Public Access System |
|
|
|
|
|
|
| Real Property Display - Screen Produced 3/20/2026 6:26:36 PM | ||||
|---|---|---|---|---|
| Account: R184851070 | Type: Residential | Location: |
1103 WASHINGTON ST |
|
| Building Name/Occupant: |
|
EDMOND |
||
| Owner Name 1: | MOORE MONTGOMERY W & JANET L |
Parcel PIN#: |
4700-18-485-1070 |
|
| Owner Name 2: | 1/4 section #: |
4700 |
||
| Owner Name 3: | Parent Acct: |
|
||
| Billing Address: | 1912 WINDERMERE DR | Tax District: |
|
|
| City, State, Zip | NORMAN, OK 73072-3005 | School System: |
Edmond #12 |
|
|
Country: (If noted) |
Land Size: |
0.1846 Acres |
||
|
Land Value: 25,567 |
|
|||
|
Sect 25-T14N-R3W Qtr NW |
COLLEGE VIEW SEC 1
Block
001
Lot
008
|
|||
| Full Legal Description: COLLEGE VIEW SEC 1 001 008 |
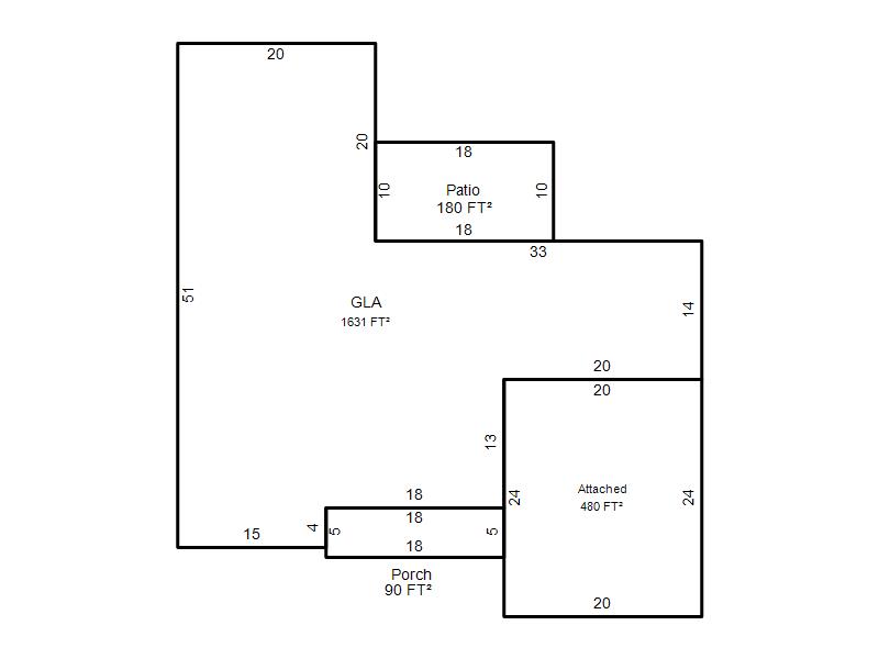
| Photo & Sketch (if available) | Comp Sales (ordered by relevancy) |
|
||||||||||||||||||
|
||||||||||||||||||||
| Value History (*The County Treasurer 405-713-1300 posts & collects actual tax amounts. Contact information HERE) | |||||||||||||
|---|---|---|---|---|---|---|---|---|---|---|---|---|---|
| Year | Market Value | Taxable Mkt Value | Gross Assessed | Exemption | Net Assessed | Millage | Est. Tax | Tax Savings | |||||
|
2025 |
223,000 |
194,631 |
21,408 |
0 |
21,408 |
105.16 |
$2,251 |
$328 |
|||||
|
2024 |
225,000 |
185,363 |
20,389 |
0 |
20,389 |
105.03 |
$2,142 |
$458 |
|||||
|
2023 |
200,500 |
176,537 |
19,418 |
0 |
19,418 |
104.24 |
$2,024 |
$275 |
|||||
|
2022 |
181,000 |
168,131 |
18,493 |
0 |
18,493 |
104.64 |
$1,935 |
$148 |
|||||
|
2021 |
161,000 |
160,125 |
17,613 |
0 |
17,613 |
104.15 |
$1,834 |
$10 |
|||||
| Property Account Status/Adjustments/Exemptions | ||
|---|---|---|
| Account # | Exemption Description | Amount |
|
R184851070 |
5% Capped Account |
0 |
| Property Deed Transaction History (Recorded in the County Clerk's Office) | |||||||
|---|---|---|---|---|---|---|---|
| Date | Type | Book | Page | Price | Grantor | Grantee | |
|
3/28/2007 |
|
Deeds |
$135,000 |
CHAVES MARK A & PENNY A |
MOORE MONTGOMERY W & JANET L |
||
|
11/15/2001 |
|
Deeds |
$90,000 |
FULLGRAF HERMAN E & CLARA L |
CHAVES MARK A & PENNY A |
||
|
11/11/1911 |
|
Historical |
$0 |
|
FULLGRAF HERMAN E & CLARA L |
||
| Last Mailed Notice of Value (N.O.V.) Information/History | ||||||||
|---|---|---|---|---|---|---|---|---|
| Year | Date | Market Value | Taxable Market Value | Gross Assessed | Exemption | Net Assessed | ||
|
2026 |
02/06/2026 |
231,500 |
204,362 |
22,479 |
0 |
22,479 |
||
|
2025 |
01/31/2025 |
223,000 |
194,631 |
21,408 |
0 |
21,408 |
||
|
2024 |
01/22/2024 |
225,000 |
185,363 |
20,389 |
0 |
20,389 |
||
|
2023 |
01/23/2023 |
200,500 |
176,537 |
19,418 |
0 |
19,418 |
||
|
2022 |
02/22/2022 |
181,000 |
168,131 |
18,493 |
0 |
18,493 |
||
| Property Building Permit History | |||||||||||
|---|---|---|---|---|---|---|---|---|---|---|---|
| Issued | Permit # | Provided by | Bldg # | Description | Est Construction Cost | Status | |||||
| No Building Permit records returned. | |||||||||||
| Click button on building number to access detailed information: | ||||||
|---|---|---|---|---|---|---|
| Bldg # | Vacant/Improved Land | Bldg Description | Year Built | SqFt | # Stories | |
|
1 |
Improved |
Ranch 1 Story |
1967 |
1,631 |
1 Stories |
|