|
|
|
| Larry Stein Oklahoma County Assessor (405) 713-1200 - Public Access System |
|
|
|
|
|
|
| Real Property Display - Screen Produced 3/20/2026 6:32:36 PM | ||||
|---|---|---|---|---|
| Account: R180261010 | Type: Residential | Location: |
516 SUNNYSIDE PL |
|
| Building Name/Occupant: |
|
EDMOND |
||
| Owner Name 1: | ZIJOUD HOMAYOUN & MARJAN CO TRS |
Parcel PIN#: |
4704-18-026-1010 |
|
| Owner Name 2: | ZIJOUD HOMAYOUN & MARJAN REV TRUST | 1/4 section #: |
4704 |
|
| Owner Name 3: | Parent Acct: |
|
||
| Billing Address: | 7979 E COFFEE CREEK RD | Tax District: |
|
|
| City, State, Zip | EDMOND , OK 73034 | School System: |
Edmond #12 |
|
|
Country: (If noted) |
Land Size: |
0.1313 Acres |
||
|
Land Value: 21,736 |
|
|||
|
Sect 26-T14N-R3W Qtr NW |
MEADOW LAKES ADD SEC 2
Block
006
Lot
002
|
|||
| Full Legal Description: MEADOW LAKES ADD SEC 2 006 002 |
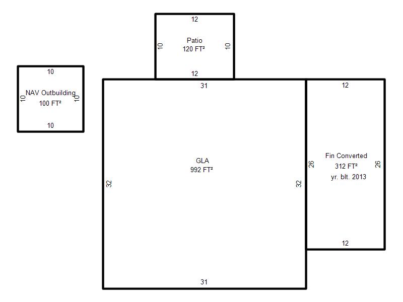
| Photo & Sketch (if available) | Comp Sales (ordered by relevancy) |
|
||||||||||||||||||
|
||||||||||||||||||||
| Value History (*The County Treasurer 405-713-1300 posts & collects actual tax amounts. Contact information HERE) | |||||||||||||
|---|---|---|---|---|---|---|---|---|---|---|---|---|---|
| Year | Market Value | Taxable Mkt Value | Gross Assessed | Exemption | Net Assessed | Millage | Est. Tax | Tax Savings | |||||
|
2025 |
169,500 |
155,452 |
17,099 |
0 |
17,099 |
105.16 |
$1,798 |
$163 |
|||||
|
2024 |
166,500 |
148,050 |
16,285 |
0 |
16,285 |
105.03 |
$1,710 |
$213 |
|||||
|
2023 |
141,000 |
141,000 |
15,510 |
0 |
15,510 |
104.24 |
$1,617 |
$0 |
|||||
|
2022 |
140,500 |
126,236 |
13,885 |
0 |
13,885 |
104.64 |
$1,453 |
$164 |
|||||
|
2021 |
123,000 |
120,225 |
13,224 |
0 |
13,224 |
104.15 |
$1,377 |
$32 |
|||||
| Property Account Status/Adjustments/Exemptions | ||
|---|---|---|
| Account # | Exemption Description | Amount |
|
R180261010 |
5% Capped Account |
0 |
| Property Deed Transaction History (Recorded in the County Clerk's Office) | ||||||||||
|---|---|---|---|---|---|---|---|---|---|---|
| Date | Type | Book | Page | Price | Grantor | Grantee | ||||
|
10/17/2022 |
|
Deeds |
$140,000 |
SEDBROOK LINDA |
ZIJOUD HOMAYOUN & MARJAN CO TRS |
|||||
|
4/30/2004 |
|
Deeds |
$72,500 |
MARTIN JAMES W & ELIEEN F |
SEDBROOK LINDA |
|||||
|
2/26/2003 |
|
Deeds |
$52,000 |
MAHAN MAURISA D |
MARTIN JAMES W & ELIEEN F |
|||||
|
10/31/2000 |
|
Deeds |
$49,000 |
RAY FRANK C IV & DONNA C |
MAHAN MAURISA D |
|||||
|
10/3/1995 |
|
Historical |
$43,500 |
JONES CHRISTOPHER J |
RAY FRANK C IV & DONNA C |
|||||
| Last Mailed Notice of Value (N.O.V.) Information/History | ||||||||
|---|---|---|---|---|---|---|---|---|
| Year | Date | Market Value | Taxable Market Value | Gross Assessed | Exemption | Net Assessed | ||
|
2026 |
02/06/2026 |
171,000 |
163,224 |
17,953 |
0 |
17,953 |
||
|
2025 |
01/31/2025 |
169,500 |
155,452 |
17,099 |
0 |
17,099 |
||
|
2024 |
01/22/2024 |
166,500 |
148,050 |
16,285 |
0 |
16,285 |
||
|
2023 |
01/23/2023 |
141,000 |
141,000 |
15,510 |
0 |
15,510 |
||
|
2022 |
02/22/2022 |
140,500 |
126,236 |
13,885 |
0 |
13,885 |
||
| Property Building Permit History | |||||||||||
|---|---|---|---|---|---|---|---|---|---|---|---|
| Issued | Permit # | Provided by | Bldg # | Description | Est Construction Cost | Status | |||||
| No Building Permit records returned. | |||||||||||
| Click button on building number to access detailed information: | ||||||
|---|---|---|---|---|---|---|
| Bldg # | Vacant/Improved Land | Bldg Description | Year Built | SqFt | # Stories | |
|
1 |
Improved |
Ranch 1 Story |
1970 |
992 |
1 Stories |
|