|
|
|
| Larry Stein Oklahoma County Assessor (405) 713-1200 - Public Access System |
|
|
|
|
|
|
| Real Property Display - Screen Produced 3/20/2026 6:30:00 PM | ||||
|---|---|---|---|---|
| Account: R180261520 | Type: Residential | Location: |
417 SUNNYSIDE PL |
|
| Building Name/Occupant: |
|
EDMOND |
||
| Owner Name 1: | HARTMANN MARTIN E |
Parcel PIN#: |
4704-18-026-1520 |
|
| Owner Name 2: | BROCK NANCY L | 1/4 section #: |
4704 |
|
| Owner Name 3: | Parent Acct: |
|
||
| Billing Address: | 417 SUNNYSIDE PL | Tax District: |
|
|
| City, State, Zip | EDMOND, OK 73003-5135 | School System: |
Edmond #12 |
|
|
Country: (If noted) |
Land Size: |
0.1313 Acres |
||
|
Land Value: 21,736 |
|
|||
|
Sect 26-T14N-R3W Qtr NW |
MEADOW LAKES ADD SEC 2
Block
007
Lot
019
|
|||
| Full Legal Description: MEADOW LAKES ADD SEC 2 007 019 |
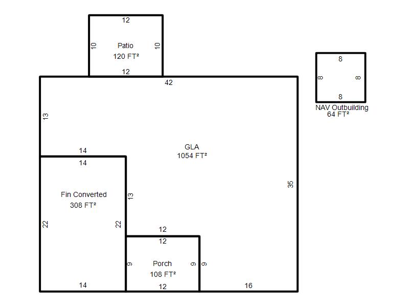
| Photo & Sketch (if available) | Comp Sales (ordered by relevancy) |
|
||||||||||||||||||
|
||||||||||||||||||||
| Value History (*The County Treasurer 405-713-1300 posts & collects actual tax amounts. Contact information HERE) | |||||||||||||
|---|---|---|---|---|---|---|---|---|---|---|---|---|---|
| Year | Market Value | Taxable Mkt Value | Gross Assessed | Exemption | Net Assessed | Millage | Est. Tax | Tax Savings | |||||
|
2025 |
165,000 |
128,098 |
14,090 |
1,000 |
13,090 |
105.16 |
$1,377 |
$532 |
|||||
|
2024 |
161,500 |
124,367 |
13,679 |
1,000 |
12,679 |
105.03 |
$1,332 |
$534 |
|||||
|
2023 |
151,500 |
120,745 |
13,281 |
1,000 |
12,281 |
104.24 |
$1,280 |
$457 |
|||||
|
2022 |
135,500 |
117,229 |
12,894 |
1,000 |
11,894 |
104.64 |
$1,245 |
$315 |
|||||
|
2021 |
118,000 |
113,815 |
12,519 |
1,000 |
11,519 |
104.15 |
$1,200 |
$152 |
|||||
| Property Account Status/Adjustments/Exemptions | ||
|---|---|---|
| Account # | Exemption Description | Amount |
|
R180261520 |
3% Cap Homestead |
0 |
|
R180261520 |
Homestead |
1,000 |
| Property Deed Transaction History (Recorded in the County Clerk's Office) | |||||||
|---|---|---|---|---|---|---|---|
| Date | Type | Book | Page | Price | Grantor | Grantee | |
|
7/24/1996 |
|
Historical |
$0 |
BROCK NANCY LYNN |
HARTMANN MARTIN E |
||
|
8/25/1992 |
|
Historical |
$38,000 |
ROACH MICHAEL J & RHONDA K |
BROCK NANCY LYNN |
||
|
7/1/1979 |
|
Historical |
$0 |
|
ROACH MICHAEL J & RHONDA K |
||
| Last Mailed Notice of Value (N.O.V.) Information/History | ||||||||
|---|---|---|---|---|---|---|---|---|
| Year | Date | Market Value | Taxable Market Value | Gross Assessed | Exemption | Net Assessed | ||
|
2026 |
02/06/2026 |
166,000 |
131,940 |
14,512 |
1,000 |
13,512 |
||
|
2025 |
01/31/2025 |
165,000 |
128,098 |
14,090 |
1,000 |
13,090 |
||
|
2024 |
01/22/2024 |
161,500 |
124,367 |
13,679 |
1,000 |
12,679 |
||
|
2023 |
01/23/2023 |
151,500 |
120,745 |
13,281 |
1,000 |
12,281 |
||
|
2022 |
02/22/2022 |
135,500 |
117,229 |
12,894 |
1,000 |
11,894 |
||
| Property Building Permit History | ||||||
|---|---|---|---|---|---|---|
| Issued | Permit # | Provided by | Bldg # | Description | Est Construction Cost | Status |
|
5/13/1994 |
10256709 |
EDMOND |
1 |
Add On |
300 |
Inactive |
| Click button on building number to access detailed information: | ||||||
|---|---|---|---|---|---|---|
| Bldg # | Vacant/Improved Land | Bldg Description | Year Built | SqFt | # Stories | |
|
1 |
Improved |
Ranch 1 Story |
1971 |
1,054 |
1 Stories |
|