|
|
|
| Larry Stein Oklahoma County Assessor (405) 713-1200 - Public Access System |
|
|
|
|
|
|
| Real Property Display - Screen Produced 3/20/2026 10:52:46 PM | ||||
|---|---|---|---|---|
| Account: R182061510 | Type: Residential | Location: |
321 MEADOW LAKE DR |
|
| Building Name/Occupant: |
|
EDMOND |
||
| Owner Name 1: | WILLMAN CYNTHIA L |
Parcel PIN#: |
4704-18-206-1510 |
|
| Owner Name 2: | 1/4 section #: |
4704 |
||
| Owner Name 3: | Parent Acct: |
|
||
| Billing Address: | 321 MEADOW LAKE DR | Tax District: |
|
|
| City, State, Zip | EDMOND, OK 73003-5115 | School System: |
Edmond #12 |
|
|
Country: (If noted) |
Land Size: |
0.1747 Acres |
||
|
Land Value: 28,922 |
|
|||
|
Sect 26-T14N-R3W Qtr NW |
MEADOW LAKES SEC 4
Block
012
Lot
014
|
|||
| Full Legal Description: MEADOW LAKES SEC 4 012 014 |
| Photo & Sketch (if available) | Comp Sales (ordered by relevancy) |
|
||||||||||||||||||
|
||||||||||||||||||||
| Value History (*The County Treasurer 405-713-1300 posts & collects actual tax amounts. Contact information HERE) | |||||||||||||
|---|---|---|---|---|---|---|---|---|---|---|---|---|---|
| Year | Market Value | Taxable Mkt Value | Gross Assessed | Exemption | Net Assessed | Millage | Est. Tax | Tax Savings | |||||
|
2025 |
176,000 |
136,793 |
15,046 |
1,000 |
14,046 |
105.16 |
$1,477 |
$559 |
|||||
|
2024 |
172,500 |
132,809 |
14,608 |
1,000 |
13,608 |
105.03 |
$1,429 |
$564 |
|||||
|
2023 |
162,500 |
128,941 |
14,183 |
1,000 |
13,183 |
104.24 |
$1,374 |
$489 |
|||||
|
2022 |
144,000 |
125,186 |
13,770 |
1,000 |
12,770 |
104.64 |
$1,336 |
$321 |
|||||
|
2021 |
126,500 |
121,540 |
13,369 |
1,000 |
12,369 |
104.15 |
$1,288 |
$161 |
|||||
| Property Account Status/Adjustments/Exemptions | ||
|---|---|---|
| Account # | Exemption Description | Amount |
|
R182061510 |
Homestead |
1,000 |
|
R182061510 |
3% Cap Homestead |
0 |
| Property Deed Transaction History (Recorded in the County Clerk's Office) | |||||||
|---|---|---|---|---|---|---|---|
| Date | Type | Book | Page | Price | Grantor | Grantee | |
|
5/10/2007 |
|
Deeds |
$91,000 |
MCGINNIS PARTICK EDWARD HUBBARD OTIS LELAND |
WILLMAN CYNTHIA L |
||
|
9/1/1979 |
|
Historical |
$0 |
|
MCGINNIS PARTICK EDWARD |
||
| Last Mailed Notice of Value (N.O.V.) Information/History | ||||||||
|---|---|---|---|---|---|---|---|---|
| Year | Date | Market Value | Taxable Market Value | Gross Assessed | Exemption | Net Assessed | ||
|
2026 |
02/06/2026 |
178,500 |
140,896 |
15,498 |
1,000 |
14,498 |
||
|
2025 |
01/31/2025 |
176,000 |
136,793 |
15,046 |
1,000 |
14,046 |
||
|
2024 |
01/22/2024 |
172,500 |
132,809 |
14,608 |
1,000 |
13,608 |
||
|
2023 |
01/23/2023 |
162,500 |
128,941 |
14,183 |
1,000 |
13,183 |
||
|
2022 |
02/22/2022 |
144,000 |
125,186 |
13,770 |
1,000 |
12,770 |
||
| Property Building Permit History | |||||||||||
|---|---|---|---|---|---|---|---|---|---|---|---|
| Issued | Permit # | Provided by | Bldg # | Description | Est Construction Cost | Status | |||||
| No Building Permit records returned. | |||||||||||
| Click button on building number to access detailed information: | ||||||
|---|---|---|---|---|---|---|
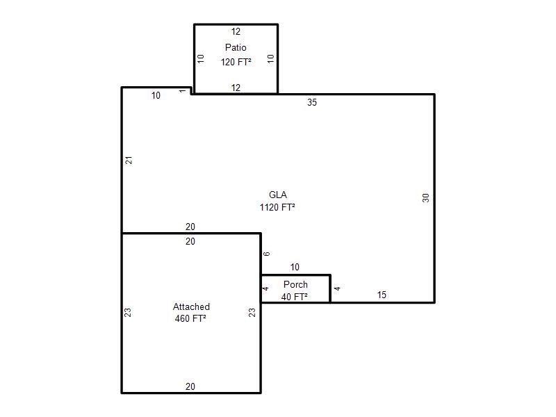
| Bldg # | Vacant/Improved Land | Bldg Description | Year Built | SqFt | # Stories | |
|
1 |
Improved |
Ranch 1 Story |
1974 |
1,120 |
1 Stories |
|