|
|
|
| Larry Stein Oklahoma County Assessor (405) 713-1200 - Public Access System |
|
|
|
|
|
|
| Real Property Display - Screen Produced 3/23/2026 8:57:55 AM | ||||
|---|---|---|---|---|
| Account: R126901100 | Type: Residential | Location: |
2709 JILLS TRL |
|
| Building Name/Occupant: |
|
EDMOND |
||
| Owner Name 1: | BENGE LUCINDA A REV TRUST |
Parcel PIN#: |
4709-12-690-1100 |
|
| Owner Name 2: | 1/4 section #: |
4709 |
||
| Owner Name 3: | Parent Acct: |
|
||
| Billing Address: | 2709 JILLS TRL | Tax District: |
|
|
| City, State, Zip | EDMOND , OK 73012-4352 | School System: |
Edmond #12 |
|
|
Country: (If noted) |
Land Size: |
0.2066 Acres |
||
|
Land Value: 41,220 |
|
|||
|
Sect 28-T14N-R3W Qtr NE |
THE TRAILS 10TH
Block
001
Lot
022
|
|||
| Full Legal Description: THE TRAILS 10TH 001 022 |
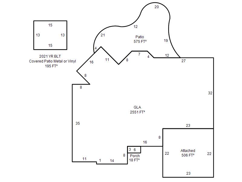
| Photo & Sketch (if available) | Comp Sales (ordered by relevancy) |
|
||||||||||||||||||
|
||||||||||||||||||||
| Value History (*The County Treasurer 405-713-1300 posts & collects actual tax amounts. Contact information HERE) | |||||||||||||
|---|---|---|---|---|---|---|---|---|---|---|---|---|---|
| Year | Market Value | Taxable Mkt Value | Gross Assessed | Exemption | Net Assessed | Millage | Est. Tax | Tax Savings | |||||
|
2025 |
336,500 |
289,897 |
31,888 |
0 |
31,888 |
105.16 |
$3,353 |
$539 |
|||||
|
2024 |
321,500 |
276,093 |
30,370 |
0 |
30,370 |
105.03 |
$3,190 |
$525 |
|||||
|
2023 |
310,000 |
262,946 |
28,923 |
0 |
28,923 |
104.24 |
$3,015 |
$540 |
|||||
|
2022 |
269,500 |
250,425 |
27,546 |
0 |
27,546 |
104.64 |
$2,882 |
$220 |
|||||
|
2021 |
238,500 |
238,500 |
26,235 |
0 |
26,235 |
104.15 |
$2,732 |
$0 |
|||||
| Property Account Status/Adjustments/Exemptions | ||
|---|---|---|
| Account # | Exemption Description | Amount |
|
R126901100 |
5% Capped Account |
0 |
| Property Deed Transaction History (Recorded in the County Clerk's Office) | ||||||||||
|---|---|---|---|---|---|---|---|---|---|---|
| Date | Type | Book | Page | Price | Grantor | Grantee | ||||
|
2/26/2020 |
|
Deeds |
$240,000 |
DO LIEN HUONG T |
BENGE LUCINDA A REV TRUST |
|||||
|
2/9/2016 |
|
Deeds |
$191,000 |
WILLIAMS MICHAEL D & JOANNE |
DO LIEN HUONG T |
|||||
|
4/17/1995 |
|
Historical |
$135,000 |
IGLOO HOMES INC |
WILLIAMS MICHAEL D & JOANNE |
|||||
|
12/3/1993 |
|
Historical |
$0 |
TRAILS DEVELOPMENT INC |
IGLOO HOMES INC |
|||||
|
11/13/1991 |
|
Historical |
$0 |
FIRST SERVICE DEVEL LTD |
TRAILS DEVELOPMENT INC |
|||||
| Last Mailed Notice of Value (N.O.V.) Information/History | ||||||||
|---|---|---|---|---|---|---|---|---|
| Year | Date | Market Value | Taxable Market Value | Gross Assessed | Exemption | Net Assessed | ||
|
2026 |
02/06/2026 |
334,500 |
304,391 |
33,482 |
0 |
33,482 |
||
|
2025 |
01/31/2025 |
336,500 |
289,897 |
31,888 |
0 |
31,888 |
||
|
2024 |
01/22/2024 |
321,500 |
276,093 |
30,370 |
0 |
30,370 |
||
|
2023 |
01/23/2023 |
310,000 |
262,946 |
28,923 |
0 |
28,923 |
||
|
2022 |
02/22/2022 |
269,500 |
250,425 |
27,546 |
0 |
27,546 |
||
| Property Building Permit History | ||||||
|---|---|---|---|---|---|---|
| Issued | Permit # | Provided by | Bldg # | Description | Est Construction Cost | Status |
|
12/26/1993 |
10216428 |
EDMOND |
1 |
Main Dwellin |
145,000 |
Inactive |
| Click button on building number to access detailed information: | ||||||
|---|---|---|---|---|---|---|
| Bldg # | Vacant/Improved Land | Bldg Description | Year Built | SqFt | # Stories | |
|
1 |
Improved |
Ranch 1 Story |
1994 |
2,551 |
1 Stories |
|