|
|
|
| Larry Stein Oklahoma County Assessor (405) 713-1200 - Public Access System |
|
|
|
|
|
|
| Real Property Display - Screen Produced 3/23/2026 10:15:08 AM | ||||
|---|---|---|---|---|
| Account: R121741100 | Type: Residential | Location: |
305 ANTELOPE TRL |
|
| Building Name/Occupant: |
|
EDMOND |
||
| Owner Name 1: | GOULD BRIAN A |
Parcel PIN#: |
4710-12-174-1100 |
|
| Owner Name 2: | 1/4 section #: |
4710 |
||
| Owner Name 3: | Parent Acct: |
|
||
| Billing Address: | 305 ANTELOPE TRL | Tax District: |
|
|
| City, State, Zip | EDMOND, OK 73012-4420 | School System: |
Edmond #12 |
|
|
Country: (If noted) |
Land Size: |
0.6667 Acres |
||
|
Land Value: 102,244 |
|
|||
|
Sect 28-T14N-R3W Qtr SE |
THE TRAILS 7TH
Block
002
Lot
000
|
|||
| Full Legal Description: THE TRAILS 7TH 002 000 LOTS 5 THRU 7 |
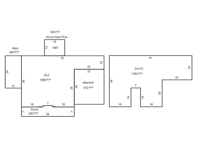
| Photo & Sketch (if available) | Comp Sales (ordered by relevancy) |
|
||||||||||||||||||
|
||||||||||||||||||||
| Value History (*The County Treasurer 405-713-1300 posts & collects actual tax amounts. Contact information HERE) | |||||||||||||
|---|---|---|---|---|---|---|---|---|---|---|---|---|---|
| Year | Market Value | Taxable Mkt Value | Gross Assessed | Exemption | Net Assessed | Millage | Est. Tax | Tax Savings | |||||
|
2025 |
453,000 |
357,276 |
39,299 |
1,000 |
38,299 |
105.16 |
$4,028 |
$1,212 |
|||||
|
2024 |
447,000 |
346,870 |
38,155 |
1,000 |
37,155 |
105.03 |
$3,902 |
$1,262 |
|||||
|
2023 |
429,500 |
336,767 |
37,043 |
1,000 |
36,043 |
104.24 |
$3,757 |
$1,168 |
|||||
|
2022 |
370,500 |
326,959 |
35,964 |
1,000 |
34,964 |
104.64 |
$3,659 |
$606 |
|||||
|
2021 |
329,000 |
317,436 |
34,917 |
1,000 |
33,917 |
104.15 |
$3,533 |
$237 |
|||||
| Property Account Status/Adjustments/Exemptions | ||
|---|---|---|
| Account # | Exemption Description | Amount |
|
R121741100 |
3% Cap Homestead |
0 |
|
R121741100 |
Homestead |
1,000 |
| Property Deed Transaction History (Recorded in the County Clerk's Office) | ||||||||||
|---|---|---|---|---|---|---|---|---|---|---|
| Date | Type | Book | Page | Price | Grantor | Grantee | ||||
|
3/20/2015 |
|
Deeds |
$0 |
GOULD BRIAN A GOULD HEATHER J |
GOULD BRIAN A |
|||||
|
5/15/2008 |
|
Deeds |
$250,000 |
SANDERS R TERRELL & CHERYL L |
GOULD BRIAN A GOULD HEATHER J |
|||||
|
3/1/1996 |
|
Historical |
$182,500 |
COLEMAN HOMES INC |
SANDERS R TERRELL & CHERYL L |
|||||
|
9/1/1995 |
|
Historical |
$9,150 |
TRAILS DEVELOPMENT INC |
COLEMAN HOMES INC |
|||||
|
11/13/1991 |
|
Historical |
$0 |
FIRST SERVICE DEVEL LTD |
TRAILS DEVELOPMENT INC |
|||||
| Last Mailed Notice of Value (N.O.V.) Information/History | ||||||||
|---|---|---|---|---|---|---|---|---|
| Year | Date | Market Value | Taxable Market Value | Gross Assessed | Exemption | Net Assessed | ||
|
2026 |
02/06/2026 |
452,000 |
367,994 |
40,479 |
1,000 |
39,479 |
||
|
2025 |
01/31/2025 |
453,000 |
357,276 |
39,299 |
1,000 |
38,299 |
||
|
2024 |
01/22/2024 |
447,000 |
346,870 |
38,155 |
1,000 |
37,155 |
||
|
2023 |
01/23/2023 |
429,500 |
336,767 |
37,043 |
1,000 |
36,043 |
||
|
2022 |
02/22/2022 |
370,500 |
326,959 |
35,964 |
1,000 |
34,964 |
||
| Property Building Permit History | ||||||
|---|---|---|---|---|---|---|
| Issued | Permit # | Provided by | Bldg # | Description | Est Construction Cost | Status |
|
9/1/1995 |
10207650 |
EDMOND |
1 |
Main Dwellin |
160,000 |
Inactive |
| Click button on building number to access detailed information: | ||||||
|---|---|---|---|---|---|---|
| Bldg # | Vacant/Improved Land | Bldg Description | Year Built | SqFt | # Stories | |
|
1 |
Improved |
2 Story |
1996 |
3,475 |
2 Stories |
|