|
|
|
| Larry Stein Oklahoma County Assessor (405) 713-1200 - Public Access System |
|
|
|
|
|
|
| Real Property Display - Screen Produced 3/23/2026 10:15:08 AM | ||||
|---|---|---|---|---|
| Account: R121741190 | Type: Residential | Location: |
304 ANTELOPE TRL |
|
| Building Name/Occupant: |
|
EDMOND |
||
| Owner Name 1: | BRADLEY PATTI L TRS |
Parcel PIN#: |
4710-12-174-1190 |
|
| Owner Name 2: | BRADLEY NANCY A TRS | 1/4 section #: |
4710 |
|
| Owner Name 3: | BRADLEY REV TRUST | Parent Acct: |
|
|
| Billing Address: | 304 ANTELOPE TRL | Tax District: |
|
|
| City, State, Zip | EDMOND, OK 73012 | School System: |
Edmond #12 |
|
|
Country: (If noted) |
Land Size: |
0.2057 Acres |
||
|
Land Value: 39,872 |
|
|||
|
Sect 28-T14N-R3W Qtr SE |
THE TRAILS 7TH
Block
002
Lot
014
|
|||
| Full Legal Description: THE TRAILS 7TH 002 014 |
| Photo & Sketch (if available) | Comp Sales (ordered by relevancy) |
|
||||||||||||||||||
|
||||||||||||||||||||
| Value History (*The County Treasurer 405-713-1300 posts & collects actual tax amounts. Contact information HERE) | |||||||||||||
|---|---|---|---|---|---|---|---|---|---|---|---|---|---|
| Year | Market Value | Taxable Mkt Value | Gross Assessed | Exemption | Net Assessed | Millage | Est. Tax | Tax Savings | |||||
|
2025 |
292,500 |
225,065 |
24,757 |
1,000 |
23,757 |
105.16 |
$2,498 |
$885 |
|||||
|
2024 |
285,500 |
218,510 |
24,036 |
1,000 |
23,036 |
105.03 |
$2,419 |
$879 |
|||||
|
2023 |
275,000 |
212,146 |
23,335 |
1,000 |
22,335 |
104.24 |
$2,328 |
$825 |
|||||
|
2022 |
238,000 |
205,967 |
22,655 |
1,000 |
21,655 |
104.64 |
$2,266 |
$473 |
|||||
|
2021 |
208,500 |
199,968 |
21,995 |
1,000 |
20,995 |
104.15 |
$2,187 |
$202 |
|||||
| Property Account Status/Adjustments/Exemptions | ||
|---|---|---|
| Account # | Exemption Description | Amount |
|
R121741190 |
Freeze Senior Valuation |
0 |
|
R121741190 |
3% Cap Homestead |
0 |
|
R121741190 |
Homestead |
1,000 |
| Property Deed Transaction History (Recorded in the County Clerk's Office) | ||||||||||
|---|---|---|---|---|---|---|---|---|---|---|
| Date | Type | Book | Page | Price | Grantor | Grantee | ||||
|
6/27/2022 |
|
Deeds |
$0 |
BRADLEY PATTI L |
BRADLEY PATTI L TRS |
|||||
|
4/23/2004 |
|
Deeds |
$142,000 |
MCALPINE JAIME L & CHERYL L |
BRADLEY PATTI L |
|||||
|
6/14/1993 |
|
Historical |
$94,500 |
ODYSSEY DEVELOPMENT CORP |
MCALPINE JAIME L & CHERYL L |
|||||
|
2/3/1993 |
|
Historical |
$0 |
TRAILS DEVELOPMENT INC |
ODYSSEY DEVELOPMENT CORP |
|||||
|
11/13/1991 |
|
Historical |
$0 |
FIRST SERVICE DEVEL LTD |
TRAILS DEVELOPMENT INC |
|||||
| Last Mailed Notice of Value (N.O.V.) Information/History | ||||||||
|---|---|---|---|---|---|---|---|---|
| Year | Date | Market Value | Taxable Market Value | Gross Assessed | Exemption | Net Assessed | ||
|
2025 |
01/31/2025 |
292,500 |
225,065 |
24,757 |
1,000 |
23,757 |
||
|
2024 |
01/22/2024 |
285,500 |
218,510 |
24,036 |
1,000 |
23,036 |
||
|
2023 |
01/23/2023 |
275,000 |
212,146 |
23,335 |
1,000 |
22,335 |
||
|
2022 |
02/22/2022 |
238,000 |
205,967 |
22,654 |
1,000 |
21,654 |
||
|
2021 |
02/24/2021 |
208,500 |
199,968 |
21,996 |
1,000 |
20,996 |
||
| Property Building Permit History | ||||||
|---|---|---|---|---|---|---|
| Issued | Permit # | Provided by | Bldg # | Description | Est Construction Cost | Status |
|
2/16/1993 |
10207654 |
EDMOND |
1 |
Main Dwellin |
80,000 |
Inactive |
| Click button on building number to access detailed information: | ||||||
|---|---|---|---|---|---|---|
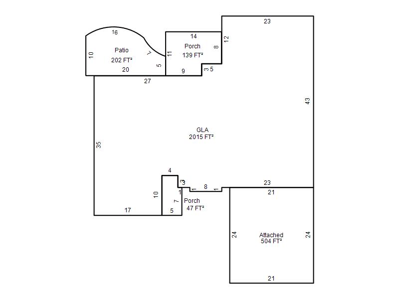
| Bldg # | Vacant/Improved Land | Bldg Description | Year Built | SqFt | # Stories | |
|
1 |
Improved |
Ranch 1 Story |
1993 |
2,015 |
1 Stories |
|