|
|
|
| Larry Stein Oklahoma County Assessor (405) 713-1200 - Public Access System |
|
|
|
|
|
|
| Real Property Display - Screen Produced 3/18/2026 7:20:00 PM | ||||
|---|---|---|---|---|
| Account: R151641035 | Type: Residential | Location: |
4513 SE 41ST ST |
|
| Building Name/Occupant: |
|
DEL CITY |
||
| Owner Name 1: | PALMER CARLOS & VICTORIA |
Parcel PIN#: |
1467-15-164-1035 |
|
| Owner Name 2: | 1/4 section #: |
1467 |
||
| Owner Name 3: | Parent Acct: |
|
||
| Billing Address: | 4513 SE 41ST ST | Tax District: |
|
|
| City, State, Zip | DEL CITY, OK 73115-3701 | School System: |
Mid-Del #52 |
|
|
Country: (If noted) |
Land Size: |
0.1653 Acres |
||
|
Land Value: 15,840 |
|
|||
|
Sect 17-T11N-R2W Qtr SW |
DEL MAR HILLS
Block
001
Lot
007
|
|||
| Full Legal Description: DEL MAR HILLS 001 007 |
| Photo & Sketch (if available) | Comp Sales (ordered by relevancy) |
|
||||||||||||||||||
|
||||||||||||||||||||
| Value History (*The County Treasurer 405-713-1300 posts & collects actual tax amounts. Contact information HERE) | |||||||||||||
|---|---|---|---|---|---|---|---|---|---|---|---|---|---|
| Year | Market Value | Taxable Mkt Value | Gross Assessed | Exemption | Net Assessed | Millage | Est. Tax | Tax Savings | |||||
|
2025 |
127,500 |
127,500 |
14,025 |
0 |
14,025 |
114.72 |
$1,609 |
$0 |
|||||
|
2024 |
118,500 |
86,299 |
9,492 |
0 |
9,492 |
117.21 |
$1,113 |
$415 |
|||||
|
2023 |
106,500 |
82,190 |
9,040 |
0 |
9,040 |
112.46 |
$1,017 |
$301 |
|||||
|
2022 |
96,000 |
78,277 |
8,610 |
0 |
8,610 |
110.76 |
$954 |
$216 |
|||||
|
2021 |
78,500 |
74,550 |
8,200 |
0 |
8,200 |
114.70 |
$941 |
$50 |
|||||
| Property Account Status/Adjustments/Exemptions | ||
|---|---|---|
| Account # | Exemption Description | Amount |
|
R151641035 |
5% Capped Account |
0 |
| Property Deed Transaction History (Recorded in the County Clerk's Office) | ||||||||||
|---|---|---|---|---|---|---|---|---|---|---|
| Date | Type | Book | Page | Price | Grantor | Grantee | ||||
|
4/1/2024 |
|
Deeds |
$48,000 |
TED PARKS LLC |
PALMER CARLOS & VICTORIA |
|||||
|
10/9/2010 |
|
Hmstd Off & |
$0 |
REAGAN MARY K |
TED PARKS LLC |
|||||
|
9/28/2010 |
|
Other |
$0 |
REAGAN MARY K |
TED PARKS LLC |
|||||
|
10/14/2005 |
|
Deeds |
$0 |
REAGAN OTIS & DOROTHY L |
REAGAN OTIS |
|||||
|
10/13/2005 |
|
Hmstd Off & |
$0 |
REAGAN OTIS |
REAGAN MARY K |
|||||
| Last Mailed Notice of Value (N.O.V.) Information/History | ||||||||
|---|---|---|---|---|---|---|---|---|
| Year | Date | Market Value | Taxable Market Value | Gross Assessed | Exemption | Net Assessed | ||
|
2025 |
01/31/2025 |
127,500 |
127,500 |
14,025 |
0 |
14,025 |
||
|
2024 |
01/22/2024 |
118,500 |
86,299 |
9,492 |
0 |
9,492 |
||
|
2023 |
01/23/2023 |
106,500 |
82,190 |
9,040 |
0 |
9,040 |
||
|
2022 |
02/22/2022 |
96,000 |
78,277 |
8,610 |
0 |
8,610 |
||
|
2021 |
02/24/2021 |
78,500 |
74,550 |
8,200 |
0 |
8,200 |
||
| Property Building Permit History | |||||||||||
|---|---|---|---|---|---|---|---|---|---|---|---|
| Issued | Permit # | Provided by | Bldg # | Description | Est Construction Cost | Status | |||||
| No Building Permit records returned. | |||||||||||
| Click button on building number to access detailed information: | ||||||
|---|---|---|---|---|---|---|
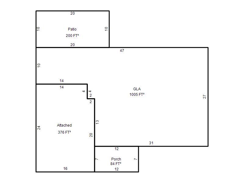
| Bldg # | Vacant/Improved Land | Bldg Description | Year Built | SqFt | # Stories | |
|
1 |
Improved |
Ranch 1 Story |
1966 |
1,005 |
1 Stories |
|