|
|
|
| Larry Stein Oklahoma County Assessor (405) 713-1200 - Public Access System |
|
|
|
|
|
|
| Real Property Display - Screen Produced 3/18/2026 7:15:15 PM | ||||
|---|---|---|---|---|
| Account: R151643055 | Type: Residential | Location: |
4316 EPPERLY DR |
|
| Building Name/Occupant: |
|
DEL CITY |
||
| Owner Name 1: | OPALENICK BARBARA |
Parcel PIN#: |
1467-15-164-3055 |
|
| Owner Name 2: | 1/4 section #: |
1467 |
||
| Owner Name 3: | Parent Acct: |
|
||
| Billing Address: | 4316 EPPERLY DR | Tax District: |
|
|
| City, State, Zip | DEL CITY, OK 73115-3728 | School System: |
Mid-Del #52 |
|
|
Country: (If noted) |
Land Size: |
0.1928 Acres |
||
|
Land Value: 18,480 |
|
|||
|
Sect 17-T11N-R2W Qtr SW |
DEL MAR HILLS
Block
002
Lot
040
|
|||
| Full Legal Description: DEL MAR HILLS 002 040 |
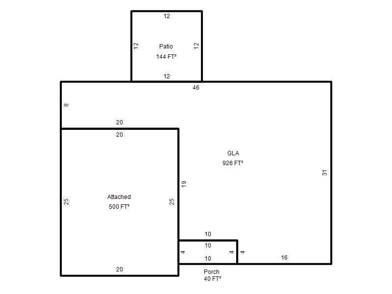
| Photo & Sketch (if available) | Comp Sales (ordered by relevancy) |
|
||||||||||||||||||
|
||||||||||||||||||||
| Value History (*The County Treasurer 405-713-1300 posts & collects actual tax amounts. Contact information HERE) | |||||||||||||
|---|---|---|---|---|---|---|---|---|---|---|---|---|---|
| Year | Market Value | Taxable Mkt Value | Gross Assessed | Exemption | Net Assessed | Millage | Est. Tax | Tax Savings | |||||
|
2025 |
131,000 |
52,402 |
5,764 |
2,000 |
3,764 |
114.72 |
$432 |
$1,221 |
|||||
|
2024 |
123,500 |
52,402 |
5,764 |
2,000 |
3,764 |
117.21 |
$441 |
$1,151 |
|||||
|
2023 |
109,000 |
52,402 |
5,764 |
2,000 |
3,764 |
112.46 |
$423 |
$925 |
|||||
|
2022 |
97,500 |
52,402 |
5,764 |
2,000 |
3,764 |
110.76 |
$417 |
$771 |
|||||
|
2021 |
83,500 |
52,402 |
5,764 |
2,000 |
3,764 |
114.70 |
$432 |
$622 |
|||||
| Property Account Status/Adjustments/Exemptions | ||
|---|---|---|
| Account # | Exemption Description | Amount |
|
R151643055 |
Freeze Senior Valuation |
0 |
|
R151643055 |
Homestead |
1,000 |
|
R151643055 |
Senior Additional Homestead |
1,000 |
|
R151643055 |
3% Cap Homestead |
0 |
| Property Deed Transaction History (Recorded in the County Clerk's Office) | |||||||
|---|---|---|---|---|---|---|---|
| Date | Type | Book | Page | Price | Grantor | Grantee | |
|
7/31/2015 |
|
Hmstd Off & |
$0 |
LYON CAROLYN J |
OPALENICK BARBARA |
||
|
7/29/2015 |
|
Hmstd Off & |
$0 |
OPALENICK BARBARA TRS OPALENICK MARY K REV TRUST |
LYON CAROLYN J |
||
|
2/22/2007 |
|
Deeds |
$0 |
OPALENICK MARY K |
OPALENICK BARBARA TRS OPALENICK MARY K REV TRUST |
||
|
11/11/1911 |
|
Historical |
$0 |
|
OPALENICK MARY K |
||
| Last Mailed Notice of Value (N.O.V.) Information/History | ||||||||
|---|---|---|---|---|---|---|---|---|
| Year | Date | Market Value | Taxable Market Value | Gross Assessed | Exemption | Net Assessed | ||
|
2025 |
01/31/2025 |
131,000 |
52,402 |
5,764 |
2,000 |
3,764 |
||
|
2024 |
01/22/2024 |
123,500 |
52,402 |
5,764 |
2,000 |
3,764 |
||
|
2023 |
01/23/2023 |
109,000 |
52,402 |
5,764 |
2,000 |
3,764 |
||
|
2022 |
02/22/2022 |
97,500 |
52,402 |
5,764 |
2,000 |
3,764 |
||
|
2021 |
02/24/2021 |
83,500 |
52,402 |
5,764 |
2,000 |
3,764 |
||
| Property Building Permit History | |||||||||||
|---|---|---|---|---|---|---|---|---|---|---|---|
| Issued | Permit # | Provided by | Bldg # | Description | Est Construction Cost | Status | |||||
| No Building Permit records returned. | |||||||||||
| Click button on building number to access detailed information: | ||||||
|---|---|---|---|---|---|---|
| Bldg # | Vacant/Improved Land | Bldg Description | Year Built | SqFt | # Stories | |
|
1 |
Improved |
Ranch 1 Story |
1966 |
926 |
1 Stories |
|