|
|
|
| Larry Stein Oklahoma County Assessor (405) 713-1200 - Public Access System |
|
|
|
|
|
|
| Real Property Display - Screen Produced 3/18/2026 7:15:16 PM | ||||
|---|---|---|---|---|
| Account: R151645090 | Type: Residential | Location: |
4416 SE 42ND TER |
|
| Building Name/Occupant: |
|
DEL CITY |
||
| Owner Name 1: | CHAN JOHNNY CHUNG YIN TRS |
Parcel PIN#: |
1467-15-164-5090 |
|
| Owner Name 2: | LEE YVONNE TRS | 1/4 section #: |
1467 |
|
| Owner Name 3: | CHAN JY FAMILY LIV TRUST | Parent Acct: |
|
|
| Billing Address: | 7620 MOUNT SPOKANE CT | Tax District: |
|
|
| City, State, Zip | LAS VEGAS, NV 89113-5379 | School System: |
Mid-Del #52 |
|
|
Country: (If noted) |
Land Size: |
0.1653 Acres |
||
|
Land Value: 15,840 |
|
|||
|
Sect 17-T11N-R2W Qtr SW |
DEL MAR HILLS
Block
004
Lot
015
|
|||
| Full Legal Description: DEL MAR HILLS 004 015 |
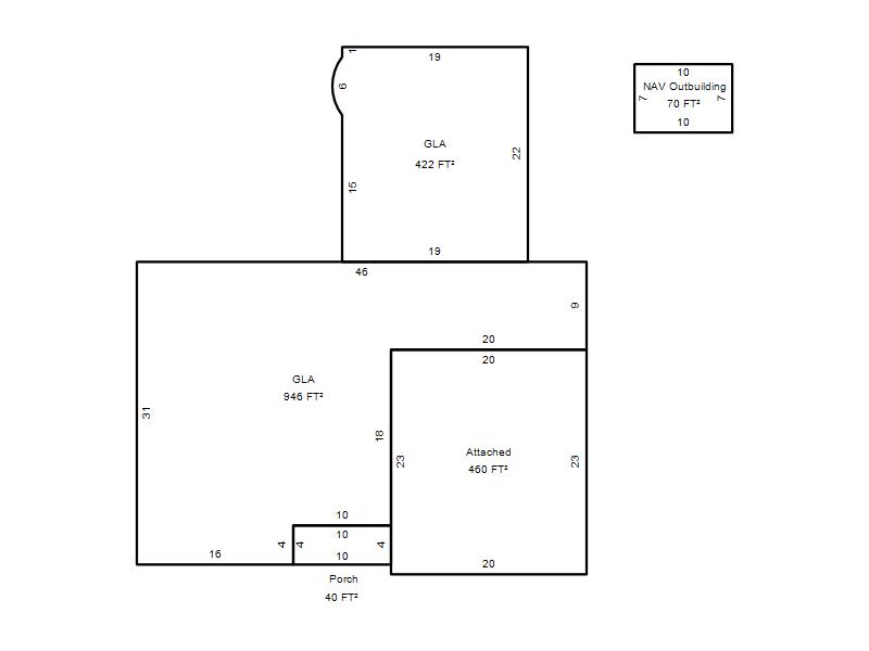
| Photo & Sketch (if available) | Comp Sales (ordered by relevancy) |
|
||||||||||||||||||
|
||||||||||||||||||||
| Value History (*The County Treasurer 405-713-1300 posts & collects actual tax amounts. Contact information HERE) | |||||||||||||
|---|---|---|---|---|---|---|---|---|---|---|---|---|---|
| Year | Market Value | Taxable Mkt Value | Gross Assessed | Exemption | Net Assessed | Millage | Est. Tax | Tax Savings | |||||
|
2025 |
156,500 |
112,949 |
12,423 |
0 |
12,423 |
114.72 |
$1,425 |
$550 |
|||||
|
2024 |
148,000 |
107,571 |
11,832 |
0 |
11,832 |
117.21 |
$1,387 |
$521 |
|||||
|
2023 |
131,000 |
102,449 |
11,268 |
0 |
11,268 |
112.46 |
$1,267 |
$353 |
|||||
|
2022 |
117,000 |
97,571 |
10,732 |
0 |
10,732 |
110.76 |
$1,189 |
$237 |
|||||
|
2021 |
100,000 |
92,925 |
10,221 |
0 |
10,221 |
114.70 |
$1,172 |
$89 |
|||||
| Property Account Status/Adjustments/Exemptions | ||||||
|---|---|---|---|---|---|---|
| Account # | Exemption Description | Amount | ||||
| No adjustment/exemption records returned. | ||||||
| Property Deed Transaction History (Recorded in the County Clerk's Office) | ||||||||||
|---|---|---|---|---|---|---|---|---|---|---|
| Date | Type | Book | Page | Price | Grantor | Grantee | ||||
|
7/29/2024 |
|
Hmstd Off & |
$0 |
HAPPY FAMILY HOLDINGS LLC |
CHAN JOHNNY CHUNG YIN TRS |
|||||
|
9/23/2021 |
|
Hmstd Off & |
$0 |
CHAN JOHNNY CHUNG YIN |
HAPPY FAMILY HOLDINGS LLC |
|||||
|
6/17/2019 |
|
Deeds |
$94,000 |
TA INVESTMENT HOLDINGS SERIES AS 1 LLC |
CHAN JOHNNY CHUNG YIN |
|||||
|
2/4/2016 |
|
Hmstd Off & |
$0 |
TA INVESTMENT HOLDINGS LLC |
TA INVESTMENT HOLDINGS SERIES AS 1 LLC |
|||||
|
8/12/2015 |
|
Deeds |
$52,000 |
DEUTSCHE BANK NATIONAL TRUST CO AS TRS |
TA INVESTMENT HOLDINGS LLC |
|||||
| Last Mailed Notice of Value (N.O.V.) Information/History | ||||||||
|---|---|---|---|---|---|---|---|---|
| Year | Date | Market Value | Taxable Market Value | Gross Assessed | Exemption | Net Assessed | ||
|
2026 |
02/06/2026 |
152,500 |
118,596 |
13,045 |
0 |
13,045 |
||
|
2025 |
01/31/2025 |
156,500 |
112,949 |
12,423 |
0 |
12,423 |
||
|
2024 |
01/22/2024 |
148,000 |
107,571 |
11,832 |
0 |
11,832 |
||
|
2023 |
01/23/2023 |
131,000 |
102,449 |
11,268 |
0 |
11,268 |
||
|
2022 |
02/22/2022 |
117,000 |
97,571 |
10,732 |
0 |
10,732 |
||
| Property Building Permit History | |||||||||||
|---|---|---|---|---|---|---|---|---|---|---|---|
| Issued | Permit # | Provided by | Bldg # | Description | Est Construction Cost | Status | |||||
| No Building Permit records returned. | |||||||||||
| Click button on building number to access detailed information: | ||||||
|---|---|---|---|---|---|---|
| Bldg # | Vacant/Improved Land | Bldg Description | Year Built | SqFt | # Stories | |
|
1 |
Improved |
Ranch 1 Story |
1967 |
1,368 |
1 Stories |
|