Larry Stein Oklahoma County Assessor (405) 713-1200 - Public Access System
Home Contact Us Guest Book Map Search New Search
Real Property Display - Screen Produced   4/25/2026 6:17:50 PM 
Account: R199271080  Type: Residential

  

Location:

7015 NW 222ND ST

Building Name/Occupant:

 

UNINCORPORATED

Owner Name 1:  HENDERSON CHERYL A

Parcel PIN#:

4830-19-927-1080

Owner Name 2:    1/4 section #:

4830

Owner Name 3:    Parent Acct:

 

Billing Address:  7015 NW 222ND ST Tax District:

City, State, Zip  EDMOND, OK  73025-9403 School System:

Deer Creek #6

Country: (If noted)

  

Land Size:

1.5400  Acres

Personal Property

Land Value: 38,492 

Treasurer:

Sect 8-T14N-R4W Qtr SE

 ROCKWELL FARM ESTATES   Block 001  Lot 005   Subdivision Sales
 Full Legal Description:  ROCKWELL FARM ESTATES 001 005

NOTE:  The following sales may or may not be used to determine Fair Market Value

Photo & Sketch (if available) Sales  Sales Report

 7009 NW 222ND ST UNINCORPORATED, OK

02/25/2025

 $340,000 

 4117 NW 220TH ST UNINCORPORATED, OK

07/21/2025

 $540,000 

 21700 N HEIDI DR UNINCORPORATED, OK

09/16/2024

 $382,500 

 21151 N MERIDIAN AVE UNINCORPORATED, OK

11/21/2025

 $250,000 

 22122 RICKASHA DR UNINCORPORATED, OK

05/03/2024

 $315,000 

 23655 N MACARTHUR BLVD UNINCORPORATED, OK

09/12/2025

 $380,000 

Value History  (*The County Treasurer 405-713-1300 posts & collects actual tax amounts.  Contact information  HERE)
Year Market Value Taxable Mkt Value Gross Assessed Exemption Net Assessed Millage Est. Tax Tax Savings

2026

284,500 

233,615 

25,697 

25,697 

114.35 

$2,939 

$640 

2025

275,500 

222,491 

24,473 

24,473 

114.35 

$2,799 

$667 

2024

264,000 

211,897 

23,307 

23,307 

116.19 

$2,708 

$666 

[1/10]
Property Account Status/Adjustments/Exemptions
Account # Exemption Description Amount

R199271080

5% Capped Account

Property Deed Transaction History   (Recorded in the County Clerk's Office)
Date Type Book Page Price Grantor Grantee

1/5/2010

Deeds

11281

225

 $118,000 

EPPERSON DOUGLAS

HENDERSON CHERYL A

10/4/2007

Deeds

10625

1825

 $119,000 

EPPERSON JANA L

EPPERSON DOUGLAS

3/1/2000

Deeds

7789

699

 $0 

EPPERSON DOUGLAS A & JANA L

EPPERSON JANA L

[1/2]
Last Mailed Notice of Value (N.O.V.) Information/History
Year Date Market Value Taxable Market Value Gross Assessed Exemption Net Assessed

2026

02/06/2026

284,500 

233,615 

25,697 

25,697 

2025

01/31/2025

275,500 

222,491 

24,473 

24,473 

2024

01/22/2024

264,000 

211,897 

23,307 

23,307 

[1/5]
Property Building Permit History
Issued Permit # Provided by Bldg # Description Est Construction Cost Status
No Building Permit records returned.
Click button below to access detailed information and additional property photos:
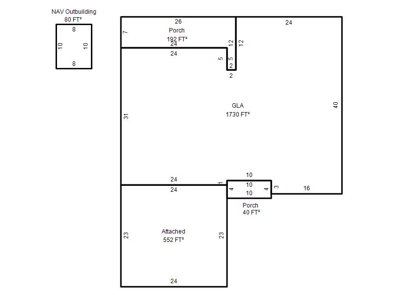
  Bldg # Vacant/Improved Land Bldg Description Year Built SqFt # Stories

Click

1

Improved

Ranch 1 Story

1985

1,730 

1 Stories